Eladó Ház- házrész
Hirdetéskód: 9065965

CasaNetWork Ingatlaniroda Gödöllő

FIX 3% Program

Ez a hirdetés megfelelhet a FIX 3%-os programnak.
Tudj meg többet a részletekről itt.

90.00 m2
ALAPTERÜLET
4
SZOBASZÁM
nincs megadva
ÉPÍTÉS
nincs megadva
FŰTÉS
  • CSOK igénybe vehető nem
  • Tetőtér beépíthető nem
  • Építés éve 2025
  • Klíma nem
  • Szigetelt nem
Energetikai besorolás: Nincs meghatározva
A+++
A++
A+
A
B
C
D
E
F
G
H
I

Az ingatlan leírása

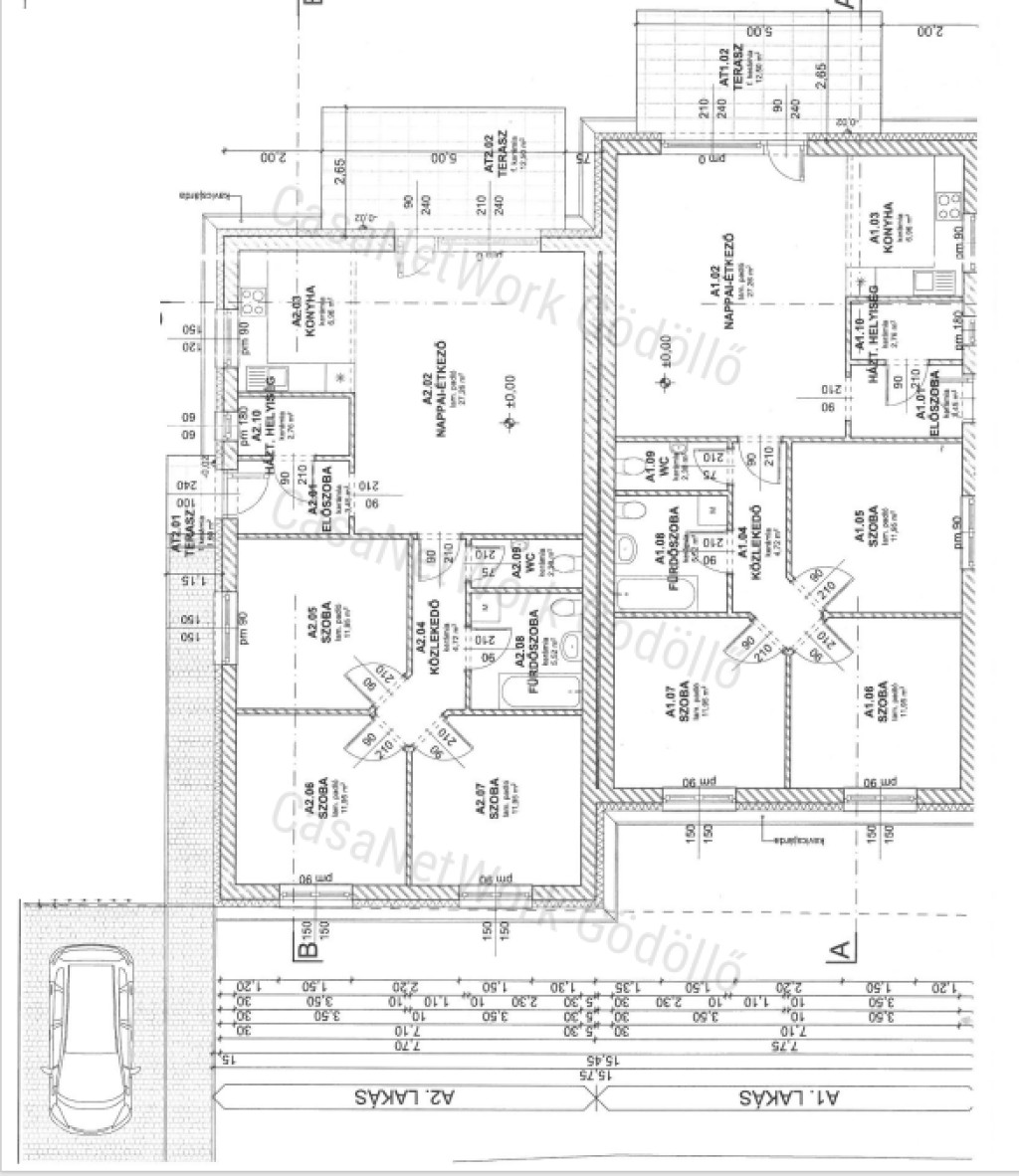
CasaNetWork Gödöllő Ingatlaniroda kínálatában eladó ikerház VácrátótonA kedvelt Szent István lakóparkban épülő otthon ideális választás lehet bármely korosztály részére.Praktikus elosztása, világos életterei kényelmes életvitelt biztosítanak jövendőbeli lakóinak.További ízelítő:- műanyag, 3rétegű nyílászárók melyek redőnnyel és szúnyoghálóval szereltek, teraszajtón motoros alumínium redőny- beépített szellőzőrendszer, fürdőszobában fénycsatorna került kialakításra- az otthont hőszivattyű melengeti padlófűtéssel, H tarifa- választható szaniterek, burkolatok- könnyen karbantartható, saját használatú 420nm-es kert- udvari beálló az autóknak, motoroknak- kényelmes terasz, melyen megpihenhet egy fárasztó nap után- 2025. nyár végi átadásAz ár a kulcsrakész állapotra értendő!Település ismertető: Vácrátót a  Váci járásban helyezkedik el, szépen rendezett község. Hangulatos természeti adottságai kíváló választási lehetőséget nyújtanak az ideköltözőknek.  Szívből ajánlom mindenkinek ezt a kedves települést, a gyerekeket a helyi iskola, és óvoda szeretettel várja. Botanikus kertje mesébe illő élményt nyújt minden generáció számára.  Közlekedése kiváló az ingázóknak, vonattal, busszal, autóval könnyen megközelíthető Budapest.Bővebb információkért, megtekinthetőségért hívjon bátran telefonon a hét bármely napján!Köszönöm, hogy elolvasta a hirdetésemet :-) Ingatlanértékesítésben kedvező lehetőségekkel állok rendelkezésére!Ingyenes hitel tanácsadással, ügyvédi kapcsolattal és rugalmas időbeosztással állunk kedves ügyfeleink rendelkezésére! CASANETWORK - Ingatlanban otthon vagyunk

Térkép

A hirdető elérhetősége

CasaNetWork Ingatlaniroda Gödöllő

Hermann Brigitta
+36 20 433