Eladó Ház- házrész
Hirdetéskód: 9318834
GDN Ingatlanhálózat - Új Otthon iroda
Felújításhoz személyi kölcsönt keres? Kalkuláljon itt! →100.00 m2
ALAPTERÜLET4
SZOBASZÁMnincs megadva
ÉPÍTÉSnincs megadva
FŰTÉS- CSOK igénybe vehető nem
- Tetőtér beépíthető nem
- Klíma nem
- Szigetelt nem
A+++
A++
A+
A
B
C
D
E
F
G
H
I
Az ingatlan leírása
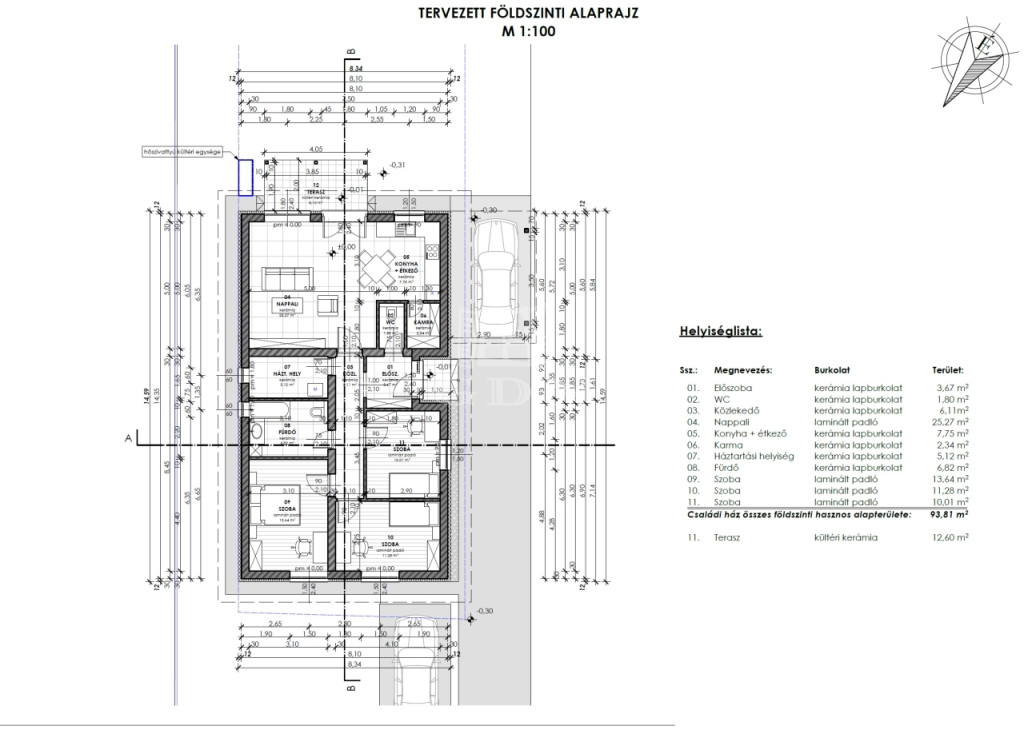
Vácon, a csendes és jól megközelíthető Ösvény utcában kínálunk eladásra egy 502 m²-es telken épülő új, kulcsrakész önálló családi házat, 93,81 m² nettó hasznos lakótérrel és 12,6 m²-es terasszal.
A beruházóval már több sikeres értékesítésben működtem együtt, számos referenciával rendelkezik, melyeket komoly érdeklődés esetén szívesen megmutatunk. Munkáját megbízható minőség és korrekt kivitelezés jellemzi.
A Porotherm 30 N+F téglából épülő tartószerkezeti falak, a betonkoszorú és a fa födémes tetőszerkezet hosszú távú stabilitást biztosítanak. A kiemelkedő hőszigetelésről 10 cm-es polisztirol lábazati, 12 cm-es grafitos homlokzati, valamint 30 cm-es ásványgyapot födémszigetelés gondoskodik.
A háromrétegű üvegezésű, hat légkamrás műanyag thermo nyílászárók kiváló hő- és hangszigetelést nyújtanak. A fűtést és melegvíz-ellátást energiatakarékos levegő–víz hőszivattyús rendszer biztosítja, amely a korszerű szigeteléssel együtt rendkívül alacsony energiaigényű működést tesz lehetővé.
A belső burkolatok, ajtók és szaniterek szabadon választhatók az alábbi értékhatárokig:
-Hidegburkolat: 5.000 Ft/m²
-Melegburkolat: 4.000 Ft/m²
-Beltéri ajtók: 50.000 Ft/db
-Fürdőkád: 40.000 Ft
-Csaptelepek: 15.000 Ft/db
Természetesen magasabb kategóriájú termékek is választhatók, az árkülönbség megtérítésével.
A részletes tervdokumentáció és műszaki tartalom érdeklődő ügyfeleink számára elérhető.
INGYENES hitel tanácsadás, CSOK Plusz, Otthon Start ügyintézés!
BANKFÜGGETLEN hitelcentrumunk az összes elérhető bank és hitelintézet ajánlatát versenyezteti az Ön kedvéért, ráadásul DÍJMENTESEN.
- Egyedi, bankfiókban nem elérhető kamat- és díjkedvezmények
- Hitelképesség vizsgálat
- Idő, energia és pénz megtakarítás
- Teljes hivatali ügyintézés
Amennyiben hirdetésem felkeltette az érdeklődését vagy egyéb információra van szüksége hívjon bizalommal! ...TOVÁBBI, TÖBBEZRES INGATLAN KÍNÁLAT: - GDN azonosító: 395027
A beruházóval már több sikeres értékesítésben működtem együtt, számos referenciával rendelkezik, melyeket komoly érdeklődés esetén szívesen megmutatunk. Munkáját megbízható minőség és korrekt kivitelezés jellemzi.
A Porotherm 30 N+F téglából épülő tartószerkezeti falak, a betonkoszorú és a fa födémes tetőszerkezet hosszú távú stabilitást biztosítanak. A kiemelkedő hőszigetelésről 10 cm-es polisztirol lábazati, 12 cm-es grafitos homlokzati, valamint 30 cm-es ásványgyapot födémszigetelés gondoskodik.
A háromrétegű üvegezésű, hat légkamrás műanyag thermo nyílászárók kiváló hő- és hangszigetelést nyújtanak. A fűtést és melegvíz-ellátást energiatakarékos levegő–víz hőszivattyús rendszer biztosítja, amely a korszerű szigeteléssel együtt rendkívül alacsony energiaigényű működést tesz lehetővé.
A belső burkolatok, ajtók és szaniterek szabadon választhatók az alábbi értékhatárokig:
-Hidegburkolat: 5.000 Ft/m²
-Melegburkolat: 4.000 Ft/m²
-Beltéri ajtók: 50.000 Ft/db
-Fürdőkád: 40.000 Ft
-Csaptelepek: 15.000 Ft/db
Természetesen magasabb kategóriájú termékek is választhatók, az árkülönbség megtérítésével.
A részletes tervdokumentáció és műszaki tartalom érdeklődő ügyfeleink számára elérhető.
INGYENES hitel tanácsadás, CSOK Plusz, Otthon Start ügyintézés!
BANKFÜGGETLEN hitelcentrumunk az összes elérhető bank és hitelintézet ajánlatát versenyezteti az Ön kedvéért, ráadásul DÍJMENTESEN.
- Egyedi, bankfiókban nem elérhető kamat- és díjkedvezmények
- Hitelképesség vizsgálat
- Idő, energia és pénz megtakarítás
- Teljes hivatali ügyintézés
Amennyiben hirdetésem felkeltette az érdeklődését vagy egyéb információra van szüksége hívjon bizalommal! ...TOVÁBBI, TÖBBEZRES INGATLAN KÍNÁLAT: - GDN azonosító: 395027