Eladó Ház- házrész
Hirdetéskód: 9008736
Óbudai - Balatoni Ingatlanok Specialistája
Ez a hirdetés megfelelhet a FIX 3%-os programnak.
Tudj meg többet a részletekről itt.
151 m2
ALAPTERÜLET5
SZOBASZÁMnincs megadva
ÉPÍTÉSnincs megadva
FŰTÉS- CSOK igénybe vehető nem
- Belső szintek 2
- Tetőtér beépíthető nem
- Építés éve 2007
- Klíma nem
- Szigetelt nem
A+++
A++
A+
A
B
C
D
E
F
G
H
I
Az ingatlan leírása
Ürömön - III. kerülethez közeli részén- 2 szintes, PANORÁMÁS, 151 m2 lakóterű, nappali + 4 HÁLÓSZOBÁS, FELÚJÍTANDÓ állapotú családi ház eladó, 611 m2-es telken.
Garázs mérete 18 m2, terasz és erkély 26 m2.
Az épület 2007-ben épült, 30-as porotherm téglából és 5 cm hőszigeteléssel.
Ablakok: műanyag 2 rétegű, redőnnyel felszerelve.
Fűtés: gázcirkó
Az épület szerkezetileg stabil, de az építés éve óta nem történt semmilyen felújítás, festés, burkolat csere.
Felújítást igényelnek az ingatlan egyes részei, az épület és a terasz kapcsolódásánál keletkezett repedés, az egyik földszinti szobában és az emeleten régebbi beázás nyoma, megfelelő esővíz elvezetés kialakítása szükséges.
Az ingatlan kívül-belül felújításra szorul.
Alsó szint elrendezése:
-tágas előszoba, hall
-nagyméretű panorámás konyha-étkező
-nappali, + 18 m2-es terasz a kert felé
-1 hálószoba
-zuhanyzós fürdőszoba
-kamra, mosókonyha, kazánhelyiség
-könnyen, biztonságosan járható lépcső
-18 m2-es garázs
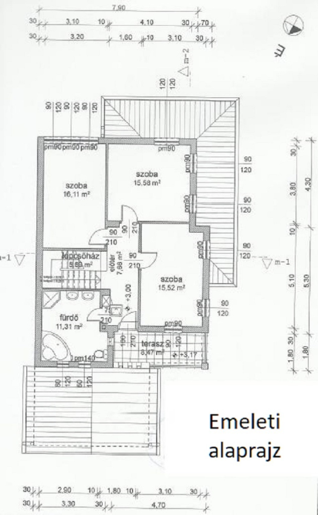
Emeleti szint:
-3 db nagyméretű 16 m2-es hálószoba
-8,5 m2-es erkély ami a közlekedőből nyílik
-tágas kádas fürdőszoba
-közlekedő
A telken található egy kb. 12 m2-es épület, amit tárolóként, nyári konyhaként használhatunk valamint egy kb. 4 m2-es is.
A garázsban egy autó számára van hely, a kertben egy beálló kialakítható.
Buszmegálló, bevásárlási lehetőség, gyógyszertár gyalogosan 10-12 percre, autóval 3 percre található.
Iskola, óvoda autóval 5 perc, gyalogosan 15-20 perc.
Az ingatlant bérlők lakják, de gyorsan birtokba vehető.
Irányár: 130 M Ft
Fekvés: DNY
Építés éve: 2007
Lakás állaga: felújítandó
Ház állaga: felújítandó
Garázs helyek száma: 1 db
Garázs mérete: 18 nm
Beálló helyek száma: 1 db
Ügyintéző: Hoksári Katalin
Azonosító: X/02-01
Garázs mérete 18 m2, terasz és erkély 26 m2.
Az épület 2007-ben épült, 30-as porotherm téglából és 5 cm hőszigeteléssel.
Ablakok: műanyag 2 rétegű, redőnnyel felszerelve.
Fűtés: gázcirkó
Az épület szerkezetileg stabil, de az építés éve óta nem történt semmilyen felújítás, festés, burkolat csere.
Felújítást igényelnek az ingatlan egyes részei, az épület és a terasz kapcsolódásánál keletkezett repedés, az egyik földszinti szobában és az emeleten régebbi beázás nyoma, megfelelő esővíz elvezetés kialakítása szükséges.
Az ingatlan kívül-belül felújításra szorul.
Alsó szint elrendezése:
-tágas előszoba, hall
-nagyméretű panorámás konyha-étkező
-nappali, + 18 m2-es terasz a kert felé
-1 hálószoba
-zuhanyzós fürdőszoba
-kamra, mosókonyha, kazánhelyiség
-könnyen, biztonságosan járható lépcső
-18 m2-es garázs
Emeleti szint:
-3 db nagyméretű 16 m2-es hálószoba
-8,5 m2-es erkély ami a közlekedőből nyílik
-tágas kádas fürdőszoba
-közlekedő
A telken található egy kb. 12 m2-es épület, amit tárolóként, nyári konyhaként használhatunk valamint egy kb. 4 m2-es is.
A garázsban egy autó számára van hely, a kertben egy beálló kialakítható.
Buszmegálló, bevásárlási lehetőség, gyógyszertár gyalogosan 10-12 percre, autóval 3 percre található.
Iskola, óvoda autóval 5 perc, gyalogosan 15-20 perc.
Az ingatlant bérlők lakják, de gyorsan birtokba vehető.
Irányár: 130 M Ft
Fekvés: DNY
Építés éve: 2007
Lakás állaga: felújítandó
Ház állaga: felújítandó
Garázs helyek száma: 1 db
Garázs mérete: 18 nm
Beálló helyek száma: 1 db
Ügyintéző: Hoksári Katalin
Azonosító: X/02-01