Eladó Ház- házrész
Hirdetéskód: 9179293
Openhouse Székesfehérvár Ingatlaniroda
1141 m2
ALAPTERÜLET5
SZOBASZÁMnincs megadva
ÉPÍTÉSnincs megadva
FŰTÉS- CSOK igénybe vehető nem
- Tetőtér beépíthető nem
- Építés éve 2025
- Klíma nem
- Szigetelt nem
A+++
A++
A+
A
B
C
D
E
F
G
H
I
Az ingatlan leírása
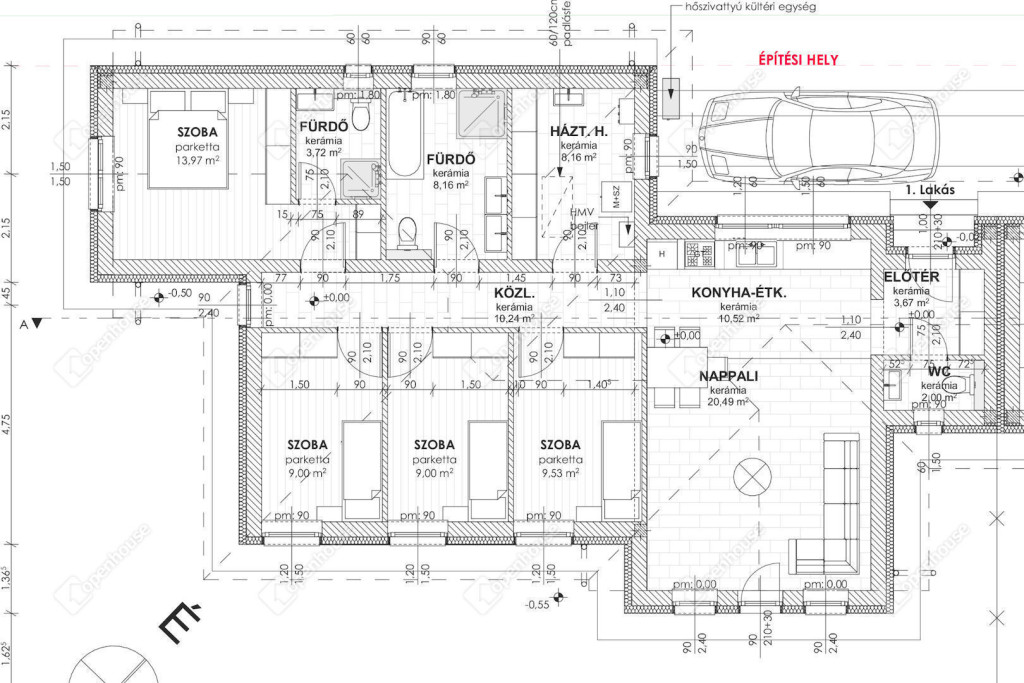
Az Openhouse Székesfehérvár Ingatlaniroda kínálatában eladó a #173751 hivatkozási számú úrhidai ikerház.
Székesfehérvártól néhány percre, Úrhidán eladó, új építésű ikerház. Mindkét lakás négy hálószobás, nappali-konyha-étkezővel, két fürdőszobával, három WC-vel és háztartási helyiséggel kialakított otthon. 108 és 110 m2. A lakásokhoz kocsibeálló és terasz is tartozik.
30-as tégla falak, 15 cm-es szigeteléssel
helyben ácsolt tetőszerkezet, cserép fedéssel
három rétegű műanyag nyílászárók, redőnyök nélkül
hőszivattyús padlófűtés
választható burkolatok, szaniterek, beltéri ajtók
átadás 2026. január
Ha felkeltette érdeklődését ez az eladó úrhidai ikerház, vagy bármely más ikerház és bővebb információt szeretne, keressen bizalommal.Hivatkozási szám: #173751
Az Openhouse Székesfehérvár Ingatlaniroda tagjaként várom Önt az országos hálózatunk teljes kínálatával.
A ikerház vásárláshoz hitelt igényelne? Ingyenes hitelközvetítéssel segít Önnek bankfüggetlen hitelszakértőnk.
További szolgáltatásainkkal (pl. értékbecslés, energetikai tanúsítvány, jogi háttér) is segítjük Önt a vásárlásban.
Az otthon érték. Az ingatlan üzlet.
Székesfehérvártól néhány percre, Úrhidán eladó, új építésű ikerház. Mindkét lakás négy hálószobás, nappali-konyha-étkezővel, két fürdőszobával, három WC-vel és háztartási helyiséggel kialakított otthon. 108 és 110 m2. A lakásokhoz kocsibeálló és terasz is tartozik.
30-as tégla falak, 15 cm-es szigeteléssel
helyben ácsolt tetőszerkezet, cserép fedéssel
három rétegű műanyag nyílászárók, redőnyök nélkül
hőszivattyús padlófűtés
választható burkolatok, szaniterek, beltéri ajtók
átadás 2026. január
Ha felkeltette érdeklődését ez az eladó úrhidai ikerház, vagy bármely más ikerház és bővebb információt szeretne, keressen bizalommal.Hivatkozási szám: #173751
Az Openhouse Székesfehérvár Ingatlaniroda tagjaként várom Önt az országos hálózatunk teljes kínálatával.
A ikerház vásárláshoz hitelt igényelne? Ingyenes hitelközvetítéssel segít Önnek bankfüggetlen hitelszakértőnk.
További szolgáltatásainkkal (pl. értékbecslés, energetikai tanúsítvány, jogi háttér) is segítjük Önt a vásárlásban.
Az otthon érték. Az ingatlan üzlet.