Eladó Ház- házrész
Hirdetéskód: 9302919

-

Felújításhoz személyi kölcsönt keres? Kalkuláljon itt! →
FIX 3% Program

Ez a hirdetés megfelelhet a FIX 3%-os programnak.
Tudj meg többet a részletekről itt.

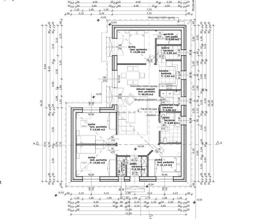
127.00 m2
ALAPTERÜLET
4
SZOBASZÁM
Tégla
ÉPÍTÉS
Hőszivattyú
FŰTÉS
  • Ingatlan komfort Összkomfortos
  • Fűtés Hőszivattyú
  • Építőanyag Tégla
  • Erkély, terasz Terasz 32.00m2
  • Szigetelt igen
Energetikai besorolás: Nincs meghatározva
A+++
A++
A+
A
B
C
D
E
F
G
H
I

Az MBH Bank személyi kölcsön ajánlata

Fizetett hirdetés
1 millió Ft
6 évre
20 585 Ft/hó
THM: 14.5%
Részletek →
2 millió Ft
6 évre
41 169 Ft/hó
THM: 14.5%
Részletek →
3 millió Ft
6 évre
61 754 Ft/hó
THM: 14.5%
Részletek →

A tájékoztatás nem teljes körű és nem minősül ajánlattételnek.

Az ingatlan leírása

Úrhidán önálló családi ház eladó. Eladásra kínálok egy új építésű egyszintes önálló családi házat (127 nm + 32 nm terasz), 800 nm-es összközműves telken. Az ingatlan 3 egész szobából egy félszobából egy amerikai konyha étkezős nappaliból, gardrob szobából, vendég WC-ből, fürdőszobából, gépészeti helyiségből áll. Fekvése napos, ideális dél-keleti. Az ingatlan 3-4 hónap múlva költözhető. Téglából készült, 20 cm szigeteléssel, 18 cm-es lábazati szigeteléssel, 40 cm födémszigeteléssel. Motoros redőny, riasztó, napelemrendszer, klíma előkészítve, fűtése, hűtése hőszivattyúval történik, padlóban.


Az ingatlan jogilag és hitelszempontjából is használt ingatlannak minősül.


Eladó magánszemély és nem cég.   A vételárban nincs benne a konyhaszekrény, a beépített szekrények és a lámpatestek.


 


 

Térkép

Ingatlan adásvétel ügyvédi díja
479 250 Ft
a hirdetésben szereplő ár alapján
  • A vételár 0,45%-a
  • Szerződéscsomag teljeskörű képviselettel
  • Ingyenes tulajdoni lap ellenőrzés
  • Az ÁFA-t már tartalmazza
Érdekel az ajánlat →
A tájékoztatás nem teljes körű és nem minősül ajánlattételnek. Minimum díj: 150 000 Ft, maximum díj: 600 000 Ft. A díj kizárólag lakóingatlan adásvételére vonatkozik.

A hirdető elérhetősége

Beropex Consulting Ingatlaniroda

+36 70 331