Eladó Ház- házrész
Hirdetéskód: 9188952
GDN Ingatlanhálózat - Nádor
558 m2
ALAPTERÜLET4
SZOBASZÁMnincs megadva
ÉPÍTÉSGáz (cirkó)
FŰTÉS- CSOK igénybe vehető nem
- Tetőtér beépíthető nem
- Fűtés Gáz (cirkó)
- Klíma nem
- Szigetelt nem
A+++
A++
A+
A
B
C
D
E
F
G
H
I
Az ingatlan leírása
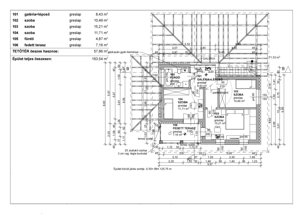
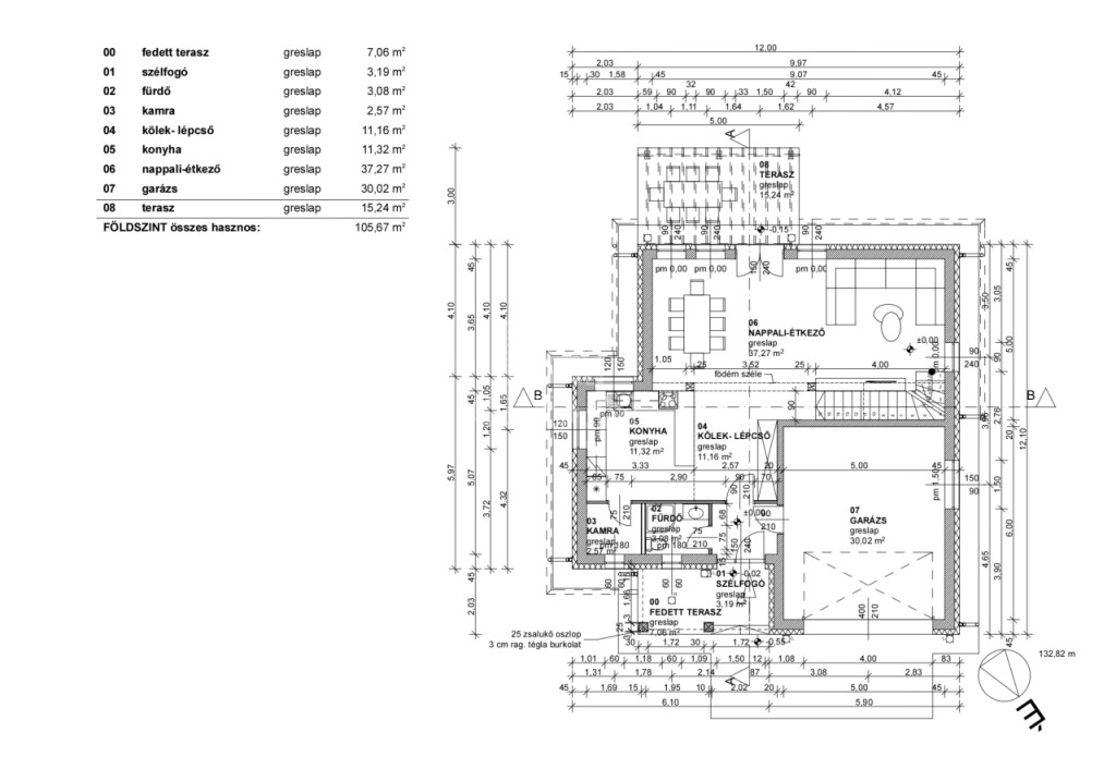
Eladó Üllő csendes kertvárosi részén egy új építésű kétszintes nettó:163,54m2-es 4szobás impozáns családi ház, amely 558m2-es teleken helyezkedik el.
**INGATLAN HELYSZÍNE, LOKÁCIÓ**
Az új építésű családi ház, ideális elhelyezkedésének köszönhetően könnyű hozzáférést biztosít Budapest és környéke felé.
Békés, csendes környezet, amely távol tart a város zajától, miközben minden fontos szolgáltatás közel van.
Közlekedés szempontjából is kiváló döntés, pár perc alatt elérhető az autópálya.
Urbanizációs előnyei közé tartoznak az iskolák, óvodák, bevásárlási lehetőségek és egészségügyi létesítmények közelsége.
**ÉPÜLET JELLEMZŐI KÍVÜLRŐL**
• Falazat: 30 cm-es Porotherm Klíma tégla, 15 cm-es Ytong válaszfalak
• Hőszigetelés: 10–20 cm-es grafitos homlokzati szigetelés, 10 cm zárt és 20 cm nyitott cellás poliuretán hab az aljzatban, szarufák között és a zárófödémen
• Nyílászárók: 82mm-es profilvastagság, 3 rétegű üveg, gázzal töltve, dió RAL színű műanyag ablakok, vele megegyező színű elektromos alumínium redőny + beépített szúnyogháló
• Beltéri ajtók: Síkban záródó, rejtett zsanéros, V gravíros , festett MDF, automata küszöbbel és olasz króm kilinccsel
• Tető: Terrán Coppo Ódon betoncserép, 50 év garanciával
• Külső megjelenés: kovácsoltvas korlátok, úszókapu, szilikonos Revco vékonyvakolat
A kertbe elhelyezésre került egy 6 m²-es hőszigetelt faház elektromos padlófűtéssel, ami kerti tárolóként funkcionálhat.
**AZ INGATLAN JELLEMZŐI BELÜLRŐL**
• Lakótér összesen: 194 m² (garázzsal együtt)
• Garázs: 30 m²-es két autó beállására alkalmas, ipari műgyanta padlóval, padlófűtéssel, elektromos autótöltésre kialakított gyorstöltő kiállással, Hörmann garázskapuval.
• Konyhabútor: AEG, Whirlpool, Electrolux beépített gépekkel, led világítással, tömör fa munkalappal, Blum vasalattal, Blanco gránitmosogató, Blanco csaptelep.
• Fűtés: Kondenzációs gázkazán, padlófűtéssel minden helyiségben, a fürdőszobákban törölközőszárító radiátor
• Hűtés: 2 db Gree Smart One 5 kW-os klíma
• Biztonság: 4K kamera rendszer, riasztórendszer, Hikvision kaputelefon
• Energiaellátás: 3×25 A 380V
**BELSŐ ELRENDEZÉS:**
Alsó szint helyiségei:
• Előszoba
• Fürdőszoba WC-vel
• Kamra
• Amerikai konyhás nappali
Felső szint helyiségei:
• 3 szoba
• Fürdőszoba WC-vel
Amennyiben felkeltette a meghirdetett ingatlan az érdeklődését, keressen bizalommal.
Kihagyhatatlan ajánlatok: CSOK+,OTTHON START, kedvezményes kamatozású lakáshitelek.
Az ország szinte összes bankjának a hiteleit is kínáljuk, egyedi, általunk igénybe vehető kedvezményekkel, díjmentes ügyintézéssel. ...TOVÁBBI, TÖBBEZRES INGATLAN KÍNÁLAT: - GDN azonosító: 388438
**INGATLAN HELYSZÍNE, LOKÁCIÓ**
Az új építésű családi ház, ideális elhelyezkedésének köszönhetően könnyű hozzáférést biztosít Budapest és környéke felé.
Békés, csendes környezet, amely távol tart a város zajától, miközben minden fontos szolgáltatás közel van.
Közlekedés szempontjából is kiváló döntés, pár perc alatt elérhető az autópálya.
Urbanizációs előnyei közé tartoznak az iskolák, óvodák, bevásárlási lehetőségek és egészségügyi létesítmények közelsége.
**ÉPÜLET JELLEMZŐI KÍVÜLRŐL**
• Falazat: 30 cm-es Porotherm Klíma tégla, 15 cm-es Ytong válaszfalak
• Hőszigetelés: 10–20 cm-es grafitos homlokzati szigetelés, 10 cm zárt és 20 cm nyitott cellás poliuretán hab az aljzatban, szarufák között és a zárófödémen
• Nyílászárók: 82mm-es profilvastagság, 3 rétegű üveg, gázzal töltve, dió RAL színű műanyag ablakok, vele megegyező színű elektromos alumínium redőny + beépített szúnyogháló
• Beltéri ajtók: Síkban záródó, rejtett zsanéros, V gravíros , festett MDF, automata küszöbbel és olasz króm kilinccsel
• Tető: Terrán Coppo Ódon betoncserép, 50 év garanciával
• Külső megjelenés: kovácsoltvas korlátok, úszókapu, szilikonos Revco vékonyvakolat
A kertbe elhelyezésre került egy 6 m²-es hőszigetelt faház elektromos padlófűtéssel, ami kerti tárolóként funkcionálhat.
**AZ INGATLAN JELLEMZŐI BELÜLRŐL**
• Lakótér összesen: 194 m² (garázzsal együtt)
• Garázs: 30 m²-es két autó beállására alkalmas, ipari műgyanta padlóval, padlófűtéssel, elektromos autótöltésre kialakított gyorstöltő kiállással, Hörmann garázskapuval.
• Konyhabútor: AEG, Whirlpool, Electrolux beépített gépekkel, led világítással, tömör fa munkalappal, Blum vasalattal, Blanco gránitmosogató, Blanco csaptelep.
• Fűtés: Kondenzációs gázkazán, padlófűtéssel minden helyiségben, a fürdőszobákban törölközőszárító radiátor
• Hűtés: 2 db Gree Smart One 5 kW-os klíma
• Biztonság: 4K kamera rendszer, riasztórendszer, Hikvision kaputelefon
• Energiaellátás: 3×25 A 380V
**BELSŐ ELRENDEZÉS:**
Alsó szint helyiségei:
• Előszoba
• Fürdőszoba WC-vel
• Kamra
• Amerikai konyhás nappali
Felső szint helyiségei:
• 3 szoba
• Fürdőszoba WC-vel
Amennyiben felkeltette a meghirdetett ingatlan az érdeklődését, keressen bizalommal.
Kihagyhatatlan ajánlatok: CSOK+,OTTHON START, kedvezményes kamatozású lakáshitelek.
Az ország szinte összes bankjának a hiteleit is kínáljuk, egyedi, általunk igénybe vehető kedvezményekkel, díjmentes ügyintézéssel. ...TOVÁBBI, TÖBBEZRES INGATLAN KÍNÁLAT: - GDN azonosító: 388438