Eladó Ház- házrész
Hirdetéskód: 9262948
Benefit Line (OC)
164.00 m2
ALAPTERÜLET4
SZOBASZÁMnincs megadva
ÉPÍTÉSnincs megadva
FŰTÉS- CSOK igénybe vehető nem
- Tetőtér beépíthető nem
- Építés éve 2025
- Klíma nem
- Szigetelt nem
A+++
A++
A+
A
B
C
D
E
F
G
H
I
Az ingatlan leírása
Új tulajdonosát keresi Üllő közkedvelt Sportliget lakóparkjában egy 2025-ben épült, tégla falazatú családi ház, mely teljes berendezéssel, azonnal költözhető állapotban várja új lakóit!
Amennyiben egy modern, energiatakarékos otthont keres családja számára egy nyugodt, kertvárosias környéken Budapest vonzáskörzetében, akkor jó helyen jár!
KÖRNYÉK és KÖZLEKEDÉS:
Üllő, Sportliget lakópark, Pest megye dinamikusan fejlődő, kedvelt kertvárosi része, kiváló infrastruktúrával.
Számos szolgáltatás a közelben: pizzériák, szépségszalonok, kisboltok, óvoda és bölcsőde egyaránt megtalálhatók a környéken.
Bevásárlási lehetőségek (Penny, Aldi, Tesco) pár percre elérhetők, így a mindennapi vásárlás gyors és kényelmes.
Kiváló a közlekedés, Budapest autóval és távolsági busszal is könnyen megközelíthető, a vasúti közlekedés folyamatosan fejlődik.
ÉPÜLET és TELEK:
️ 2025-ben épült, két szintes, bruttó 198 m2-es (nettó 164 m2-es), igényes családi ház,
️ Az ingatlan okos téglából épült, 20 cm-es homlokzati szigeteléssel, modern gépészettel és esztétikus, elegáns megjelenéssel.
️ Korszerű és energiatakarékos kialakítású, B energetikai besorolás garantálja a kedvező fenntartási költségeket.
️ A ház fűtését kondenzációs gázkazán biztosítja padlófűtéses hőleadással és prémium inverteres klímák biztosítják a hűtést.
️ Prémium minőségű, háromrétegű üvegezésű, egyedileg gyártott, dió színű műanyag nyílászárók gondoskodnak a kiváló hő- és hangszigetelésről.
️ A földszinti 59,75 m2-es amerikai konyhás nappali-étkező tágas életteret biztosít, nagyméretű nyílászáróinak köszönhetően világos.
️ Innen közvetlen kapcsolat nyílik a 15 m2-es teraszra és a kertbe.
️ A parkosított kertben található egy fűthető, 6 m2-es faház.
️ A kert mérete, akár egy medence kialakítására is lehetőséget nyújt.
️ Kiépített riasztórendszer és Hikvision okos kaputelefon garantálja a biztonságot.
️ Az ingatlanhoz tartozik egy ipari burkolattal és polcrendszerrel ellátott duplabeállós garázs is, amely a vételár részét képezi.
FÖLDSZINT:
A földszinten helyezkedik el a hatalmas, minőségi beépített bútorokkal felszerelt amerikai konyhás nappali és étkező.
Az egyedileg tervezett modern konyhabútor gépesített és a vételár részét képezi.
A nappali részben galériás kialakítású, dupla belmagasságával lenyűgöző térérzetet nyújt
A nyitott galéria elegáns átmenetet teremt a földszint és az emelet között.
Ezen a szinten található egy zuhanyzós fürdőszoba WC-vel.
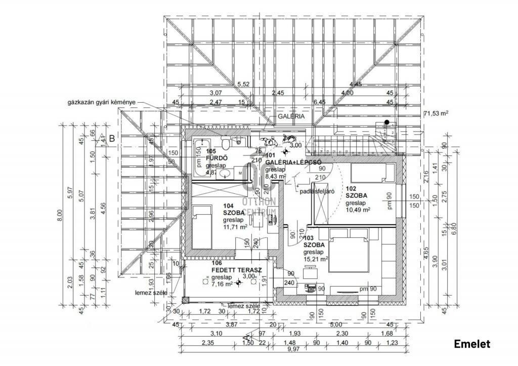
EMELET:
️ Az emeleten három külön nyíló hálószoba található, mindegyik csendes és kényelmes.
️ Két szobából közvetlenül elérhető a ~7 m2-es erkély.
️ Ezen a szinten kapott helyet egy második, kádas fürdőszoba WC-vel.
AZ INGATLAN MEGTEKINTHETŐ:
Személyesen
Online, személyes bejelentkezéssel
FINANSZÍROZÁSI KÉRDÉSEKBEN DÍJMENTESEN SEGÍTÜNK:
️ Bank-független hitelcenterünk díjmentesen versenyezteti minden bank és hitelintézet ajánlatát.
️ Önnek nincs más dolga, mint beszélgetni munkatársunkkal, majd a megversenyeztetett ajánlatokból kiválasztani a hosszútávon is a legmegfelelőbb konstrukciót.
️ Szakértőink 20 éves szakmai tapasztalattal és egyedi igényekre szabott, fogyasztóbarát lakáshitelekkel, babaváró hitellel, teljes körű CSOK PLUSZ és OTTHON START PROGRAM ügyintézéssel várják Önt.
️ Előre egyeztetve akár a normál munkaidő után is.
️ Kérdéseire szívesen válaszolok, hívjon bizalommal!
Amennyiben egy modern, energiatakarékos otthont keres családja számára egy nyugodt, kertvárosias környéken Budapest vonzáskörzetében, akkor jó helyen jár!
KÖRNYÉK és KÖZLEKEDÉS:
Üllő, Sportliget lakópark, Pest megye dinamikusan fejlődő, kedvelt kertvárosi része, kiváló infrastruktúrával.
Számos szolgáltatás a közelben: pizzériák, szépségszalonok, kisboltok, óvoda és bölcsőde egyaránt megtalálhatók a környéken.
Bevásárlási lehetőségek (Penny, Aldi, Tesco) pár percre elérhetők, így a mindennapi vásárlás gyors és kényelmes.
Kiváló a közlekedés, Budapest autóval és távolsági busszal is könnyen megközelíthető, a vasúti közlekedés folyamatosan fejlődik.
ÉPÜLET és TELEK:
️ 2025-ben épült, két szintes, bruttó 198 m2-es (nettó 164 m2-es), igényes családi ház,
️ Az ingatlan okos téglából épült, 20 cm-es homlokzati szigeteléssel, modern gépészettel és esztétikus, elegáns megjelenéssel.
️ Korszerű és energiatakarékos kialakítású, B energetikai besorolás garantálja a kedvező fenntartási költségeket.
️ A ház fűtését kondenzációs gázkazán biztosítja padlófűtéses hőleadással és prémium inverteres klímák biztosítják a hűtést.
️ Prémium minőségű, háromrétegű üvegezésű, egyedileg gyártott, dió színű műanyag nyílászárók gondoskodnak a kiváló hő- és hangszigetelésről.
️ A földszinti 59,75 m2-es amerikai konyhás nappali-étkező tágas életteret biztosít, nagyméretű nyílászáróinak köszönhetően világos.
️ Innen közvetlen kapcsolat nyílik a 15 m2-es teraszra és a kertbe.
️ A parkosított kertben található egy fűthető, 6 m2-es faház.
️ A kert mérete, akár egy medence kialakítására is lehetőséget nyújt.
️ Kiépített riasztórendszer és Hikvision okos kaputelefon garantálja a biztonságot.
️ Az ingatlanhoz tartozik egy ipari burkolattal és polcrendszerrel ellátott duplabeállós garázs is, amely a vételár részét képezi.
FÖLDSZINT:
A földszinten helyezkedik el a hatalmas, minőségi beépített bútorokkal felszerelt amerikai konyhás nappali és étkező.
Az egyedileg tervezett modern konyhabútor gépesített és a vételár részét képezi.
A nappali részben galériás kialakítású, dupla belmagasságával lenyűgöző térérzetet nyújt
A nyitott galéria elegáns átmenetet teremt a földszint és az emelet között.
Ezen a szinten található egy zuhanyzós fürdőszoba WC-vel.
EMELET:
️ Az emeleten három külön nyíló hálószoba található, mindegyik csendes és kényelmes.
️ Két szobából közvetlenül elérhető a ~7 m2-es erkély.
️ Ezen a szinten kapott helyet egy második, kádas fürdőszoba WC-vel.
AZ INGATLAN MEGTEKINTHETŐ:
Személyesen
Online, személyes bejelentkezéssel
FINANSZÍROZÁSI KÉRDÉSEKBEN DÍJMENTESEN SEGÍTÜNK:
️ Bank-független hitelcenterünk díjmentesen versenyezteti minden bank és hitelintézet ajánlatát.
️ Önnek nincs más dolga, mint beszélgetni munkatársunkkal, majd a megversenyeztetett ajánlatokból kiválasztani a hosszútávon is a legmegfelelőbb konstrukciót.
️ Szakértőink 20 éves szakmai tapasztalattal és egyedi igényekre szabott, fogyasztóbarát lakáshitelekkel, babaváró hitellel, teljes körű CSOK PLUSZ és OTTHON START PROGRAM ügyintézéssel várják Önt.
️ Előre egyeztetve akár a normál munkaidő után is.
️ Kérdéseire szívesen válaszolok, hívjon bizalommal!