Eladó Ház- házrész
Hirdetéskód: 9298334
Dunaharaszti Bocskai utca 10 - OTP Ingatlanpont Iroda
Felújításhoz személyi kölcsönt keres? Kalkuláljon itt! →
Ez a hirdetés megfelelhet a FIX 3%-os programnak.
Tudj meg többet a részletekről itt.
103.00 m2
ALAPTERÜLET2
SZOBASZÁMnincs megadva
ÉPÍTÉSGáz (cirkó)
FŰTÉS- CSOK igénybe vehető nem
- Tetőtér beépíthető nem
- Építés éve 1972
- Fűtés Gáz (cirkó)
- Klíma nem
- Szigetelt nem
A+++
A++
A+
A
B
C
D
E
F
G
H
I
Az ingatlan leírása
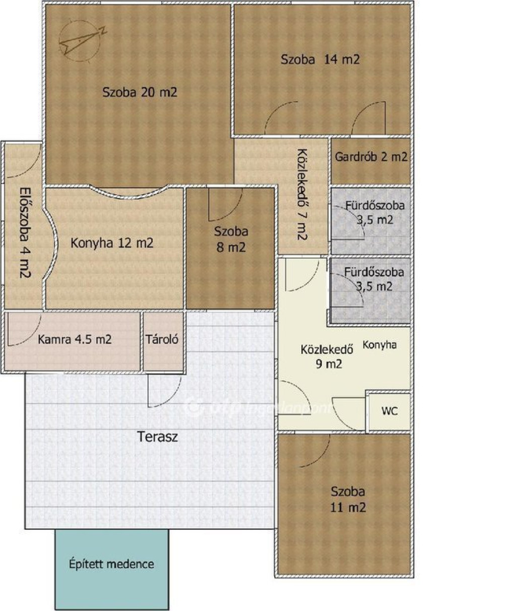
Pest megyében Üllőn eladó egy csendes nívós környéken lévő, 103 m2-s 2+2 félszobás felújított , duplakomfortos, családi ház amely egy1050 m2-s telken helyezkedik el. Állapot: Szigetelt falak, esztétikus betoncserép fedés, frissen felújított belső terek. Az ingatlan egy ajtó beépítésével 2 generációs házzá alakítható át. Kérem nézze meg az alaprajzot.
Fűtés-hűtés: Gazdaságos gáz-cirkó és hűtő fűtő klíma.
Kert és extrák: A parkosított telken egy épített kismedence várja a nyári felfrissülést. A nagy méretű terasz lehetőséget teremt a grillezésekre, pihenésre. A tárolást melléképület az autók parkolását saját garázs biztosítja.
A környék infrastruktúrája kiváló!!! Minden ami számit pár perc sétával elérhető. Beleértve a vasút állómást is. Teljes körű ügyintézéssel állunk az eladók és a vevők rendelkezésére! A kínálatunkból választott ingatlan finanszírozásához kedvezményes hitel- konstrukciókat kínálunk. Az adásvételi szerződés megkötéséhez igény szerint megbízható ügyvédi közreműködést biztosítunk, és segítséget nyújtunk az adásvételhez kapcsolódó ügyek intézéséhez. Kérdés , mutatás esetén hívjon bizalommal! Ref. szám:M322928 Az ingatlan megfelel a kedvezményes hitelek felvételére is. Beleértve a 3%-s OSP hitelt is.
Fűtés-hűtés: Gazdaságos gáz-cirkó és hűtő fűtő klíma.
Kert és extrák: A parkosított telken egy épített kismedence várja a nyári felfrissülést. A nagy méretű terasz lehetőséget teremt a grillezésekre, pihenésre. A tárolást melléképület az autók parkolását saját garázs biztosítja.
A környék infrastruktúrája kiváló!!! Minden ami számit pár perc sétával elérhető. Beleértve a vasút állómást is. Teljes körű ügyintézéssel állunk az eladók és a vevők rendelkezésére! A kínálatunkból választott ingatlan finanszírozásához kedvezményes hitel- konstrukciókat kínálunk. Az adásvételi szerződés megkötéséhez igény szerint megbízható ügyvédi közreműködést biztosítunk, és segítséget nyújtunk az adásvételhez kapcsolódó ügyek intézéséhez. Kérdés , mutatás esetén hívjon bizalommal! Ref. szám:M322928 Az ingatlan megfelel a kedvezményes hitelek felvételére is. Beleértve a 3%-s OSP hitelt is.