Eladó Ház- házrész
Hirdetéskód: 9255771
GDN Ingatlanhálózat - Sashalom
Felújításhoz személyi kölcsönt keres? Kalkuláljon itt! →
Ez a hirdetés megfelelhet a FIX 3%-os programnak.
Tudj meg többet a részletekről itt.
216.00 m2
ALAPTERÜLET5
SZOBASZÁMnincs megadva
ÉPÍTÉSGáz (cirkó)
FŰTÉS- CSOK igénybe vehető nem
- Tetőtér beépíthető nem
- Fűtés Gáz (cirkó)
- Klíma nem
- Szigetelt nem
A+++
A++
A+
A
B
C
D
E
F
G
H
I
Az ingatlan leírása
AKÁR 2 GENERÁCIÓ SZÁMÁRA IS ALKALMAS, HATALMAS TEREKKEL!
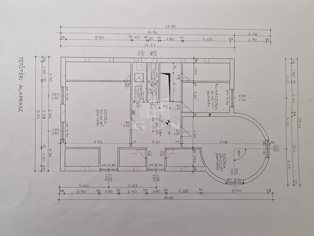
Megvételre kínálok Tura közkedvelt és csendes részén, 1039 nm-es telken fekvő, nettó 215,93 nm, bruttó 315 nm-es, 1990-ben épült, tégla falazatú, tágas, 5 szobás, dupla komfortos, jó állapotú családi házat.
Az épületet gáz és vegyes kazán, 1 db klíma, 5 szoba, amerikai konyha - nappali, 2 füdőszoba, 100 nm-es pince, valamint az emeleten kb. 30 négyzetméternyi rejtett tároló jellemzi, a biztonságért kamera és riasztó rendszer felelős.
között megújult az épület, melynek keretében az alábbi munkák lettek elvégezve:
- fali és padlóburkolatok cseréje
- fürdőszoba teljes átalakítása
- elektromos padlófűtés a konyhában
- Hátsó terasz kialakítása
- nyílászárók cseréje
- klíma telepítése
- első lépcső + terasz burkolatának cseréje
Buszmegálló, bolt, orvos, iskola, óvoda, bölcsőde 6-10 perc sétára található.
A szomszédok kedvesek és barátságosak, mellyel egy igazán élhető lakóközösséget alkotnak.
Csere értékegyeztetéssel lehetséges újépítésű lakásra vagy kisebb, felújított családi házra a Balaton környékén és Hatvan városában!
AZ INGATLAN PER, TEHER és IGÉNYMENTES!
INGYENES hitel tanácsadás!
CSOK+, Falusi CSOK és OSP ügyintézés!
BANKFÜGGETLEN hitelcentrumunk minden elérhető bank és hitelintézet ajánlatát versenyezteti az Ön kedvéért, ráadásul DÍJMENTESEN.
Önnek nincs más dolga, mint elbeszélgetni munkatársunkkal, aki a hallott információk alapján versenyre hívja a bankokat, hogy Ön hosszú távon is a legjobb konstrukciót kaphassa. A legjobb ajánlatokból végül Ön választhatja ki a nyertest.
Munkatársaink sokéves szakmai tapasztalattal várják Önt, előre egyeztetve akár a normál munkaidő után is.
Amennyiben a hirdetés felkeltette érdeklődését, várom hívását, akár hétvégén is! S.S. ...TOVÁBBI, TÖBBEZRES INGATLAN KÍNÁLAT: - GDN azonosító: 391991
Megvételre kínálok Tura közkedvelt és csendes részén, 1039 nm-es telken fekvő, nettó 215,93 nm, bruttó 315 nm-es, 1990-ben épült, tégla falazatú, tágas, 5 szobás, dupla komfortos, jó állapotú családi házat.
Az épületet gáz és vegyes kazán, 1 db klíma, 5 szoba, amerikai konyha - nappali, 2 füdőszoba, 100 nm-es pince, valamint az emeleten kb. 30 négyzetméternyi rejtett tároló jellemzi, a biztonságért kamera és riasztó rendszer felelős.
között megújult az épület, melynek keretében az alábbi munkák lettek elvégezve:
- fali és padlóburkolatok cseréje
- fürdőszoba teljes átalakítása
- elektromos padlófűtés a konyhában
- Hátsó terasz kialakítása
- nyílászárók cseréje
- klíma telepítése
- első lépcső + terasz burkolatának cseréje
Buszmegálló, bolt, orvos, iskola, óvoda, bölcsőde 6-10 perc sétára található.
A szomszédok kedvesek és barátságosak, mellyel egy igazán élhető lakóközösséget alkotnak.
Csere értékegyeztetéssel lehetséges újépítésű lakásra vagy kisebb, felújított családi házra a Balaton környékén és Hatvan városában!
AZ INGATLAN PER, TEHER és IGÉNYMENTES!
INGYENES hitel tanácsadás!
CSOK+, Falusi CSOK és OSP ügyintézés!
BANKFÜGGETLEN hitelcentrumunk minden elérhető bank és hitelintézet ajánlatát versenyezteti az Ön kedvéért, ráadásul DÍJMENTESEN.
Önnek nincs más dolga, mint elbeszélgetni munkatársunkkal, aki a hallott információk alapján versenyre hívja a bankokat, hogy Ön hosszú távon is a legjobb konstrukciót kaphassa. A legjobb ajánlatokból végül Ön választhatja ki a nyertest.
Munkatársaink sokéves szakmai tapasztalattal várják Önt, előre egyeztetve akár a normál munkaidő után is.
Amennyiben a hirdetés felkeltette érdeklődését, várom hívását, akár hétvégén is! S.S. ...TOVÁBBI, TÖBBEZRES INGATLAN KÍNÁLAT: - GDN azonosító: 391991