Eladó Ház- házrész
Hirdetéskód: 9256840
5100 Jászberény Szentháromság tér 2. - OTP Ingatlanpont Iroda
102.00 m2
ALAPTERÜLET3
SZOBASZÁMnincs megadva
ÉPÍTÉSnincs megadva
FŰTÉS- CSOK igénybe vehető nem
- Tetőtér beépíthető nem
- Építés éve 1955
- Klíma nem
- Szigetelt nem
A+++
A++
A+
A
B
C
D
E
F
G
H
I
Az ingatlan leírása
Jász-Nagykun-Szolnok vármegyében, mindössze 15 km-re Szolnoktól, Tószegen eladó egy azonnal költözhető, kétgenerációs családi ház.
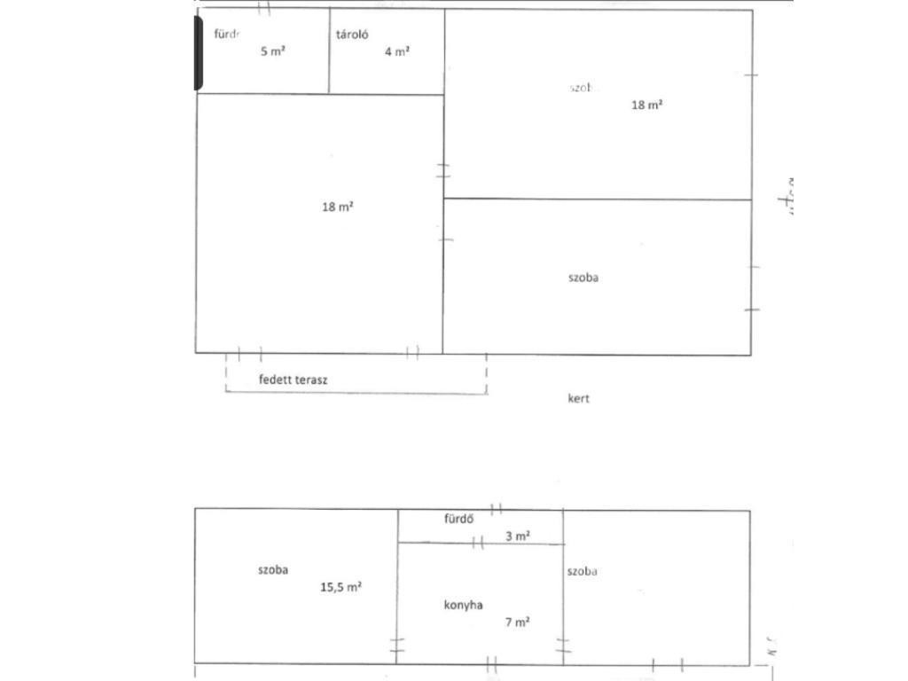
A 666 nm-es telken két különálló lakrész található, így akár két család számára is ideális választás lehet.
A nagyobb, 60 nm-es épületben két tágas szoba kapott helyet, amelyek még kialakításra várnak, valamint egy 18 nm-es nappali, konyha, egy 7 nm-es fürdő + WC és egy 5 nm-es kamra.
A ház stabil beton alapra épült, vályog falazattal, fűtését kályha biztosítja, a gáz pedig az utcában elérhető.
A kisebb, 42 nm-es házrészben két kényelmes szoba, egy konyha, valamint fürdő + WC található, a fűtést itt is kályha adja.
A bejárat előtt egy hangulatos, nagy fedett terasz várja új lakóit, tökéletes helyszínt teremtve a reggeli kávéhoz vagy egy nyugodt esti pihenéshez.
A telken ezen felül garázs és gazdasági épületek is rendelkezésre állnak, így minden adott a kényelmes mindennapokhoz.
A településen falusi CSOK is igénybe vehető.
22000000 Ft
A 666 nm-es telken két különálló lakrész található, így akár két család számára is ideális választás lehet.
A nagyobb, 60 nm-es épületben két tágas szoba kapott helyet, amelyek még kialakításra várnak, valamint egy 18 nm-es nappali, konyha, egy 7 nm-es fürdő + WC és egy 5 nm-es kamra.
A ház stabil beton alapra épült, vályog falazattal, fűtését kályha biztosítja, a gáz pedig az utcában elérhető.
A kisebb, 42 nm-es házrészben két kényelmes szoba, egy konyha, valamint fürdő + WC található, a fűtést itt is kályha adja.
A bejárat előtt egy hangulatos, nagy fedett terasz várja új lakóit, tökéletes helyszínt teremtve a reggeli kávéhoz vagy egy nyugodt esti pihenéshez.
A telken ezen felül garázs és gazdasági épületek is rendelkezésre állnak, így minden adott a kényelmes mindennapokhoz.
A településen falusi CSOK is igénybe vehető.
22000000 Ft