Eladó Ház- házrész
Hirdetéskód: 9306979
5100 Jászberény Szentháromság tér 2. - OTP Ingatlanpont Iroda
Felújításhoz személyi kölcsönt keres? Kalkuláljon itt! →
Ez a hirdetés megfelelhet a FIX 3%-os programnak.
Tudj meg többet a részletekről itt.
81.00 m2
ALAPTERÜLET2
SZOBASZÁMnincs megadva
ÉPÍTÉSEgyéb fűtés
FŰTÉS- CSOK igénybe vehető nem
- Tetőtér beépíthető nem
- Építés éve 1970
- Fűtés Egyéb fűtés
- Klíma nem
- Szigetelt nem
A+++
A++
A+
A
B
C
D
E
F
G
H
I
Az ingatlan leírása
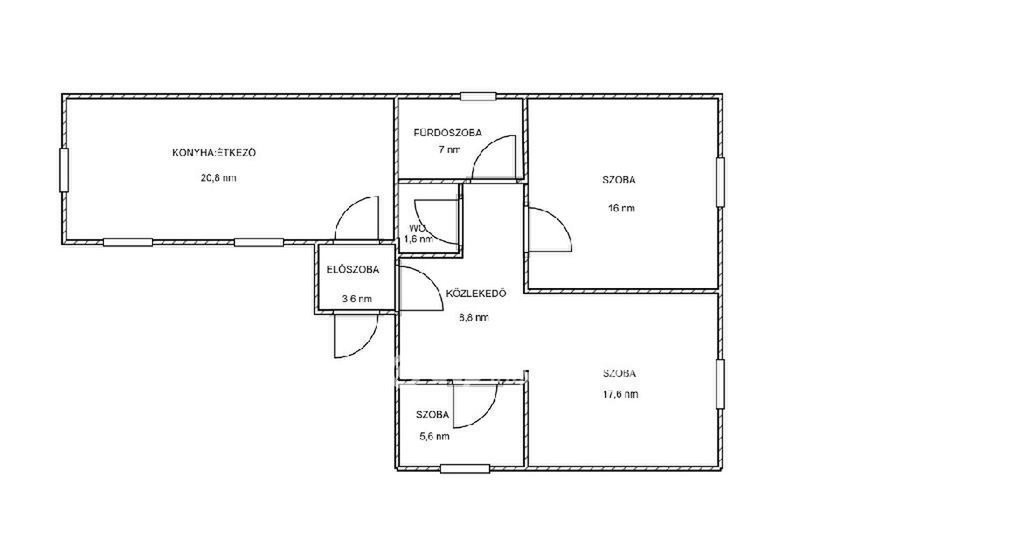
Pest Vármegyében eladó egy teljes belső felújításon átesett családi ház. Az 1960-as években épült vályog falazatú családi ház szerkezetileg kifogástalan állapotban van.
2021-ben teljeskörű belső felújításon esett át, így az ingatlan azonnal birtokba vehető, további ráfordítást nem igényel. A fürdőszobában zuhanykabin található, különleges, kézzel készített egyedi kerámia falburkolattal és mosdókagylóval. A helyiség komfortját padlófűtés teszi teljessé. A világos, tágas konyhát egyedi kerámia falburkolat teszi különlegessé. A gázvezeték az utcában elérhető, jelenleg a gáztűzhely palackos gázzal működik. Az otthon melegéről központi elhelyezkedésű cserépkályha gondoskodik, a hálószobában hűtő-fútő klima is található. A vételár tartalmazza a teljes bútorzatot, valamint a háztartási gépeket is, többek között a páraelszívót, két hűtőszekrényt, a gáztűzhelyet, a mosógépet és a 100 literes bojlert. Az ingatlan egyedi hangulatát tovább emelik a kézzel készített, különleges kerámia lámpatestek, amelyek szintén az ár részét képezik és az új tulajdonosnál maradnak. A kert öntözését fúrt kút biztosítja szivattyúval, a kerti eszközök tárolására külön tároló szolgál, a fűnyíró és az öntözőrendszer pedig a vételár részét képezi. A barátságos, gondozott kertben gyümölcsfák, bogyós növények, diófa, szőlő és rózsák is helyet kaptak. A 16 nm-es, korábban garázsként használt melléképület jelenleg műhelyként működik; vízvezetékkel ellátott és ipari árammal felszerelt.
A vásárlás finanszírozásában az OTP kedvezőbb kamatozású hitelkonstrukcióival és egyéb banki termékek kínálatával tudunk segíteni, díjmentesen, sorban állás nélkül! Az adásvételi szerződés lebonyolításához korrekt ügyvédi közreműködést tudunk ajánlani. Amennyiben felkeltettem érdeklődését, hívjon bizalommal!
40000000 Ft
2021-ben teljeskörű belső felújításon esett át, így az ingatlan azonnal birtokba vehető, további ráfordítást nem igényel. A fürdőszobában zuhanykabin található, különleges, kézzel készített egyedi kerámia falburkolattal és mosdókagylóval. A helyiség komfortját padlófűtés teszi teljessé. A világos, tágas konyhát egyedi kerámia falburkolat teszi különlegessé. A gázvezeték az utcában elérhető, jelenleg a gáztűzhely palackos gázzal működik. Az otthon melegéről központi elhelyezkedésű cserépkályha gondoskodik, a hálószobában hűtő-fútő klima is található. A vételár tartalmazza a teljes bútorzatot, valamint a háztartási gépeket is, többek között a páraelszívót, két hűtőszekrényt, a gáztűzhelyet, a mosógépet és a 100 literes bojlert. Az ingatlan egyedi hangulatát tovább emelik a kézzel készített, különleges kerámia lámpatestek, amelyek szintén az ár részét képezik és az új tulajdonosnál maradnak. A kert öntözését fúrt kút biztosítja szivattyúval, a kerti eszközök tárolására külön tároló szolgál, a fűnyíró és az öntözőrendszer pedig a vételár részét képezi. A barátságos, gondozott kertben gyümölcsfák, bogyós növények, diófa, szőlő és rózsák is helyet kaptak. A 16 nm-es, korábban garázsként használt melléképület jelenleg műhelyként működik; vízvezetékkel ellátott és ipari árammal felszerelt.
A vásárlás finanszírozásában az OTP kedvezőbb kamatozású hitelkonstrukcióival és egyéb banki termékek kínálatával tudunk segíteni, díjmentesen, sorban állás nélkül! Az adásvételi szerződés lebonyolításához korrekt ügyvédi közreműködést tudunk ajánlani. Amennyiben felkeltettem érdeklődését, hívjon bizalommal!
40000000 Ft