Eladó Ház- házrész
Hirdetéskód: 9191864
Velence Tópart utca 47 - OTP Ingatlanpont Iroda
1959 m2
ALAPTERÜLET4
SZOBASZÁMnincs megadva
ÉPÍTÉSnincs megadva
FŰTÉS- CSOK igénybe vehető nem
- Tetőtér beépíthető nem
- Építés éve 2023
- Klíma nem
- Szigetelt nem
A+++
A++
A+
A
B
C
D
E
F
G
H
I
Az ingatlan leírása
Tordason, csendes és nyugodt környezetben kínáljuk megvételre ezt a 2023-ban épült, 135 nm-es, prémium minőségű családi házat, amely egy közel 2 000 nm-es telken helyezkedik el.
Az ingatlan könnyűszerkezetes technológiával, kiemelkedő műszaki tartalommal épült, ennek köszönhetően AA energetikai besorolással és rendkívül alacsony rezsiköltséggel rendelkezik. A fűtésről és hűtésről hőszivattyú, fan-coil egységek és padlófűtés gondoskodnak, a nappaliban pedig egy kandalló teszi meghitté az esték hangulatát. A napelemrendszer kiépítésére előkészítés történt, így az új tulajdonos könnyedén bővítheti a ház energiafüggetlenségét.
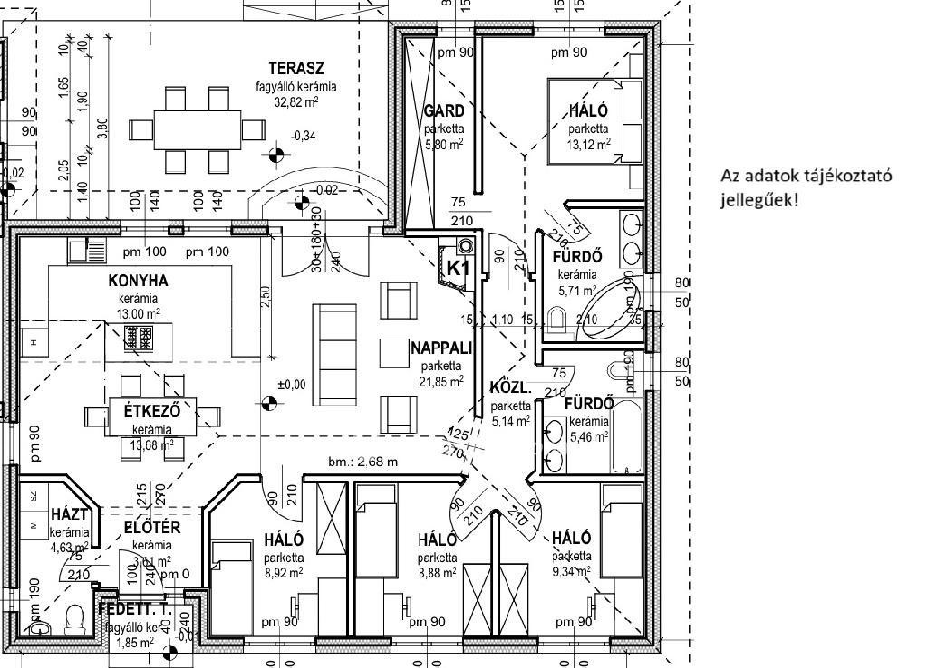
Az elrendezés átgondolt és praktikus: amerikai konyhás nappali, négy hálószoba, két fürdőszoba, gardrób és háztartási helyiség áll rendelkezésre. A 33 nm-es fedett terasz közvetlen kapcsolattal bővíti a nappali életterét.
A házhoz elkészült a garázs és pince építési terve is, amelyet az új tulajdonos a vásárláskor megkap.
A kertben bőséges tér áll rendelkezésre további fejlesztésekhez vagy pihenőkert kialakításához. A biztonságról riasztórendszer előkészítés gondoskodik.
178000000 Ft
Az ingatlan könnyűszerkezetes technológiával, kiemelkedő műszaki tartalommal épült, ennek köszönhetően AA energetikai besorolással és rendkívül alacsony rezsiköltséggel rendelkezik. A fűtésről és hűtésről hőszivattyú, fan-coil egységek és padlófűtés gondoskodnak, a nappaliban pedig egy kandalló teszi meghitté az esték hangulatát. A napelemrendszer kiépítésére előkészítés történt, így az új tulajdonos könnyedén bővítheti a ház energiafüggetlenségét.
Az elrendezés átgondolt és praktikus: amerikai konyhás nappali, négy hálószoba, két fürdőszoba, gardrób és háztartási helyiség áll rendelkezésre. A 33 nm-es fedett terasz közvetlen kapcsolattal bővíti a nappali életterét.
A házhoz elkészült a garázs és pince építési terve is, amelyet az új tulajdonos a vásárláskor megkap.
A kertben bőséges tér áll rendelkezésre további fejlesztésekhez vagy pihenőkert kialakításához. A biztonságról riasztórendszer előkészítés gondoskodik.
178000000 Ft