Eladó Ház- házrész
Hirdetéskód: 9327742
OTP Ingatlanpont Csongrád
Felújításhoz személyi kölcsönt keres? Kalkuláljon itt! →
Ez a hirdetés megfelelhet a FIX 3%-os programnak.
Tudj meg többet a részletekről itt.
80.00 m2
ALAPTERÜLET2
SZOBASZÁMnincs megadva
ÉPÍTÉSHázközponti fűtés egyedi méréssel
FŰTÉS- CSOK igénybe vehető nem
- Tetőtér beépíthető nem
- Építés éve 1950
- Fűtés Házközponti fűtés egyedi méréssel
- Klíma nem
- Szigetelt nem
A+++
A++
A+
A
B
C
D
E
F
G
H
I
Az ingatlan leírása
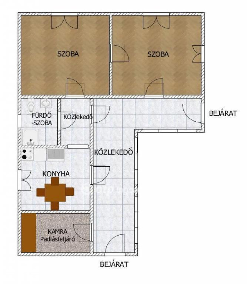
Csongrád-Csanád vármegyében, Tömörkény szívében kínálok családi házat eladásra. A házban két tágas, világos szoba, fürdőszoba, konyha és egy nagy előtér található, mely sokféle módon hasznosítható. A ház beton alapon vegyes falazatú, tetőszerkezete jó. A szobákban parketta van, a többi helyiség járólappal burkolt. Nemrég még lakott ingatlan, igény szerint felújítandó. A komfortos meleget központi fűtés biztosítja, ami gázkazánnal és vegyes tüzelésű kazánnal is megoldható. Fél éve telepített korszerű klíma is hozzájárul az otthon kellemes hőmérsékletéhez.
Az ingatlanhoz praktikus melléképület tartozik, benne 12 m2-es garázs, kazánház, plusz tároló, így minden fontos kerti eszköz is kényelmesen elhelyezhető. Az épületek folytatásában állattartásra alkalmas ólak, góré, fásszín stb. kapott helyet. A tágas, 1100 m2-es telken gyümölcsfák - barack, cseresznye, meggy, birsalma, dió - teremnek. A kert öntözéséhez fúrtkút is rendelkezésére áll, méretéből adódóan konyhakert kialakítására is van lehetőség.
Ideális választás bárkinek, aki nyugodt, barátságos környezetben szeretne élni, mégis a központ közelében. Ne hagyja ki ezt a remek lehetőséget! Jöjjön el, nézze meg személyesen!
Az OTP Ingatlanpont banki háttérrel, eladóink és vevőink igényeit teljes körűen ki tudja szolgálni, az eladástól a vevői finanszírozásig. Hitel igénylés esetén akár egyedi kamatkedvezménnyel, jogosultság esetén az állami támogatásokhoz kapcsolódó felvilágosítással, teljes körű pénzügyi tanácsadással és ügyintézéssel állunk ügyfeleink rendelkezésére. Kedvező hitelajánlatok, mint pl. BABAVÁRÓ hitel, piaci hitel, és szabad felhasználású hitelek, Otthon Start támogatott hitel, CSOK plusz, falusi csok. A pénzügyi tanácsadás és ügyintézői szolgáltatásunk díjmentes. VÁLASSZUK KI EGYÜTT AZ ÖNNEK LEGMEGFELELŐBB AJÁNLATOT! BANKI SORBAN ÁLLÁS NÉLKÜL!.
Az energetikai tanúsítvány készítése folyamatban van, amint rendelkezésre áll, úgy azzal a hirdetés frissítésre kerül.
Az ingatlanhoz praktikus melléképület tartozik, benne 12 m2-es garázs, kazánház, plusz tároló, így minden fontos kerti eszköz is kényelmesen elhelyezhető. Az épületek folytatásában állattartásra alkalmas ólak, góré, fásszín stb. kapott helyet. A tágas, 1100 m2-es telken gyümölcsfák - barack, cseresznye, meggy, birsalma, dió - teremnek. A kert öntözéséhez fúrtkút is rendelkezésére áll, méretéből adódóan konyhakert kialakítására is van lehetőség.
Ideális választás bárkinek, aki nyugodt, barátságos környezetben szeretne élni, mégis a központ közelében. Ne hagyja ki ezt a remek lehetőséget! Jöjjön el, nézze meg személyesen!
Az OTP Ingatlanpont banki háttérrel, eladóink és vevőink igényeit teljes körűen ki tudja szolgálni, az eladástól a vevői finanszírozásig. Hitel igénylés esetén akár egyedi kamatkedvezménnyel, jogosultság esetén az állami támogatásokhoz kapcsolódó felvilágosítással, teljes körű pénzügyi tanácsadással és ügyintézéssel állunk ügyfeleink rendelkezésére. Kedvező hitelajánlatok, mint pl. BABAVÁRÓ hitel, piaci hitel, és szabad felhasználású hitelek, Otthon Start támogatott hitel, CSOK plusz, falusi csok. A pénzügyi tanácsadás és ügyintézői szolgáltatásunk díjmentes. VÁLASSZUK KI EGYÜTT AZ ÖNNEK LEGMEGFELELŐBB AJÁNLATOT! BANKI SORBAN ÁLLÁS NÉLKÜL!.
Az energetikai tanúsítvány készítése folyamatban van, amint rendelkezésre áll, úgy azzal a hirdetés frissítésre kerül.