Eladó Ház- házrész
Hirdetéskód: 9293053
Dunaharaszti Bocskai utca 10 - OTP Ingatlanpont Iroda
Felújításhoz személyi kölcsönt keres? Kalkuláljon itt! →
Ez a hirdetés megfelelhet a FIX 3%-os programnak.
Tudj meg többet a részletekről itt.
106.00 m2
ALAPTERÜLET4
SZOBASZÁMnincs megadva
ÉPÍTÉSElektromos
FŰTÉS- CSOK igénybe vehető nem
- Tetőtér beépíthető nem
- Építés éve 2009
- Fűtés Elektromos
- Klíma nem
- Szigetelt nem
A+++
A++
A+
A
B
C
D
E
F
G
H
I
Az ingatlan leírása
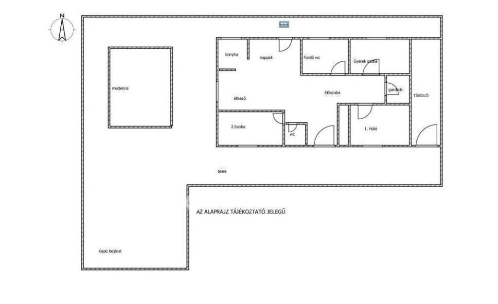
Eladó családi ház Tököl csendes részén ? 106 négyzetméter, medencével és kandallóval!
Szökjön meg a város zajától és találjon otthonra Tököl egyik csendes, belső udvaros részén! Budapesttől mindössze 28 km-re eladó egy 2009-ben épült, 106 m?-es családi ház, amely kiváló választás lehet családoknak és nyugalmat keresőknek
A ház elrendezése praktikus és kényelmes: négy szoba, tágas konyha-étkező, fürdőszoba, dupla WC, valamint gardrób két darab 3,5 kW-os klíma vízteres kandalló.
Telek 697 négyzetméteres. A ház körbejárható, az egyik oldalán egy OSB-ből épült tároló.
A gondozott udvar, épített medence vízforgató aknával, sütögető, terasz, két fatároló, valamint autóbeállási lehetőség.
Tököl dinamikusan fejlődő település, ahol számos új építésű ingatlanok, bevásárló központ, iskolák, óvodák, HÉV-vel és busszal is.
Amennyiben felkeltettem érdeklődését, várom megtisztelő hívását a hét bármely napján. Az OTP Bankcsoport teljes körű ügyintézéssel áll az eladók és a vevők rendelkezésére! Az adásvételi szerződés megkötéséhez igény szerint megbízható ügyvédi közreműködést és sorban állás nélküli hitel tanácsadást biztosítunk ügyfeleink részére!
Referenciaszám: M303843
Szökjön meg a város zajától és találjon otthonra Tököl egyik csendes, belső udvaros részén! Budapesttől mindössze 28 km-re eladó egy 2009-ben épült, 106 m?-es családi ház, amely kiváló választás lehet családoknak és nyugalmat keresőknek
A ház elrendezése praktikus és kényelmes: négy szoba, tágas konyha-étkező, fürdőszoba, dupla WC, valamint gardrób két darab 3,5 kW-os klíma vízteres kandalló.
Telek 697 négyzetméteres. A ház körbejárható, az egyik oldalán egy OSB-ből épült tároló.
A gondozott udvar, épített medence vízforgató aknával, sütögető, terasz, két fatároló, valamint autóbeállási lehetőség.
Tököl dinamikusan fejlődő település, ahol számos új építésű ingatlanok, bevásárló központ, iskolák, óvodák, HÉV-vel és busszal is.
Amennyiben felkeltettem érdeklődését, várom megtisztelő hívását a hét bármely napján. Az OTP Bankcsoport teljes körű ügyintézéssel áll az eladók és a vevők rendelkezésére! Az adásvételi szerződés megkötéséhez igény szerint megbízható ügyvédi közreműködést és sorban állás nélküli hitel tanácsadást biztosítunk ügyfeleink részére!
Referenciaszám: M303843