Eladó Ház- házrész
Hirdetéskód: 9246947
Kulcs-Pont Ingatlan Kft.
120.00 m2
ALAPTERÜLET4
SZOBASZÁMnincs megadva
ÉPÍTÉSnincs megadva
FŰTÉS- CSOK igénybe vehető nem
- Tetőtér beépíthető nem
- Építés éve 1970
- Klíma nem
- Szigetelt nem
A+++
A++
A+
A
B
C
D
E
F
G
H
I
Az ingatlan leírása
Budapesttől ca 55km távolságra kínálunk eladásra netto 120 m2 alapterületű családi házat 1247m2-es telken Tóalmás központjában.
Az ingatlan tökéletes választás lehet mindazok számára, akik a városi közelséget és a nyugodt lakókörnyezetet egyaránt értékelik.
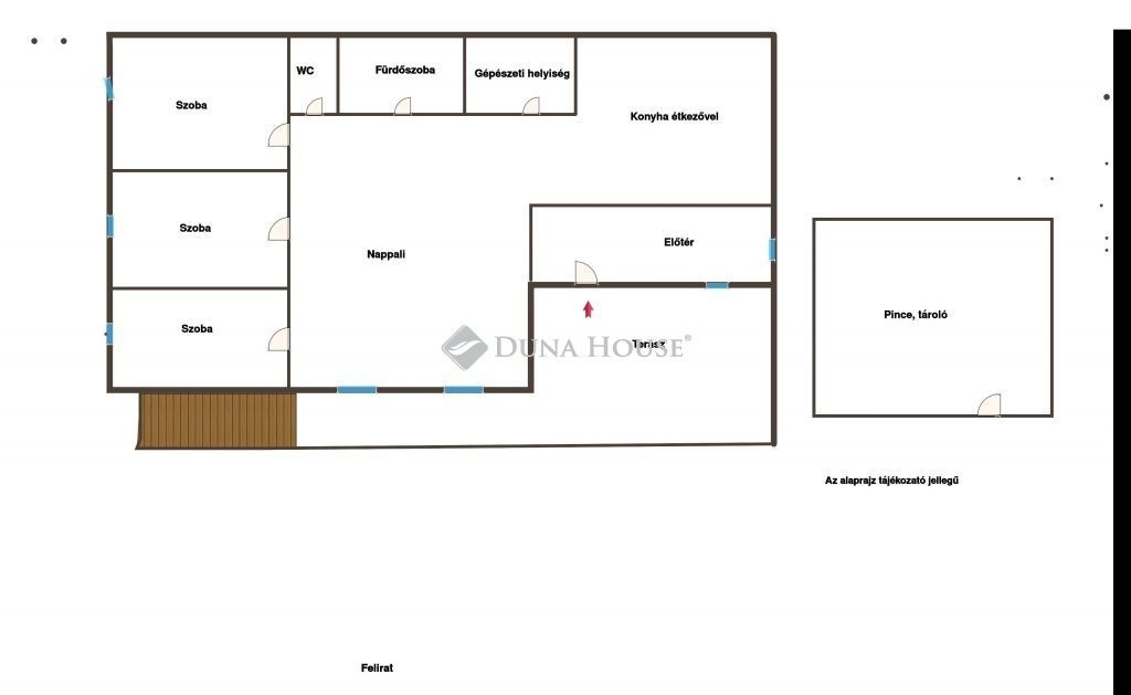
Az ingatlan beton alapra épült, vegyes falazatú, cserép tetős. Három hálószoba, nagy méretű nappali, kádas és zuhanyzós fürdőszoba, külön wc, gépház, nagy méretű beépített konyha étkezővel és egy előszoba található benne.
A fűtést vegyes tüzelésű kazán biztosítja, radiátoros hőleadással, fa és műanyag nyílászárók gondoskodnak a jó hőszigetelésről. Külső lejáratú pincéje ca. 20m2 alapterületű, 2m belmagassággal tágas, száraz, jól szigetelt.
Esztétikai frissítést követően kitűnő otthona lehet kis - vagy nagy családosoknak is. Nyáron a kertben a gyerekek részére betonozott alapra lehet úszómedencét felállítani fák árnyékában. Az ingatlan OSP hitellel is megvásárolható, Babaváró és CSOK+ is igényelhető.
Ingatlanvásárláshoz kapcsolódóan ügyvédi -, illetve teljeskörű pénzügyi tanácsadással, hitelezéssel állunk rendelkezésére minden kedves ügyfelünknek.
A fotók között AI által szerkesztett képek találhatók!
Megtekintéshez hívjon bizalommal!
Az ingatlan tökéletes választás lehet mindazok számára, akik a városi közelséget és a nyugodt lakókörnyezetet egyaránt értékelik.
Az ingatlan beton alapra épült, vegyes falazatú, cserép tetős. Három hálószoba, nagy méretű nappali, kádas és zuhanyzós fürdőszoba, külön wc, gépház, nagy méretű beépített konyha étkezővel és egy előszoba található benne.
A fűtést vegyes tüzelésű kazán biztosítja, radiátoros hőleadással, fa és műanyag nyílászárók gondoskodnak a jó hőszigetelésről. Külső lejáratú pincéje ca. 20m2 alapterületű, 2m belmagassággal tágas, száraz, jól szigetelt.
Esztétikai frissítést követően kitűnő otthona lehet kis - vagy nagy családosoknak is. Nyáron a kertben a gyerekek részére betonozott alapra lehet úszómedencét felállítani fák árnyékában. Az ingatlan OSP hitellel is megvásárolható, Babaváró és CSOK+ is igényelhető.
Ingatlanvásárláshoz kapcsolódóan ügyvédi -, illetve teljeskörű pénzügyi tanácsadással, hitelezéssel állunk rendelkezésére minden kedves ügyfelünknek.
A fotók között AI által szerkesztett képek találhatók!
Megtekintéshez hívjon bizalommal!