Eladó Ház- házrész
Hirdetéskód: 9255934
Kiss György Csaba
Felújításhoz személyi kölcsönt keres? Kalkuláljon itt! →82.00 m2
ALAPTERÜLET2
SZOBASZÁMnincs megadva
ÉPÍTÉSnincs megadva
FŰTÉS- CSOK igénybe vehető nem
- Tetőtér beépíthető nem
- Építés éve 1940
- Klíma nem
- Szigetelt nem
A+++
A++
A+
A
B
C
D
E
F
G
H
I
Az ingatlan leírása
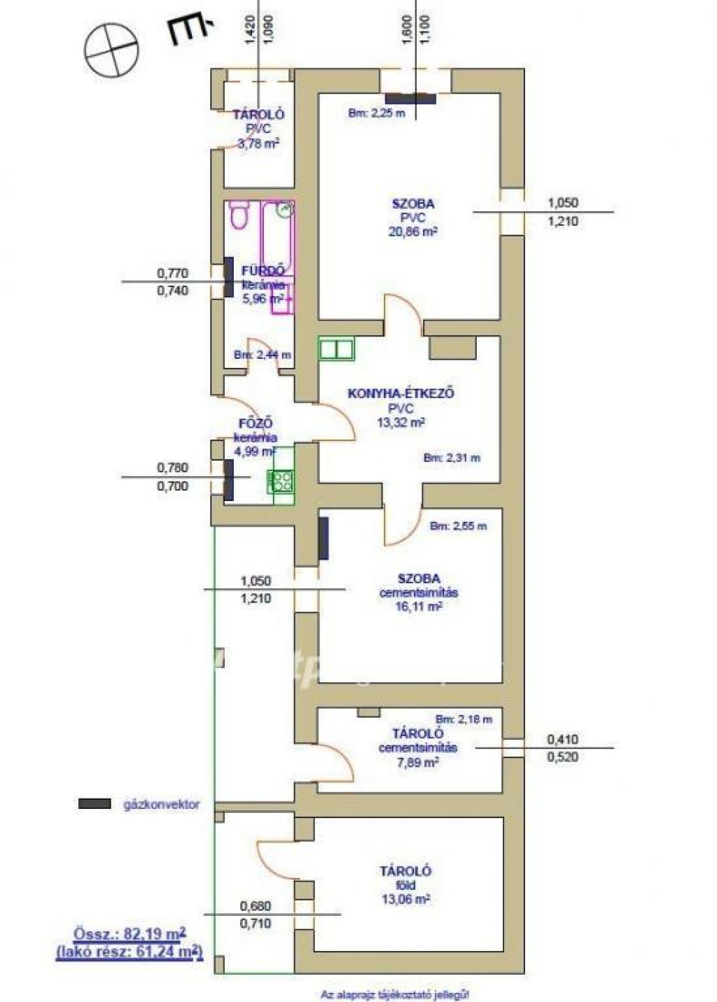
TISZAFÜREDEN ELADÓ EGY FELÚJÍTANDÓ PARASZTHÁZ, A TISZA-TÓTÓL 3,7 KM-RE, KITŰNŐ KÖRNYÉKEN!!! Az eredeti épület kb. 1950-es években épült, a telken minden közmű, a ház alapterülete 82,19 m2 (lakórész: 61,24 m2). A ház 2 szobás, 1 étkező, 1 fűrdőszoba WC-vel, 1 főzhelység, 1 külső kamra, ahol a padfeljáró helyezkedik el és tornác. Az épület falazata vegyes (javarészt vályog részben tégla), födém saralt fagerendás, tetőn cserépfedés.
Udvara részben körbekerített, rajta fúrt kút, kerti csap (leszerelve, de visszaszerelhető), gyümölcsfák (cseresznye, szilva, meggy).
Az ingatlan azonnal birtokba vehető!
Távolságok: városközpont, Fő utca (700 m), játszótér (Budasi Szabaidőpark 750 m), 33-as főút (700 m), Tiszta-tó, szabad-strand (3,7 km).
Fűtés: gázkonvektor.
Melegvíz: villanybojler.
Telekméret: 3087 m2.
Közművek: víz, gáz, csatorna, villany.
Tiszafüreden a kerékpár-, horgászturizmus, vadászat, folyamatos beruházások (vannak tervezettek is) amelyek által a szezon már nem csak a nyárra korlátozódik!!! Tiszafüred és Poroszló között 2020-ban készült el a kerékpárút, ezáltal teljesen körbe lehet kerékpározni a Tisza-tavat. A távolsági busz és vonatközlekedés kiváló a településen (pályaudvarok), a város közúti megközelíthetősége szintén, 33-as, 34-es főút, M3-as autópálya 30 km-re (25 perc). Tiszafüred Tisza-tavi kisváros, a Tisza-tó fővárosa, idegenforgalmi és térségi központ a Hortobágy kapujában, igen széleskörű infrastrukturális ellátottsággal: bölcsőde, óvoda, általános iskolák, gimnázium, szakközépiskola, szakmunkásképző, gyógyszertárak, nagy áruházak (TESCO, LIDL, SPAR, Penny), szakorvosi ellátások, fizioterápiás szolgáltatások, benzinkutak (MOL, SHELL, OIL), hivatalok, járási hivatal, okmányiroda, rövidesen megújuló termálstrand, kiváló szabadvizi strand, kerékpáros centrum, kitűnő éttermek, szolgáltatások, közeli nagyobb városok Eger (50 km), Debrecen (67 km), Karcag (40 km), de Budapest is 150 km-re (1,5 óra), szomszédos Poroszlón Ökocentrum.
Amennyiben hirdetésem felkeltette érdeklődését, keressen bizalommal bármikor (hétvégén is!), lehetőleg a telefonszámon, ha nem tudom azonnal felvenni, visszahívom, ha a számát kijelzi. További kérdéseire is készséggel válaszolok. A tiszafüredi OTP Ingatlanpont és OTP Pénzügyi Pont teljes körű ügyintézéssel áll az eladók és a vevők rendelkezésére!!! A kínálatunkból választott ingatlan finanszírozásához kedvezményes hitelkonstrukciókat kínálunk! Az adásvételi szerződés megkötéséhez - igény szerint - megbízható ügyvédi közreműködést biztosítunk, és segítséget nyújtunk az adásvételhez kapcsolódó ügyek intézéséhez, hiteligényléshez teljes körűen (igazolások igénylése, nyomtatványok kitöltése, benyújtása, kérelem gondozása stb.). A közművek átírását is elvégezzük az eladó és a vevő helyett.
Irányár: 18 millió Ft
Referenciaszám: M309420
Udvara részben körbekerített, rajta fúrt kút, kerti csap (leszerelve, de visszaszerelhető), gyümölcsfák (cseresznye, szilva, meggy).
Az ingatlan azonnal birtokba vehető!
Távolságok: városközpont, Fő utca (700 m), játszótér (Budasi Szabaidőpark 750 m), 33-as főút (700 m), Tiszta-tó, szabad-strand (3,7 km).
Fűtés: gázkonvektor.
Melegvíz: villanybojler.
Telekméret: 3087 m2.
Közművek: víz, gáz, csatorna, villany.
Tiszafüreden a kerékpár-, horgászturizmus, vadászat, folyamatos beruházások (vannak tervezettek is) amelyek által a szezon már nem csak a nyárra korlátozódik!!! Tiszafüred és Poroszló között 2020-ban készült el a kerékpárút, ezáltal teljesen körbe lehet kerékpározni a Tisza-tavat. A távolsági busz és vonatközlekedés kiváló a településen (pályaudvarok), a város közúti megközelíthetősége szintén, 33-as, 34-es főút, M3-as autópálya 30 km-re (25 perc). Tiszafüred Tisza-tavi kisváros, a Tisza-tó fővárosa, idegenforgalmi és térségi központ a Hortobágy kapujában, igen széleskörű infrastrukturális ellátottsággal: bölcsőde, óvoda, általános iskolák, gimnázium, szakközépiskola, szakmunkásképző, gyógyszertárak, nagy áruházak (TESCO, LIDL, SPAR, Penny), szakorvosi ellátások, fizioterápiás szolgáltatások, benzinkutak (MOL, SHELL, OIL), hivatalok, járási hivatal, okmányiroda, rövidesen megújuló termálstrand, kiváló szabadvizi strand, kerékpáros centrum, kitűnő éttermek, szolgáltatások, közeli nagyobb városok Eger (50 km), Debrecen (67 km), Karcag (40 km), de Budapest is 150 km-re (1,5 óra), szomszédos Poroszlón Ökocentrum.
Amennyiben hirdetésem felkeltette érdeklődését, keressen bizalommal bármikor (hétvégén is!), lehetőleg a telefonszámon, ha nem tudom azonnal felvenni, visszahívom, ha a számát kijelzi. További kérdéseire is készséggel válaszolok. A tiszafüredi OTP Ingatlanpont és OTP Pénzügyi Pont teljes körű ügyintézéssel áll az eladók és a vevők rendelkezésére!!! A kínálatunkból választott ingatlan finanszírozásához kedvezményes hitelkonstrukciókat kínálunk! Az adásvételi szerződés megkötéséhez - igény szerint - megbízható ügyvédi közreműködést biztosítunk, és segítséget nyújtunk az adásvételhez kapcsolódó ügyek intézéséhez, hiteligényléshez teljes körűen (igazolások igénylése, nyomtatványok kitöltése, benyújtása, kérelem gondozása stb.). A közművek átírását is elvégezzük az eladó és a vevő helyett.
Irányár: 18 millió Ft
Referenciaszám: M309420