Eladó Ház- házrész
Hirdetéskód: 9272350
Balatonfűzfő Munkás tér 3 - OTP Ingatlanpont Iroda
Felújításhoz személyi kölcsönt keres? Kalkuláljon itt! →190.00 m2
ALAPTERÜLET6
SZOBASZÁMnincs megadva
ÉPÍTÉSGáz (konvektor)
FŰTÉS- CSOK igénybe vehető nem
- Belső szintek 3
- Tetőtér beépíthető nem
- Építés éve 2001
- Fűtés Gáz (konvektor)
- Klíma nem
- Szigetelt nem
A+++
A++
A+
A
B
C
D
E
F
G
H
I
Az ingatlan leírása
Panorámás, háromszintes családi ház Tihany Cserhegyen - 500 méterre a kikötőtől
Tihany Cserhegy városrészében kínálunk megvételre egy 669 m2-es, szintkülönbséges telken elhelyezkedő, háromszintes, 190 m2-es családi házat. Az ingatlan egyik legnagyobb értéke a balatoni panoráma, a kiváló lokáció és a sokoldalú hasznosíthatóság.
Az épület 35 cm-es kerámia tégla falazattal épült, fa nyílászárókkal, amelyekhez esztétikus és praktikus fa zsalugáterek tartoznak. A fűtést cirkó gázkazán (Junkers) biztosítja radiátoros hőleadással az egész házban, míg a földszinten és a szuterén szinten elhelyezett cserépkályhák meghitt hangulatot és kiegészítő meleget adnak a hűvösebb időszakban.
A burkolatok kialakítása praktikus és időtálló:
-a földszinten hidegburkolat található,
-az emeleti szobák laminált padlóval burkoltak,
-a szuterén szinten szintén hidegburkolat került kialakításra.
Főbb paraméterek
-Telek: 669 m2
-Lakótér: 190 m2
-Falazat: 35 cm kerámia tégla
-Fűtés: cirkó gáz (Junkers kazán), radiátoros rendszer + cserépkályha
-Nyílászárók: fa szerkezetűek, fa zsalugáterrel
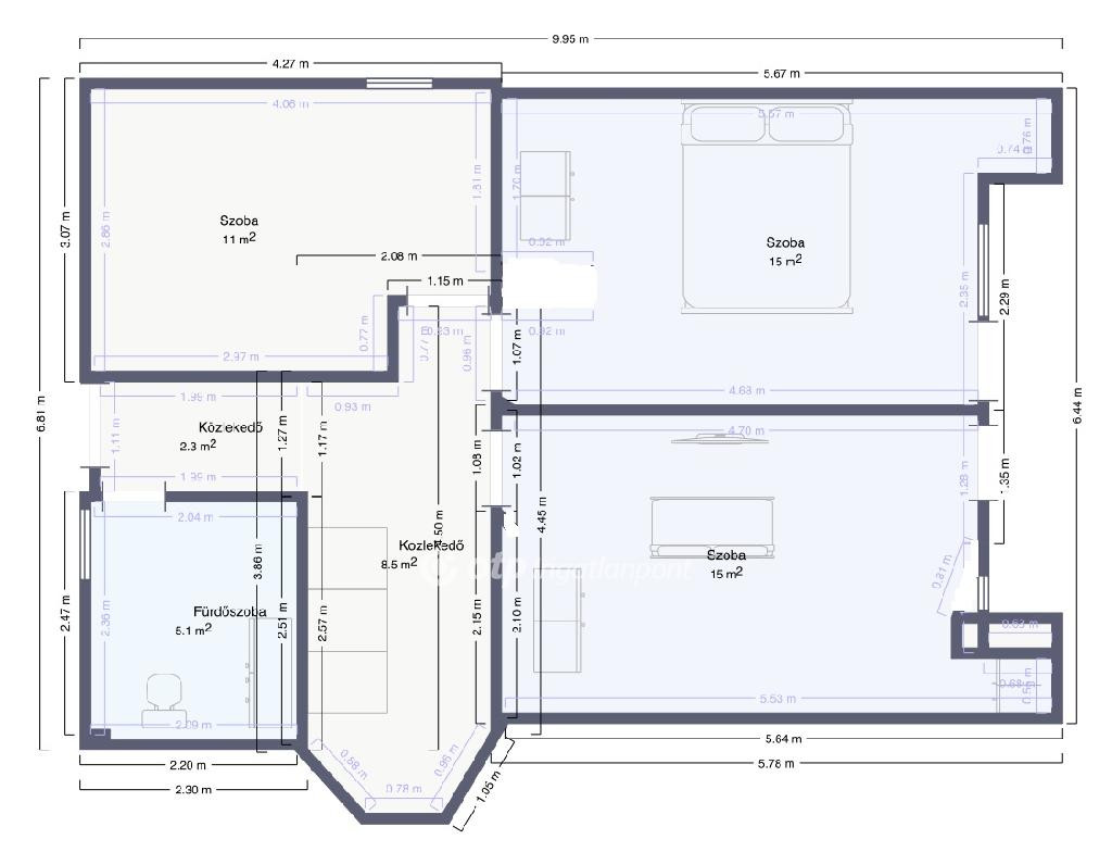
Emelet
Két, egyenként 15 m2-es balatoni panorámás hálószoba erkélykapcsolattal
Egy 11 m2-es szoba
5,1 m2-es fürdőszoba zuhanyzóval
10 m2-es közlekedő
Hátsó kijárat a szintkülönbséges telekre, ahol egy tágas, 30 m2-es árnyékos erkély biztosít kellemes pihenőteret
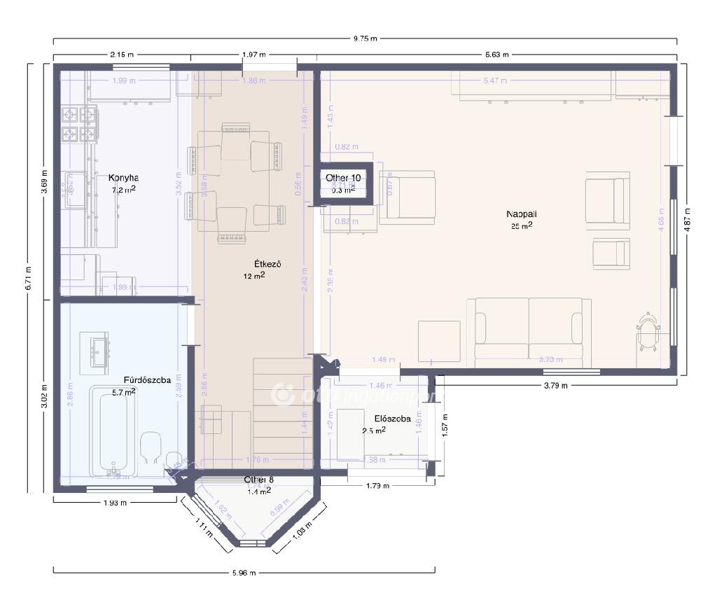
Földszint
25 m2-es, világos nappali panorámás erkéllyel
7,2 m2-es konyha
12 m2-es étkező
5,7 m2-es fürdőszoba káddal és WC-vel
Előszoba a főbejáratnál
Szuterén
3,3 m2-es fürdőszoba zuhanyzóval és WC-vel
3 m2-es mosókonyha, ahol elektromos bojler került telepítésre
6 m2-es konyha
Két nagyméretű, egyenként 25 m2-es helyiség, amelyek vendégszobaként, hobbitérként, dolgozószobaként vagy akár külön lakrészként is kialakíthatók
Kert és külső adottságok
A telek felső részén, a ház mögött egy nagy, panorámás terasz került kialakításra, amely tökéletes helyszíne lehet grill partiknak, baráti összejöveteleknek vagy családi eseményeknek, miközben a balatoni látvány teszi igazán különlegessé az élményt.
A kert öntözőrendszerrel ellátott, így fenntartása kényelmesen és hatékonyan megoldható. A ház előtt egy fa szerkezetű, fedett autóbeálló biztosít védett parkolási lehetőséget.
Lokáció - minden elérhető közelségben
A kikötő és a strand mindössze 500 méterre található.
A Tihanyi rév 1 km-re érhető el.
A tihanyi piac 1 km távolságra van.
A történelmi jelentőségű Tihanyi Apátság 2,6 km-re található.
Ez az elhelyezkedés nemcsak a mindennapi kényelmet biztosítja, hanem hosszú távon is stabil értéket képvisel Tihany egyik legkeresettebb részén.
Kinek ideális?
Ideális választás lehet nagyobb család számára, többgenerációs együttélésre, de a szuterén adottságai miatt vendégházként vagy apartman jellegű hasznosításra is kiváló lehetőséget kínál. A panoráma, a tágas terek és a frekventált, mégis nyugodt környezet együttesen teszik igazán értékessé ezt az ingatlant.
Az ingatlan az OTP Ingatlanpont irodai kínálatában érhető el, az OTP bankcsoport szakmai és pénzügyi hátterével, amely biztonságos és átlátható ügyintézést biztosít az érdeklődők számára.
Amennyiben egy kivételes adottságú, balatoni panorámás tihanyi ingatlant keres, kérem, vegye fel velem a kapcsolatot bizalommal a megtekintés egyeztetése érdekében.
Tihany Cserhegy városrészében kínálunk megvételre egy 669 m2-es, szintkülönbséges telken elhelyezkedő, háromszintes, 190 m2-es családi házat. Az ingatlan egyik legnagyobb értéke a balatoni panoráma, a kiváló lokáció és a sokoldalú hasznosíthatóság.
Az épület 35 cm-es kerámia tégla falazattal épült, fa nyílászárókkal, amelyekhez esztétikus és praktikus fa zsalugáterek tartoznak. A fűtést cirkó gázkazán (Junkers) biztosítja radiátoros hőleadással az egész házban, míg a földszinten és a szuterén szinten elhelyezett cserépkályhák meghitt hangulatot és kiegészítő meleget adnak a hűvösebb időszakban.
A burkolatok kialakítása praktikus és időtálló:
-a földszinten hidegburkolat található,
-az emeleti szobák laminált padlóval burkoltak,
-a szuterén szinten szintén hidegburkolat került kialakításra.
Főbb paraméterek
-Telek: 669 m2
-Lakótér: 190 m2
-Falazat: 35 cm kerámia tégla
-Fűtés: cirkó gáz (Junkers kazán), radiátoros rendszer + cserépkályha
-Nyílászárók: fa szerkezetűek, fa zsalugáterrel
Emelet
Két, egyenként 15 m2-es balatoni panorámás hálószoba erkélykapcsolattal
Egy 11 m2-es szoba
5,1 m2-es fürdőszoba zuhanyzóval
10 m2-es közlekedő
Hátsó kijárat a szintkülönbséges telekre, ahol egy tágas, 30 m2-es árnyékos erkély biztosít kellemes pihenőteret
Földszint
25 m2-es, világos nappali panorámás erkéllyel
7,2 m2-es konyha
12 m2-es étkező
5,7 m2-es fürdőszoba káddal és WC-vel
Előszoba a főbejáratnál
Szuterén
3,3 m2-es fürdőszoba zuhanyzóval és WC-vel
3 m2-es mosókonyha, ahol elektromos bojler került telepítésre
6 m2-es konyha
Két nagyméretű, egyenként 25 m2-es helyiség, amelyek vendégszobaként, hobbitérként, dolgozószobaként vagy akár külön lakrészként is kialakíthatók
Kert és külső adottságok
A telek felső részén, a ház mögött egy nagy, panorámás terasz került kialakításra, amely tökéletes helyszíne lehet grill partiknak, baráti összejöveteleknek vagy családi eseményeknek, miközben a balatoni látvány teszi igazán különlegessé az élményt.
A kert öntözőrendszerrel ellátott, így fenntartása kényelmesen és hatékonyan megoldható. A ház előtt egy fa szerkezetű, fedett autóbeálló biztosít védett parkolási lehetőséget.
Lokáció - minden elérhető közelségben
A kikötő és a strand mindössze 500 méterre található.
A Tihanyi rév 1 km-re érhető el.
A tihanyi piac 1 km távolságra van.
A történelmi jelentőségű Tihanyi Apátság 2,6 km-re található.
Ez az elhelyezkedés nemcsak a mindennapi kényelmet biztosítja, hanem hosszú távon is stabil értéket képvisel Tihany egyik legkeresettebb részén.
Kinek ideális?
Ideális választás lehet nagyobb család számára, többgenerációs együttélésre, de a szuterén adottságai miatt vendégházként vagy apartman jellegű hasznosításra is kiváló lehetőséget kínál. A panoráma, a tágas terek és a frekventált, mégis nyugodt környezet együttesen teszik igazán értékessé ezt az ingatlant.
Az ingatlan az OTP Ingatlanpont irodai kínálatában érhető el, az OTP bankcsoport szakmai és pénzügyi hátterével, amely biztonságos és átlátható ügyintézést biztosít az érdeklődők számára.
Amennyiben egy kivételes adottságú, balatoni panorámás tihanyi ingatlant keres, kérem, vegye fel velem a kapcsolatot bizalommal a megtekintés egyeztetése érdekében.