Eladó Ház- házrész
Hirdetéskód: 9237104
Városi Ingatlaniroda
Felújításhoz személyi kölcsönt keres? Kalkuláljon itt! →
Ez a hirdetés megfelelhet a FIX 3%-os programnak.
Tudj meg többet a részletekről itt.
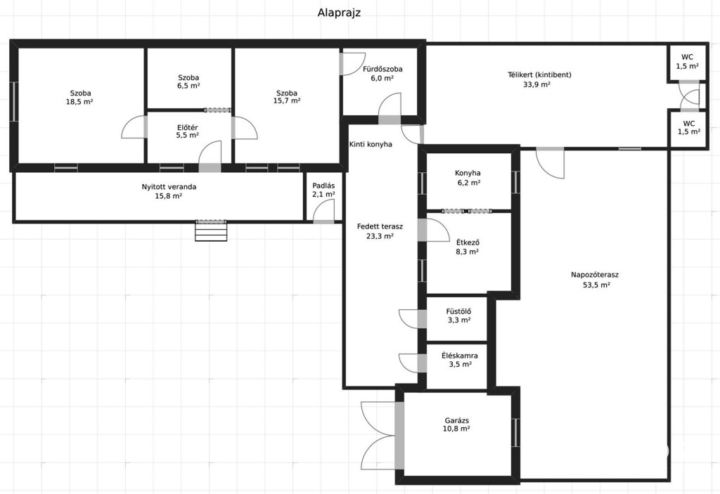
67.00 m2
ALAPTERÜLET2
SZOBASZÁMnincs megadva
ÉPÍTÉSGáz (konvektor)
FŰTÉS- CSOK igénybe vehető nem
- Belső szintek 1
- Tetőtér beépíthető nem
- Építés éve 1886
- Fűtés Gáz (konvektor)
- Klíma nem
- Szigetelt nem
A+++
A++
A+
A
B
C
D
E
F
G
H
I
Az ingatlan leírása
A Mátra lábánál, a Bükk és a Mátra találkozásánál, Terpes falu szélén kínálunk megvételre egy különleges hangulatú, 150 éves ámbitusos palóc házat, amely tökéletes választás nyaralónak, második otthonnak. A környék valódi vidéki idillt kínál: csend, természet, tiszta levegő és barátságos közösség várja az ide érkezőket.
Az ingatlan elhelyezkedése kiváló: Bükkszék gyógyfürdője 3 km-re, Sirok vára és kirándulóútjai 6 km-re, Eger történelmi belvárosa pedig mindössze 25 km-re található. A környék egész évben bővelkedik programlehetőségekben, legyen szó túrázásról, fürdőzésről, borozásról vagy csendes elvonulásról.
A ház 2023-ban teljes belső felújításon esett át, beleértve a villamos hálózatot is. A felújítás során kiemelt figyelmet kapott az eredeti palóc jelleg megőrzése, miközben a modern komfort is teljes mértékben biztosított. A 34 m²-es közösségi tér 2025-ben, új építésként készült el, így a ház egyszerre kínál autentikus hangulatot és korszerű életteret.
Az ingatlan jelenleg vendégházként működik, de kialakítása miatt kiválóan alkalmas családi nyaralónak is: ideális hely a hétvégi kikapcsolódáshoz, hosszabb nyári tartózkodáshoz vagy akár többgenerációs pihenésekhez. Ha egy igazán karakteres, értékálló és szerethető vidéki otthont keres a Mátra közelében, ezt az ingatlant érdemes személyesen is megtekinteni.
Ne késlekedjen, keressen elérhetőségeimen még ma, nehogy más szeressen bele előbb!
Az ingatlan elhelyezkedése kiváló: Bükkszék gyógyfürdője 3 km-re, Sirok vára és kirándulóútjai 6 km-re, Eger történelmi belvárosa pedig mindössze 25 km-re található. A környék egész évben bővelkedik programlehetőségekben, legyen szó túrázásról, fürdőzésről, borozásról vagy csendes elvonulásról.
A ház 2023-ban teljes belső felújításon esett át, beleértve a villamos hálózatot is. A felújítás során kiemelt figyelmet kapott az eredeti palóc jelleg megőrzése, miközben a modern komfort is teljes mértékben biztosított. A 34 m²-es közösségi tér 2025-ben, új építésként készült el, így a ház egyszerre kínál autentikus hangulatot és korszerű életteret.
Az ingatlan jelenleg vendégházként működik, de kialakítása miatt kiválóan alkalmas családi nyaralónak is: ideális hely a hétvégi kikapcsolódáshoz, hosszabb nyári tartózkodáshoz vagy akár többgenerációs pihenésekhez. Ha egy igazán karakteres, értékálló és szerethető vidéki otthont keres a Mátra közelében, ezt az ingatlant érdemes személyesen is megtekinteni.
Ne késlekedjen, keressen elérhetőségeimen még ma, nehogy más szeressen bele előbb!