Eladó Ház- házrész
Hirdetéskód: 9257463
Miskolc - OTP Ingatlanpont Iroda
85.00 m2
ALAPTERÜLET4
SZOBASZÁMnincs megadva
ÉPÍTÉSElektromos
FŰTÉS- CSOK igénybe vehető nem
- Tetőtér beépíthető nem
- Építés éve 1980
- Fűtés Elektromos
- Klíma nem
- Szigetelt nem
A+++
A++
A+
A
B
C
D
E
F
G
H
I
Az ingatlan leírása
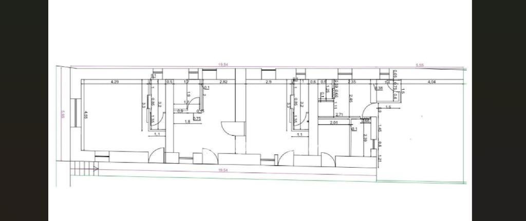
Telkibányán eladó többfunkciós ház ? nyugalom, tér és üzleti potenciál egy helyen
Telkibánya egyik legcsendesebb, zöldövezeti részén kínálunk megvételre egy különálló egységekre tagolt apartmanházat, amely ideális választás mindazok számára, akik biztos alapokon nyugvó vidéki befektetést vagy egy természetközeli életformát keresnek.
Az ingatlan három, egymástól független bejárattal rendelkező apartmanból áll, így kiválóan alkalmas vendégek elszállásolására, apartmanházként történő működtetésre, de akár családtagok elkülönített elhelyezésére is. A belső terek tágasak, világosak, a természetes anyaghasználat pedig harmonikusan illeszkedik a környezethez.
A házhoz tartozó közel 2700 m?-es telek ritka adottság a környéken: bőven biztosít teret pihenőkert, közösségi terek, további építkezés vagy fejlesztés kialakítására. A fedett terasz kellemes találkozópont lehet a vendégek számára, ahol az együtt töltött idő valódi élménnyé válik.
Az ingatlan műszaki állapota stabil és megbízható: kő falazata, szigetelt szerkezete, megújult tetőzete és korszerű közműhálózata hosszú távon is biztonságot nyújt. A melegvíz-ellátás modern, távolról is vezérelhető rendszerrel megoldott, a fűtés pedig az új tulajdonos igényei szerint rugalmasan kialakítható.
Keressen bizalommal nézzük meg együtt az ingatlant.
Referenciaszám: M321210
Telkibánya egyik legcsendesebb, zöldövezeti részén kínálunk megvételre egy különálló egységekre tagolt apartmanházat, amely ideális választás mindazok számára, akik biztos alapokon nyugvó vidéki befektetést vagy egy természetközeli életformát keresnek.
Az ingatlan három, egymástól független bejárattal rendelkező apartmanból áll, így kiválóan alkalmas vendégek elszállásolására, apartmanházként történő működtetésre, de akár családtagok elkülönített elhelyezésére is. A belső terek tágasak, világosak, a természetes anyaghasználat pedig harmonikusan illeszkedik a környezethez.
A házhoz tartozó közel 2700 m?-es telek ritka adottság a környéken: bőven biztosít teret pihenőkert, közösségi terek, további építkezés vagy fejlesztés kialakítására. A fedett terasz kellemes találkozópont lehet a vendégek számára, ahol az együtt töltött idő valódi élménnyé válik.
Az ingatlan műszaki állapota stabil és megbízható: kő falazata, szigetelt szerkezete, megújult tetőzete és korszerű közműhálózata hosszú távon is biztonságot nyújt. A melegvíz-ellátás modern, távolról is vezérelhető rendszerrel megoldott, a fűtés pedig az új tulajdonos igényei szerint rugalmasan kialakítható.
Keressen bizalommal nézzük meg együtt az ingatlant.
Referenciaszám: M321210