Eladó Ház- házrész
Hirdetéskód: 9281401
Bucalics Roxána
Felújításhoz személyi kölcsönt keres? Kalkuláljon itt! →289.00 m2
ALAPTERÜLET7
SZOBASZÁMnincs megadva
ÉPÍTÉSnincs megadva
FŰTÉS- CSOK igénybe vehető nem
- Tetőtér beépíthető nem
- Építés éve 2002
- Klíma nem
- Szigetelt nem
A+++
A++
A+
A
B
C
D
E
F
G
H
I
Az ingatlan leírása
Hagyományos stílusú, tornácos családi ház Telki Ófalu részén
Telki egyik legkeresettebb, Ófalu részén kínálunk megvételre egy 2002-ben épült, hagyományos falusi léptékű és karakterű családi házat, amely harmonikusan illeszkedik a környezetébe.
Az 914 m²-es, két utcai bejárattal rendelkező telek kiváló adottságokkal bír, a szépen gondozott kert és a közvetlen kertkapcsolatos terasz nyugodt, élhető otthont biztosít.
Az épület főbb jellemzői:
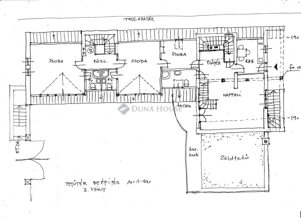
Nettó alapterület: 289 m²
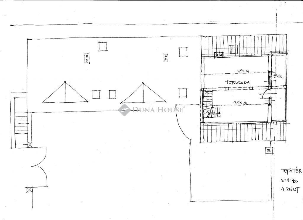
Szintek: pince földszint beépített tetőtér, szinteltolásos kialakítással
Tornácos ház, fehérre festett vakolattal
Utcai homlokzaton hagyományos vakolatdíszítés
Fa nyílászárók (ajtók, ablakok)
A garázs teteje növényekkel telepített zöldtető
Szerkezeti kialakítás:
Pince teherhordó falazata zsalu kőből
Földszinti külső falak 44 cm-es Porotherm blokkból
Belső teherhordó falak kisméretű téglából
Földszinti födém: monolit vasbeton lemez
Tornác és födém között hőhídmegszakítás
Hagyományos üres torokgerendás fedélszék,
45°-os hajlásszögű, hódfarkú cserépfedéssel
Gépészet, komfort:
Gázkazános fűtés
Radiátoros és részben padlófűtés
Két hangulatos kályha a házban
Ez az ingatlan ideális választás azok számára, akik minőségi anyaghasználattal épült, időtálló, hagyományos stílusú otthont keresnek, csendes, falusias környezetben, mégis Budapest közvetlen közelében. Ajánlom Nagycsaládosoknak, összeköltözőknek egyaránt!
Kérem hívjon bizalommal a több információért!
Telki egyik legkeresettebb, Ófalu részén kínálunk megvételre egy 2002-ben épült, hagyományos falusi léptékű és karakterű családi házat, amely harmonikusan illeszkedik a környezetébe.
Az 914 m²-es, két utcai bejárattal rendelkező telek kiváló adottságokkal bír, a szépen gondozott kert és a közvetlen kertkapcsolatos terasz nyugodt, élhető otthont biztosít.
Az épület főbb jellemzői:
Nettó alapterület: 289 m²
Szintek: pince földszint beépített tetőtér, szinteltolásos kialakítással
Tornácos ház, fehérre festett vakolattal
Utcai homlokzaton hagyományos vakolatdíszítés
Fa nyílászárók (ajtók, ablakok)
A garázs teteje növényekkel telepített zöldtető
Szerkezeti kialakítás:
Pince teherhordó falazata zsalu kőből
Földszinti külső falak 44 cm-es Porotherm blokkból
Belső teherhordó falak kisméretű téglából
Földszinti födém: monolit vasbeton lemez
Tornác és födém között hőhídmegszakítás
Hagyományos üres torokgerendás fedélszék,
45°-os hajlásszögű, hódfarkú cserépfedéssel
Gépészet, komfort:
Gázkazános fűtés
Radiátoros és részben padlófűtés
Két hangulatos kályha a házban
Ez az ingatlan ideális választás azok számára, akik minőségi anyaghasználattal épült, időtálló, hagyományos stílusú otthont keresnek, csendes, falusias környezetben, mégis Budapest közvetlen közelében. Ajánlom Nagycsaládosoknak, összeköltözőknek egyaránt!
Kérem hívjon bizalommal a több információért!