Eladó Ház- házrész
Hirdetéskód: 8135934
Bp. XXI. Akácfa utcai franchise iroda
Ez a hirdetés megfelelhet a FIX 3%-os programnak.
Tudj meg többet a részletekről itt.
60 m2
ALAPTERÜLET2
SZOBASZÁMnincs megadva
ÉPÍTÉSElektromos
FŰTÉS- CSOK igénybe vehető nem
- Belső szintek 2
- Tetőtér beépíthető nem
- Építés éve 2019
- Fűtés Elektromos
- Klíma nem
- Szigetelt nem
A+++
A++
A+
A
B
C
D
E
F
G
H
I
Az ingatlan leírása
Referens: R.J.21/90948
FIGYELEM !!!
Az eredeti árhoz képest,MÉRSÉKELTEBB áron eladó !!!
FIGYELEM ! Az ingatlan bővítés alatt áll !!!.....
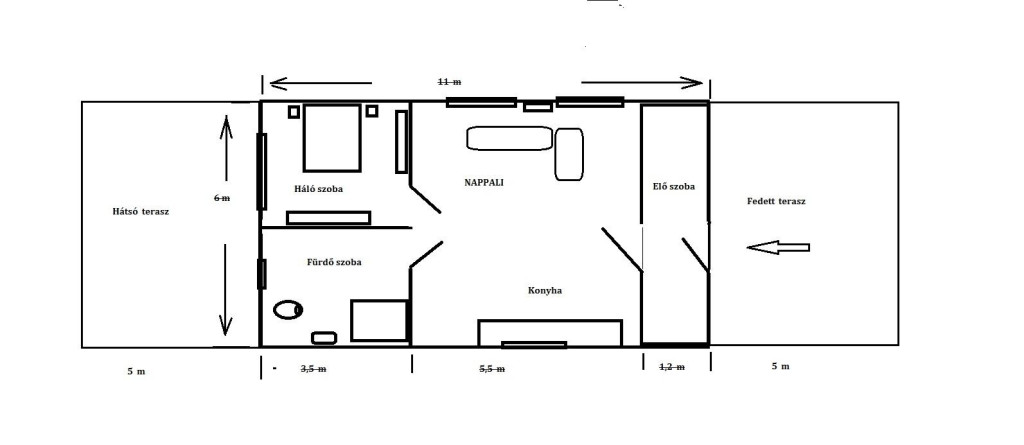
Tatabányán a "Turul" hegyoldal városrészben eladó,
1440 nm telken, egy 60 nm alapterületű,könnyűszerkezetes,
előszoba,konyha-étkező-nappali(33nm),hálószoba,fürdőszoba,
a ház hátsó részén 24 nm terasszal,alatta tégla falazatú,
épülőben lévő,24 nm-es,szoba-konyha,fürdőszobás,külön bejáratú garzon !
Az ingatlan --csatornát kivéve!--,összközműves !
Fűtés : inverteres hűtő/fűtő (GREE) klímával,
Meleg-víz : villanybojlerrel .
A teraszról szép PANORÁMA nyílik a városra,a bejárat
előtti fedett teraszról,pedig rálátás nyílik a "MÁSZÓ szikla"(ás) hegyoldalra !
A telek/kert szőlővel és gyümölcsfákkal telepített,mely hosszan lenyúlik a völgy felé !
Csend és nyugalom,ide nem hallatszik fel a civilizáció zaja !!!
Az ár -szolidan!-ALKUKÉPES !
Ha felkeltettem érdeklődését ,vagy bármilyen kérdése merülne fel az ingatlannal kapcsolatban,
KÉREM HÍVJON BIZALOMMAL
Időpont egyeztetés után,SZEMÉLYESEN is megtekinthető.
FIGYELEM !!!
Az eredeti árhoz képest,MÉRSÉKELTEBB áron eladó !!!
FIGYELEM ! Az ingatlan bővítés alatt áll !!!.....
Tatabányán a "Turul" hegyoldal városrészben eladó,
1440 nm telken, egy 60 nm alapterületű,könnyűszerkezetes,
előszoba,konyha-étkező-nappali(33nm),hálószoba,fürdőszoba,
a ház hátsó részén 24 nm terasszal,alatta tégla falazatú,
épülőben lévő,24 nm-es,szoba-konyha,fürdőszobás,külön bejáratú garzon !
Az ingatlan --csatornát kivéve!--,összközműves !
Fűtés : inverteres hűtő/fűtő (GREE) klímával,
Meleg-víz : villanybojlerrel .
A teraszról szép PANORÁMA nyílik a városra,a bejárat
előtti fedett teraszról,pedig rálátás nyílik a "MÁSZÓ szikla"(ás) hegyoldalra !
A telek/kert szőlővel és gyümölcsfákkal telepített,mely hosszan lenyúlik a völgy felé !
Csend és nyugalom,ide nem hallatszik fel a civilizáció zaja !!!
Az ár -szolidan!-ALKUKÉPES !
Ha felkeltettem érdeklődését ,vagy bármilyen kérdése merülne fel az ingatlannal kapcsolatban,
KÉREM HÍVJON BIZALOMMAL
Időpont egyeztetés után,SZEMÉLYESEN is megtekinthető.