Eladó Ház- házrész
Hirdetéskód: 9193831
Openhouse Tatabánya Ingatlaniroda
Ez a hirdetés megfelelhet a FIX 3%-os programnak.
Tudj meg többet a részletekről itt.
48 m2
ALAPTERÜLET2
SZOBASZÁMnincs megadva
ÉPÍTÉSnincs megadva
FŰTÉS- CSOK igénybe vehető nem
- Tetőtér beépíthető nem
- Építés éve 2025
- Klíma nem
- Szigetelt nem
A+++
A++
A+
A
B
C
D
E
F
G
H
I
Az ingatlan leírása
Az Openhouse Tatabánya Ingatlaniroda kínálatában eladó a #176772 hivatkozási számú tatabányai családi ház.
Újépítésű kertkapcsolatos lakások eladók Tatabányán, a Kossuth kertalja utcában!
Eladásra kínálunk egy új építésű projekt keretében két modern kialakítású lakóingatlant, amelyek a legkorszerűbb építészeti és gépészeti megoldásokkal készülnek. A projekt kiváló választás azoknak, akik energiatakarékos, kényelmes és értékálló otthonra vágynak.
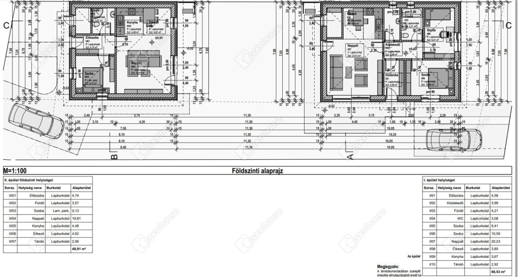
I. számú lakás – 66,53 m² | 79 millió Ft Kossuth kertalja utca felől megközelíthető
2 hálószoba
Nappali – étkező – konyha egy légtérben (több mint 27 m²)
Fürdőszoba + külön WC
Előszoba és közlekedő
Tároló helyiség (2,9 m²)
Saját kert – ideális pihenéshez vagy családi programokhoz
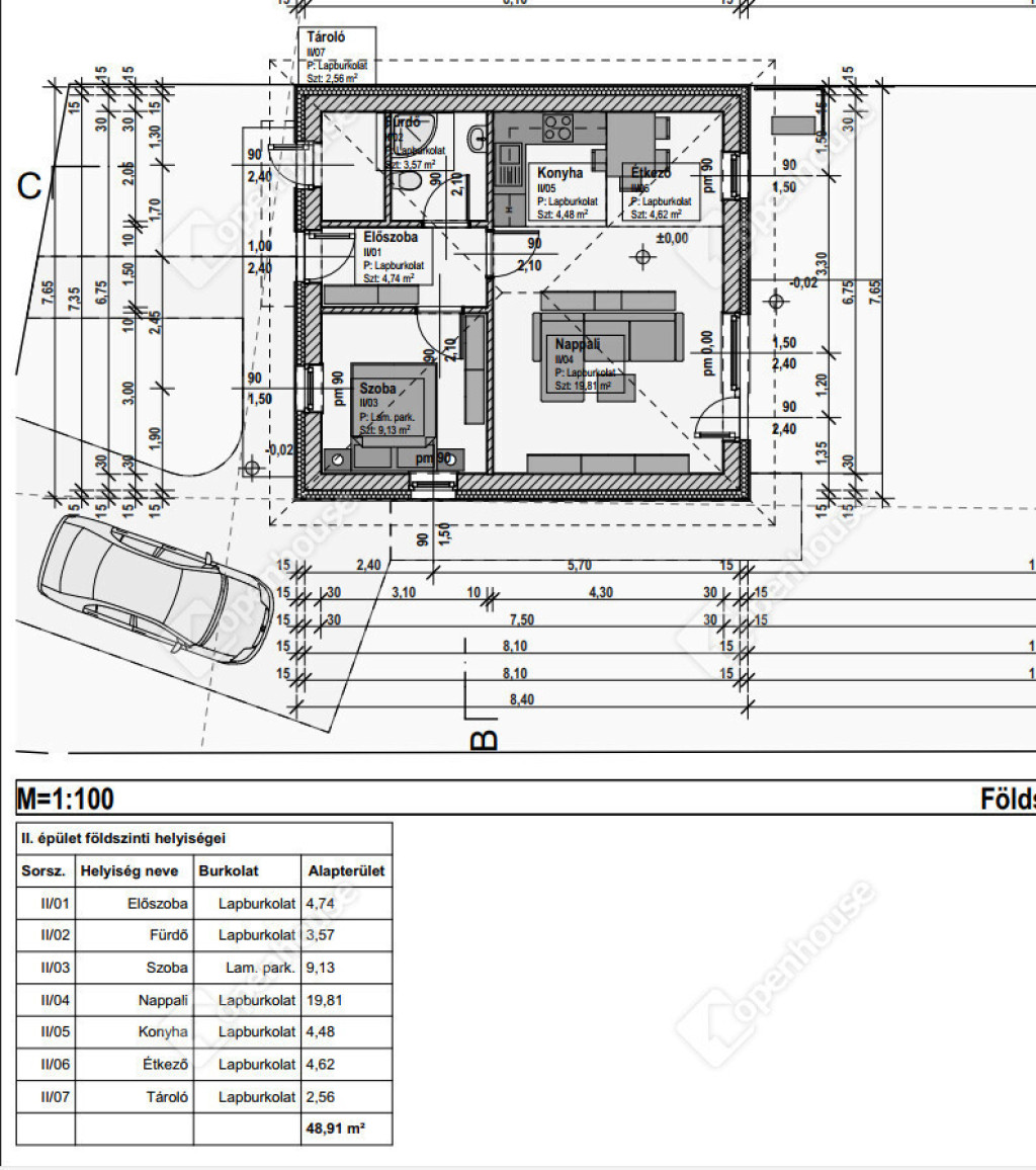
II. számú lakás – 48,91 m² | 59 millió Ft Fűzfa utca felől megközelíthető
1 hálószoba
Tágas nappali – étkező – konyha egy légtérben
Fürdőszoba
Előszoba
Tároló helyiség
Saját kert, ahol élvezheted a szabadidőt
Műszaki tartalom:
Szerkezet: monolit beton sávalap, vasalt aljzatbeton, kerámia tégla falazat, fa tetőszerkezet, kerámia cserép fedés
Hőszigetelés: EPS és kőzetgyapot hőszigetelés, gipszkarton álmennyezet
Belső felületek: vakolt falak, glettelés, diszperziós festés, nemesvakolat
Fűtés és melegvíz: levegő-víz hőszivattyú, helyiségenként szabályozható padlófűtés, HMV tároló
Miért érdemes választani?
Újépítésű, modern otthon
Energiahatékony gépészet
Praktikus elosztás és tároló helyiség
Kiváló lokáció Tatabányán
Szerződési feltételek:
- a fizetési ütem személyes átbeszélés alapján történik
Várható átadás:
lakás: 2025. decemberig
I. sz. lakás 2026.áprilisig
Érdeklődni: Szlezák-Forgó Barbara –
Ha felkeltette érdeklődését ez az eladó tatabányai családi ház, vagy bármely más családi ház és bővebb információt szeretne, keressen bizalommal.Hivatkozási szám: #176772
Az Openhouse Tatabánya Ingatlaniroda tagjaként várom Önt az országos hálózatunk teljes kínálatával.
A családi ház vásárláshoz hitelt igényelne? Ingyenes hitelközvetítéssel segít Önnek bankfüggetlen hitelszakértőnk.
További szolgáltatásainkkal (pl. értékbecslés, energetikai tanúsítvány, jogi háttér) is segítjük Önt a vásárlásban.
Az otthon érték. Az ingatlan üzlet.
59000000 Ft
Újépítésű kertkapcsolatos lakások eladók Tatabányán, a Kossuth kertalja utcában!
Eladásra kínálunk egy új építésű projekt keretében két modern kialakítású lakóingatlant, amelyek a legkorszerűbb építészeti és gépészeti megoldásokkal készülnek. A projekt kiváló választás azoknak, akik energiatakarékos, kényelmes és értékálló otthonra vágynak.
I. számú lakás – 66,53 m² | 79 millió Ft Kossuth kertalja utca felől megközelíthető
2 hálószoba
Nappali – étkező – konyha egy légtérben (több mint 27 m²)
Fürdőszoba + külön WC
Előszoba és közlekedő
Tároló helyiség (2,9 m²)
Saját kert – ideális pihenéshez vagy családi programokhoz
II. számú lakás – 48,91 m² | 59 millió Ft Fűzfa utca felől megközelíthető
1 hálószoba
Tágas nappali – étkező – konyha egy légtérben
Fürdőszoba
Előszoba
Tároló helyiség
Saját kert, ahol élvezheted a szabadidőt
Műszaki tartalom:
Szerkezet: monolit beton sávalap, vasalt aljzatbeton, kerámia tégla falazat, fa tetőszerkezet, kerámia cserép fedés
Hőszigetelés: EPS és kőzetgyapot hőszigetelés, gipszkarton álmennyezet
Belső felületek: vakolt falak, glettelés, diszperziós festés, nemesvakolat
Fűtés és melegvíz: levegő-víz hőszivattyú, helyiségenként szabályozható padlófűtés, HMV tároló
Miért érdemes választani?
Újépítésű, modern otthon
Energiahatékony gépészet
Praktikus elosztás és tároló helyiség
Kiváló lokáció Tatabányán
Szerződési feltételek:
- a fizetési ütem személyes átbeszélés alapján történik
Várható átadás:
lakás: 2025. decemberig
I. sz. lakás 2026.áprilisig
Érdeklődni: Szlezák-Forgó Barbara –
Ha felkeltette érdeklődését ez az eladó tatabányai családi ház, vagy bármely más családi ház és bővebb információt szeretne, keressen bizalommal.Hivatkozási szám: #176772
Az Openhouse Tatabánya Ingatlaniroda tagjaként várom Önt az országos hálózatunk teljes kínálatával.
A családi ház vásárláshoz hitelt igényelne? Ingyenes hitelközvetítéssel segít Önnek bankfüggetlen hitelszakértőnk.
További szolgáltatásainkkal (pl. értékbecslés, energetikai tanúsítvány, jogi háttér) is segítjük Önt a vásárlásban.
Az otthon érték. Az ingatlan üzlet.
59000000 Ft