Eladó Ház- házrész
Hirdetéskód: 9257116

-

Felújításhoz személyi kölcsönt keres? Kalkuláljon itt! →
FIX 3% Program

Ez a hirdetés megfelelhet a FIX 3%-os programnak.
Tudj meg többet a részletekről itt.

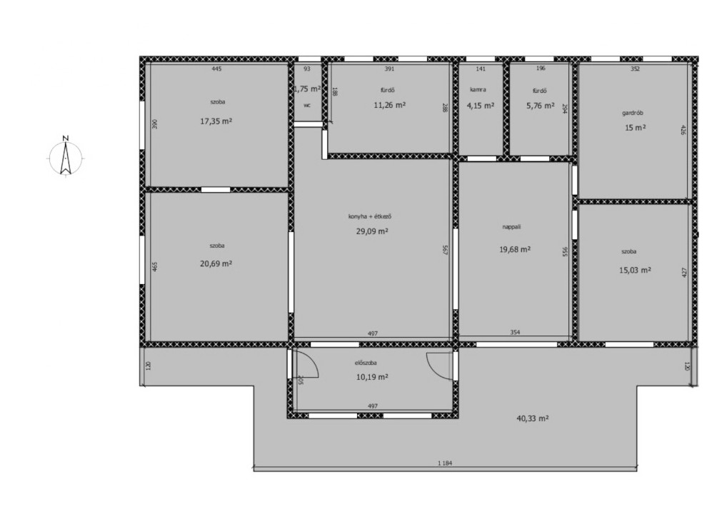
170.00 m2
ALAPTERÜLET
4
SZOBASZÁM
Tégla
ÉPÍTÉS
Gáz (cirkó)
FŰTÉS
  • CSOK igénybe vehető igen
  • Tájolás Délnyugat
  • Ingatlan komfort Duplakomfortos
  • Parkolási lehetőség Önálló garázs
  • Fűtés Gáz (cirkó)
  • Építőanyag Tégla
  • Klíma igen
  • Szigetelt igen
Energetikai besorolás: Nincs meghatározva
A+++
A++
A+
A
B
C
D
E
F
G
H
I

Az MBH Bank személyi kölcsön ajánlata

Fizetett hirdetés
1 millió Ft
6 évre
20 585 Ft/hó
THM: 14.5%
Részletek →
2 millió Ft
6 évre
41 169 Ft/hó
THM: 14.5%
Részletek →
3 millió Ft
6 évre
61 754 Ft/hó
THM: 14.5%
Részletek →

A tájékoztatás nem teljes körű és nem minősül ajánlattételnek.

Az ingatlan leírása

Tass csendes, kertvárosi övezetében eladó egy kiváló adottságú, 170 m²-es, dupla komfortos családi ház, amely egy 2140 m²-es, tágas telken helyezkedik el – ideális választás azoknak, akik nyugalmat, teret és letisztult minőséget keresnek. Az ingatlan összközműves.


Az ingatlan 2019-ben teljeskörű átépítésen és felújításon esett át, így modern műszaki tartalommal és korszerű megoldásokkal várja új tulajdonosát. A ház négy hálószobával, valamint egy tágas, étkező–konyhával, nappalival és kényelmes előszobával rendelkezik, így akár nagyobb család számára is tökéletes elrendezést kínál. Igénytől függően akár 2 generációssá is átalakítható egy egyszerű megoldással.


Az energiahatékonyságról 12 cm-es grafitos homlokzati szigetelés, valamint a mennyezetfödémen kialakított 20×20 cm vastagságú kőzetgyapot és üveggyapot szigetelés gondoskodik. A háromrétegű műanyag nyílászárók redőnnyel és szúnyoghálóval felszereltek.


A fűtést megbízható Bosch kondenzációs kazán biztosítja, melyet 2 darab inverteres klíma egészít ki, így az otthon egész évben kellemes hőmérsékletű. A melegvíz ellátását egy 120 literes indirekt tároló teszi mindenkor tökéletessé. A teljes lakótér padlófűtéssel rendelkezik, a komfortot a radiátorok teszik teljessé.


Az ingatlan dupla komfortos, a fürdőszobák káddal és zuhanyzóval is rendelkeznek, van külön WC is, riasztórendszerrel felszerelt, valamint fúrt kúttal is rendelkezik, amely a kert gondozását költséghatékonyan segíti. A házhoz tartozik egy 26 m²-es dupla garázs, továbbá egy 75 m²-es tároló, amely kiválóan alkalmas műhelynek, raktárnak vagy akár vállalkozási célra is.


A pihenés és kikapcsolódás tökéletes helyszíne a 40 m²-es terasz, amelynek egy része fedett, így bármely évszakban élvezhető.


Ez az ingatlan ideális választás mindazok számára, akik egy tágas, modern, kiváló állapotú otthont keresnek nagy telekkel, nyugodt kertvárosi környezetben, Tass közkedvelt részén.


Tekintse meg irodánk teljes kínálatát! Ingatlan-Sziget Ráckeve


AZ INGATLAN AZ ÖSSZES TÁMOGATOTT HITELKONSTRUKCIÓRA ALKALMAS!
Teljeskörű, bankfüggetlen hitelügyintézéssel állunk rendelkezésére.
Szakértőnk: Belák Ilona Kinga

Térkép

A hirdető elérhetősége

Ingatlan Sziget Ingatlan és Hitelközvetítő Iroda

+36 20 227