Eladó Ház- házrész
Hirdetéskód: 9124327
Miskolc - OTP Ingatlanpont Iroda
Ez a hirdetés megfelelhet a FIX 3%-os programnak.
Tudj meg többet a részletekről itt.
170 m2
ALAPTERÜLET5
SZOBASZÁMnincs megadva
ÉPÍTÉSnincs megadva
FŰTÉS- CSOK igénybe vehető nem
- Tetőtér beépíthető nem
- Építés éve 1985
- Klíma nem
- Szigetelt nem
A+++
A++
A+
A
B
C
D
E
F
G
H
I
Az ingatlan leírása
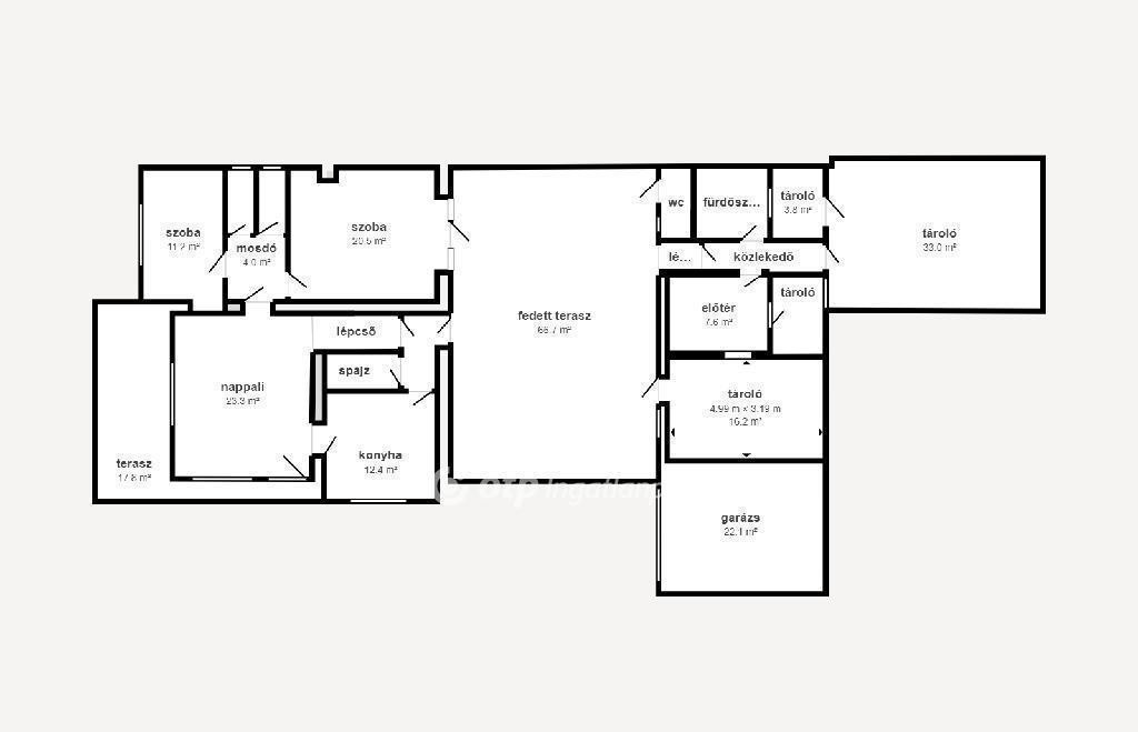
Eladó Tarcal központi részén egy két szintes, 6 szobás, részben felújítandó, blokk falazatú családi ház.
A főépületet a melléképülettel egy közel 70 nm-es fedett terasz köti össze.
Az épület együttes 1649 nm-es telken helyezkedik el, amiből kb. 800 nm gyümölcsfákkal és tőkés szőlővel ültetett kert, az udvar elülső része térkövezett.
Az épületegyüttes jellemzői:
- szerkezete blokk,
- északi falazata kívülről kőzetgyapottal szigetelt és Lindab lemezzel burkolt,
- födémszerkezete beton és fa,
- tetőszerkezete fa, héjazata pala és zsindely - beépíthető padlásterek,
- teljesen alápincézett a fő épület,
- a két épületet összekötő tetőszerkezet látszó fagerendás, zsindellyel fedett,
- mindkét szinten L alakú terasz, és az emeleten belső erkély,
- többségében hagyományos fa nyílászárókkal rendelkezik
- padlózata a szobákban, nappaliban és a lépcsőházban is parkettával, a többi helyiség járólappal burkolt,
- beépített, gépesített konyha márvány munkalappal (fritöz, mosogatógép, hűtőszekrény, mikrohullámú sütő, villanysütő, gáz főzőlap)
- vízmelegítésről a fűrdőszobában és zuhanyzóban villanybojler, a konyhában 30L-es átfolyós vízmelegítő gondoskodik,
- összközműves,
- a ház dupla komfortos,
- fűtéséről gázkazán gondoskodik, vagy vegyestüzelésű kazán beépítésére is van lehetőség, hőleadók földszinten, emeleten radiátorok,
- zárt garázs (a melléképülettel egybeépítve).
Amennyiben az ingatlan felkeltette érdeklődését, hívjon bizalommal és tekintsük meg együtt. OTP banki hátterünkkel ügyfeleink rendelkezésére állunk finanszírozási kérdésekben is. Hívásában, hivatkozzon az M297253 referencia számra!
A főépületet a melléképülettel egy közel 70 nm-es fedett terasz köti össze.
Az épület együttes 1649 nm-es telken helyezkedik el, amiből kb. 800 nm gyümölcsfákkal és tőkés szőlővel ültetett kert, az udvar elülső része térkövezett.
Az épületegyüttes jellemzői:
- szerkezete blokk,
- északi falazata kívülről kőzetgyapottal szigetelt és Lindab lemezzel burkolt,
- födémszerkezete beton és fa,
- tetőszerkezete fa, héjazata pala és zsindely - beépíthető padlásterek,
- teljesen alápincézett a fő épület,
- a két épületet összekötő tetőszerkezet látszó fagerendás, zsindellyel fedett,
- mindkét szinten L alakú terasz, és az emeleten belső erkély,
- többségében hagyományos fa nyílászárókkal rendelkezik
- padlózata a szobákban, nappaliban és a lépcsőházban is parkettával, a többi helyiség járólappal burkolt,
- beépített, gépesített konyha márvány munkalappal (fritöz, mosogatógép, hűtőszekrény, mikrohullámú sütő, villanysütő, gáz főzőlap)
- vízmelegítésről a fűrdőszobában és zuhanyzóban villanybojler, a konyhában 30L-es átfolyós vízmelegítő gondoskodik,
- összközműves,
- a ház dupla komfortos,
- fűtéséről gázkazán gondoskodik, vagy vegyestüzelésű kazán beépítésére is van lehetőség, hőleadók földszinten, emeleten radiátorok,
- zárt garázs (a melléképülettel egybeépítve).
Amennyiben az ingatlan felkeltette érdeklődését, hívjon bizalommal és tekintsük meg együtt. OTP banki hátterünkkel ügyfeleink rendelkezésére állunk finanszírozási kérdésekben is. Hívásában, hivatkozzon az M297253 referencia számra!