Eladó Ház- házrész
Hirdetéskód: 9214983

-

Felújításhoz személyi kölcsönt keres? Kalkuláljon itt! →
149.00 m2
ALAPTERÜLET
2
SZOBASZÁM
Tégla
ÉPÍTÉS
Napelem
FŰTÉS
  • Ingatlan komfort Összkomfortos
  • Parkolási lehetőség Önálló garázs
  • Építés éve 2018
  • Fűtés Napelem
  • Építőanyag Tégla
  • Erkély, terasz Terasz 49.00m2
  • Klíma igen
  • Víz telken belül
  • Csatorna telken belül
  • Gáz telken belül
  • Villany telken belül

Energetikai besorolás: A++

A+++
A++
A+
A
B
C
D
E
F
G
H
I

Az MBH Bank személyi kölcsön ajánlata

Fizetett hirdetés
1 millió Ft
6 évre
20 585 Ft/hó
THM: 14.5%
Részletek →
2 millió Ft
6 évre
41 169 Ft/hó
THM: 14.5%
Részletek →
3 millió Ft
6 évre
61 754 Ft/hó
THM: 14.5%
Részletek →

A tájékoztatás nem teljes körű és nem minősül ajánlattételnek.

Az ingatlan leírása

#4#F.SZ

Eladó egylakásos lakóház Taksony belterületén, a település szélén található csendes, aszfaltozott utcában, közvetlenül az első tulajdonostól.

Az ingatlan 2018-ban került átadásra; a kialakítás, a műszaki megoldások és a berendezés az eladó gondos tervezésének és figyelmének eredménye.

A telek területe 850 m², utcafronti részén elektromos kapuval ellátott, fűtött, két autónak alkalmas garázs kapott helyet, mely kényelmes beállást biztosít. A 39,5 m²-es garázs tágas, így bőséges helyet kínál kerti és egyéb eszközök tárolására is. A garázsból egy hátsó ajtón keresztül külön, teljesen zárt tárolóhelyiség is megközelíthető.

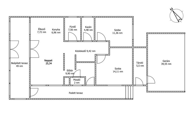
A ház lakóterülete 149 m², jól átgondolt elrendezésű, és hátsó fekvésének köszönhetően kifejezetten privát, nyugodt hangulatot áraszt. Az alábbi helyiségek találhatók benne:
• Előtér: 9,90 m²
• Vendégmosdó: 2,70 m²
• Nappali: 25,34 m²
• Étkező: 7,72 m²
• Konyha: 6,96 m²
• Fedett terasz: 49,45 m²
• Közlekedő: 9,42 m²
• Hálószoba 1: 11,36 m²
• Hálószoba 2: 14,11 m²
• Fürdőszoba: 7,56 m²
• Mosóhelyiség, kazán: 4,48 m²
A hálószobák a ház utca felé eső részén találhatók, külön közlekedőről nyílva, így biztosítva a lakók nyugalmát és a magánszférát. Mindkét szoba tágas, világos és csendes. Ugyanebben a részben helyezkedik el a hangulatos, sarokkádas, dupla mosdós fürdőszoba WC-vel, valamint a kazánhelyiség, amely mosókonyhaként is szolgál, és itt található a napelemrendszer vezérlése is. A 8 kW (12 KW-ra növelhető) napelemrendszernek köszönhetően a ház teljes elektromos fogyasztása fedezett, így a villanyszámla 0 Ft. A meleg vizet és télen a radiátorok melegét a kondenzációs kombi kazán biztosítja.
A kert irányába található az egy légterű nappali–konyha–étkező, amelyből közvetlen kijárat nyílik a teljesen beépített, fűtött teraszra. Ez a rész sokoldalúan használható – ideális akár home office-nak, edzőteremnek vagy hobbiszobának is. Innen jutunk ki a szépen rendezett kertbe, melyet gazdag növényzet, locsolórendszeres pázsit és épített medence tesz különlegessé. A kerti sütögetőhely, az igényes fedett kiülők és a tágas, zöld gyep nagyszerű helyszínt kínál családi összejövetelekhez, baráti programokhoz vagy hétvégi pihenéshez.

Taksony Budapest mellett délre helyezkedik el szinte közvetlenül, ideális választás azoknak, akik a vidéki nyugalmat keresik, de szeretnének közel lenni a fővároshoz. A település jól kiépített infrastruktúrával rendelkezik: óvodák, iskolák, üzletek, orvosi rendelők és sportolási lehetőségek egyaránt elérhetők a közelben. Közlekedés szempontjából kiváló, a főváros autóval mindössze 25–30 perc alatt elérhető, de a busz- és vonatjáratok is kényelmes csatlakozást biztosítanak. A helyi munkahelyek kisebb vállalkozásoknál, boltoknál találhatók, míg a környező települések és Budapest ipari, kereskedelmi zónái is bőven kínálnak további munkalehetőségeket.
Ha Pest megye déli részén keres házat és már nem akar a belső és tereprendezéssel foglalkozni, csak be akar költözni, akkor tekintse meg ezt a házat és beszéljünk a részletekről! A bútorok, berendezések megegyezés tárgyát képezik, a meghirdetett árat befolyásolva.

Térkép

A hirdető elérhetősége

Ingatlanbankár

+36 70 931