Eladó Ház- házrész
Hirdetéskód: 9200847
Dunaharaszti, Dózsa György út 45. (OTPIP)
124 m2
ALAPTERÜLET4
SZOBASZÁMnincs megadva
ÉPÍTÉSnincs megadva
FŰTÉS- CSOK igénybe vehető nem
- Tetőtér beépíthető nem
- Építés éve 2025
- Klíma nem
- Szigetelt nem
A+++
A++
A+
A
B
C
D
E
F
G
H
I
Az ingatlan leírása
Eladó újépítésű kétszintes ikerház Taksonyban, mely népszerű horgász-, csónakázó- és nyári üdülőhely Pest megyében, a Szigetszentmiklósi járásban, a budapesti agglomerációban. 1961 nm-es telken 2 db kétlakásos lakóépület épül, amely a kényelem és a fenntarthatóság jegyében készül.
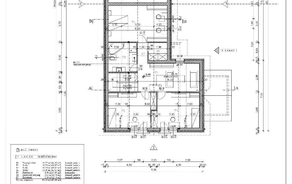
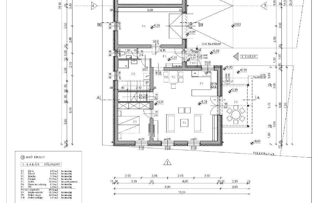
A földszint 67,3 nm, a tetőtér 57,3 nm-es, így a ház 124,6 nm-es. Az alsó szinten helyezkedik el az amerikai konyhás nappali étkezővel (40 nm), egy szoba (11 nm), a háztartási helyiség és egy WC. A felső szinten kapott helyet egy társalgó (18 nm), 3 szoba (12, 12, 12 nm), egy fürdőszoba, és egy ruhatároló helyiség. Ezen kívül a házhoz tartozik még 10 nm-es fedett terasz és egy 21 nm-es garázs is - ezek kapcsolódnak össze.
Műszaki tartalom: - beton alap, tégla falazat, kerámia tetőcserép, 15 cm-es szigetelés - háromrétegű, hőszigetelt műanyag nyílászárók redőnnyel - vizes helyiségekben kerámialap, a szobákban laminált parketta. A fűtése, hűtése és a melegvíz előállítása hőszivattyúval megoldott padlófűtés hőleadással, így otthona energiahatékonnyá válik, egy csepp energia sem vész kárba. Közművek: víz, villany bevezetve, csatorna a telekhatáron. 3*32 A is bevezetésre kerül. Ez a ház magas műszaki tartalommal épül, amely modern és energiatakarékos otthont biztosít.
Finanszírozási lehetőségek: CSOK +, 3%-os Otthon Start és Babaváró hitel
Az árak a lakás elhelyezkedéséből és a telek méretéből adódóan eltérnek:
1. lakás 114,9 M, telek mérete: 273 nm
2. lakás 129,9 M, telek mérete: 558 nm
3. lakás 129,9 M, telek mérete: 558 nm
4. lakás 134,9 M, telek mérete: 572 nm
Taksony a dél-pesti részen, Budapest határától 10 km-re helyezkedik el. Szomszédos települései: Dunaharaszti, Alsónémedi, Bugyi, Dunavarsány, Szigetszentmiklós. A nagyközséget az 510-es út szeli át, az M0-ás autópálya 12 km-re van tőle. A települést a Budapest - Kelebia - vasútvonal érinti.
Árpád unokájának, Taksony fejedelemnek a birtoka volt, innen ered a nagyközség neve. Lakosainak száma 6800 fő. Bölcsőde, német nemzetiségi óvoda ill. iskola várja a tanulni vágyó gyermekeket. Posta, gyermekorvosi rendelő és üzletközpont segíti a mindennapokat. A természetvédelmi terület ritkaságai - a védett úszólápok, a ritka orchideafélék, a gazdag madárvilág, a vízi állatok kiválóan megfigyelhetők itt.
Az emberek ösztönösen vágynak a nyugalomra, a szépre, a természet csöndjére - Taksonyban mindez elérhető.
Ez a ház ideális választás mindazoknak, akik szeretnék a főváros közelségét ötvözni a nyugodt, természetközeli életérzéssel egy impozáns, korszerű otthonban.
A földszint 67,3 nm, a tetőtér 57,3 nm-es, így a ház 124,6 nm-es. Az alsó szinten helyezkedik el az amerikai konyhás nappali étkezővel (40 nm), egy szoba (11 nm), a háztartási helyiség és egy WC. A felső szinten kapott helyet egy társalgó (18 nm), 3 szoba (12, 12, 12 nm), egy fürdőszoba, és egy ruhatároló helyiség. Ezen kívül a házhoz tartozik még 10 nm-es fedett terasz és egy 21 nm-es garázs is - ezek kapcsolódnak össze.
Műszaki tartalom: - beton alap, tégla falazat, kerámia tetőcserép, 15 cm-es szigetelés - háromrétegű, hőszigetelt műanyag nyílászárók redőnnyel - vizes helyiségekben kerámialap, a szobákban laminált parketta. A fűtése, hűtése és a melegvíz előállítása hőszivattyúval megoldott padlófűtés hőleadással, így otthona energiahatékonnyá válik, egy csepp energia sem vész kárba. Közművek: víz, villany bevezetve, csatorna a telekhatáron. 3*32 A is bevezetésre kerül. Ez a ház magas műszaki tartalommal épül, amely modern és energiatakarékos otthont biztosít.
Finanszírozási lehetőségek: CSOK +, 3%-os Otthon Start és Babaváró hitel
Az árak a lakás elhelyezkedéséből és a telek méretéből adódóan eltérnek:
1. lakás 114,9 M, telek mérete: 273 nm
2. lakás 129,9 M, telek mérete: 558 nm
3. lakás 129,9 M, telek mérete: 558 nm
4. lakás 134,9 M, telek mérete: 572 nm
Taksony a dél-pesti részen, Budapest határától 10 km-re helyezkedik el. Szomszédos települései: Dunaharaszti, Alsónémedi, Bugyi, Dunavarsány, Szigetszentmiklós. A nagyközséget az 510-es út szeli át, az M0-ás autópálya 12 km-re van tőle. A települést a Budapest - Kelebia - vasútvonal érinti.
Árpád unokájának, Taksony fejedelemnek a birtoka volt, innen ered a nagyközség neve. Lakosainak száma 6800 fő. Bölcsőde, német nemzetiségi óvoda ill. iskola várja a tanulni vágyó gyermekeket. Posta, gyermekorvosi rendelő és üzletközpont segíti a mindennapokat. A természetvédelmi terület ritkaságai - a védett úszólápok, a ritka orchideafélék, a gazdag madárvilág, a vízi állatok kiválóan megfigyelhetők itt.
Az emberek ösztönösen vágynak a nyugalomra, a szépre, a természet csöndjére - Taksonyban mindez elérhető.
Ez a ház ideális választás mindazoknak, akik szeretnék a főváros közelségét ötvözni a nyugodt, természetközeli életérzéssel egy impozáns, korszerű otthonban.