Eladó Ház- házrész
Hirdetéskód: 9039945
Savaring Immo Kft.
Felújításhoz személyi kölcsönt keres? Kalkuláljon itt! →182.00 m2
ALAPTERÜLET7
SZOBASZÁMnincs megadva
ÉPÍTÉSnincs megadva
FŰTÉS- CSOK igénybe vehető nem
- Tetőtér beépíthető nem
- Építés éve 2011
- Klíma nem
- Szigetelt nem
A+++
A++
A+
A
B
C
D
E
F
G
H
I
Az ingatlan leírása
Szombathely egy méltán híres ingatlana, a volt Martinus Medicus Egészségcentrum épülete várja új tulajdonosát!
Egy igazán kiváló ajánlat az ingatlanpiacon! Legyen szó magánrendelőről, állatorvosi rendelőről, irodaházról, szépészeti centrumról, szálláshely kiadásról itt sokminden könnyedén és költség hatékonyan megvalósítható.
Amennyiben szeretné vállalkozását, praxisát a belváros közelében üzemeltetni, úgy itt a lehetőség!
A magas minőségben megépített két szintes ingatlan egy 805 m2-es telken helyezkedik el, ahol a rendezett zöldterület mellett térkövezett udvaron 14! parkoló is kialakításra került.
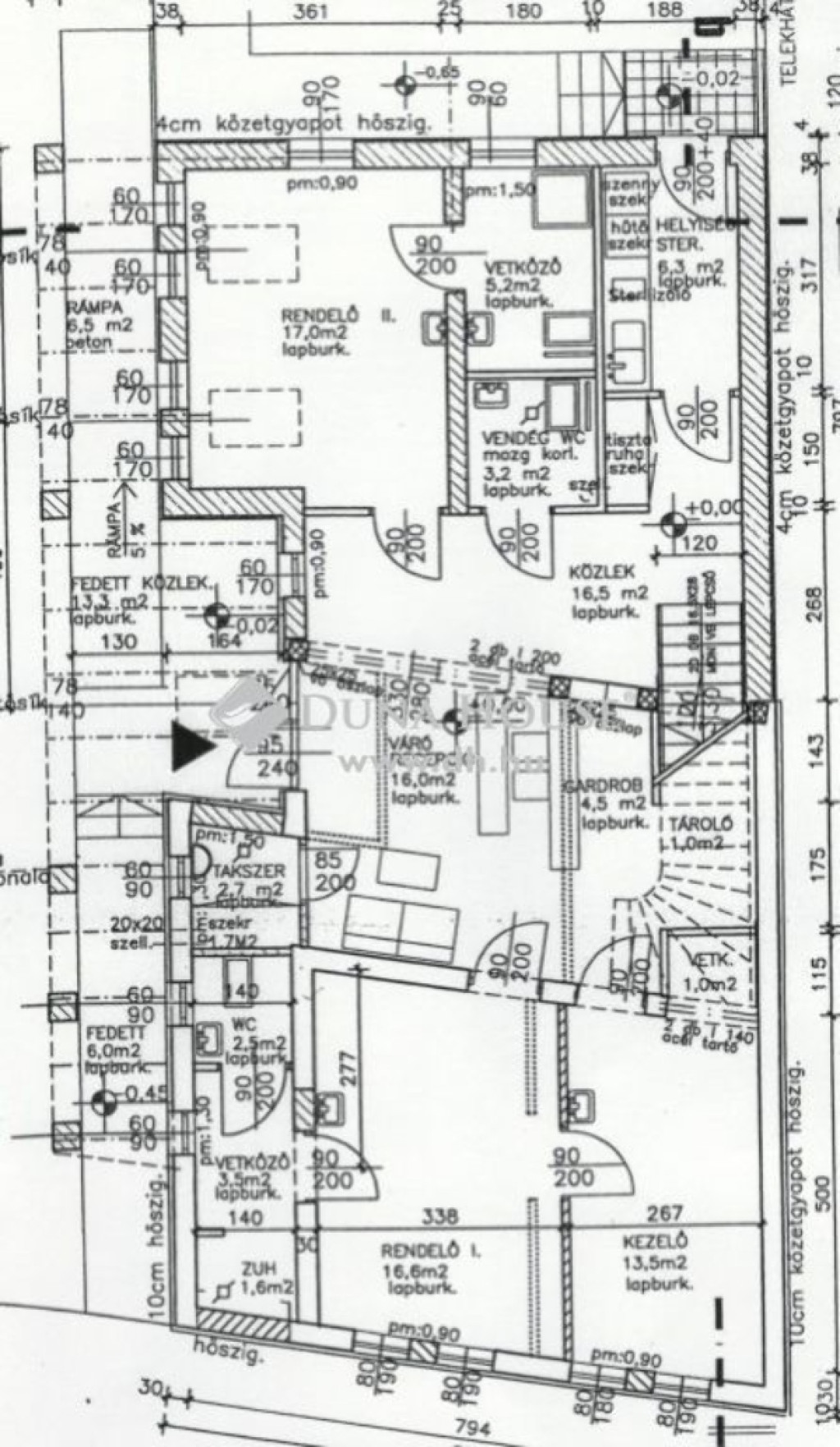
Az épületben jelenleg 4 kezelő- és 1 sterilizáló helyiség biztosítja az orvosok kényelmét és az ügyfelek magas szintű kiszolgálását.
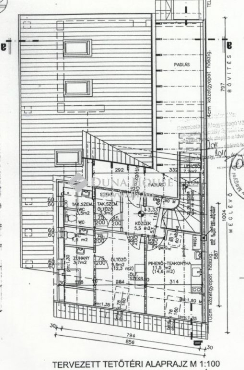
A képgalériában csatolt alaprajzokon megismerheti a pontos helyiséglistát.
A vizesblokkok burkolataitól a beltéri ajtókig minden beépített anyag minőséget és eleganciát sugároz.
Természetesen az épület akadálymentesen megközelíthető.
A fűtés és melegvíz-ellátás egy újszerű kondenzációs kazánról biztosított. A nyári melegekbenz emeleten és a földszinten is a helyiségek hűtéséről klímák gondoskodnak.
A váró-recepció impozáns, 36 m2-es, melynek hangulata elfeledteti az emberrel, hogy egy orvosi rendelőbe érkezett.
A biztonságról kiépített riasztó és kamerarendszer gondoskodik.
Figyelmébe ajánlom az épületet akkor is, ha teljesen más funkcióban gondolkodik. Az épület kialakítása, elhelyezkedése ideális lehet irodaháznak, szépészeti központnak... stb.
Az ingatlan már kiürített állapotba várja új tulajdonosát, aki meglátja a lehetőséget ebben a rengeteg lehetőséget rejtő épületben.
További információkért és megtekintéssel kapcsolatban keressen bizalommal!!
Egy igazán kiváló ajánlat az ingatlanpiacon! Legyen szó magánrendelőről, állatorvosi rendelőről, irodaházról, szépészeti centrumról, szálláshely kiadásról itt sokminden könnyedén és költség hatékonyan megvalósítható.
Amennyiben szeretné vállalkozását, praxisát a belváros közelében üzemeltetni, úgy itt a lehetőség!
A magas minőségben megépített két szintes ingatlan egy 805 m2-es telken helyezkedik el, ahol a rendezett zöldterület mellett térkövezett udvaron 14! parkoló is kialakításra került.
Az épületben jelenleg 4 kezelő- és 1 sterilizáló helyiség biztosítja az orvosok kényelmét és az ügyfelek magas szintű kiszolgálását.
A képgalériában csatolt alaprajzokon megismerheti a pontos helyiséglistát.
A vizesblokkok burkolataitól a beltéri ajtókig minden beépített anyag minőséget és eleganciát sugároz.
Természetesen az épület akadálymentesen megközelíthető.
A fűtés és melegvíz-ellátás egy újszerű kondenzációs kazánról biztosított. A nyári melegekbenz emeleten és a földszinten is a helyiségek hűtéséről klímák gondoskodnak.
A váró-recepció impozáns, 36 m2-es, melynek hangulata elfeledteti az emberrel, hogy egy orvosi rendelőbe érkezett.
A biztonságról kiépített riasztó és kamerarendszer gondoskodik.
Figyelmébe ajánlom az épületet akkor is, ha teljesen más funkcióban gondolkodik. Az épület kialakítása, elhelyezkedése ideális lehet irodaháznak, szépészeti központnak... stb.
Az ingatlan már kiürített állapotba várja új tulajdonosát, aki meglátja a lehetőséget ebben a rengeteg lehetőséget rejtő épületben.
További információkért és megtekintéssel kapcsolatban keressen bizalommal!!