Eladó Ház- házrész
Hirdetéskód: 9309401

Született Fészekrakó Ingatlaniroda

Felújításhoz személyi kölcsönt keres? Kalkuláljon itt! →
FIX 3% Program

Ez a hirdetés megfelelhet a FIX 3%-os programnak.
Tudj meg többet a részletekről itt.

230.00 m2
ALAPTERÜLET
6
SZOBASZÁM
Tégla
ÉPÍTÉS
Gáz (cirkó)
FŰTÉS
  • CSOK igénybe vehető igen
  • Belső szintek 2
  • Kilátás Kertre néző
  • Parkolási lehetőség Önálló garázs
  • Építés éve 1994
  • Fűtés Gáz (cirkó)
  • Építőanyag Tégla
  • Erkély, terasz Terasz 20.00m2
Energetikai besorolás: Nincs meghatározva
A+++
A++
A+
A
B
C
D
E
F
G
H
I

Az MBH Bank személyi kölcsön ajánlata

Fizetett hirdetés
1 millió Ft
6 évre
20 585 Ft/hó
THM: 14.5%
Részletek →
2 millió Ft
6 évre
41 169 Ft/hó
THM: 14.5%
Részletek →
3 millió Ft
6 évre
61 754 Ft/hó
THM: 14.5%
Részletek →

A tájékoztatás nem teljes körű és nem minősül ajánlattételnek.

Az ingatlan leírása

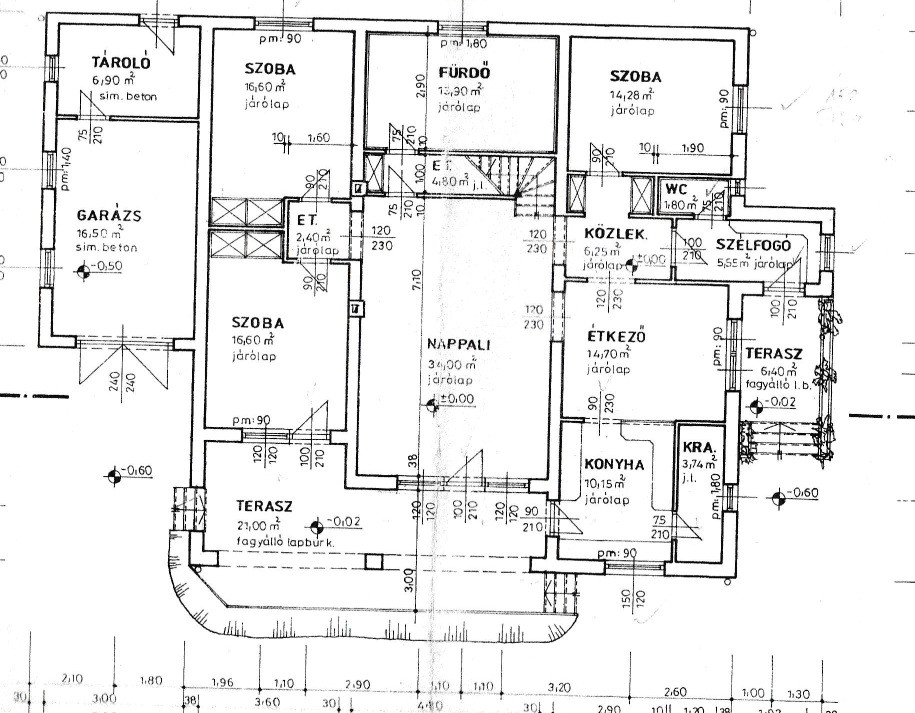
Szombathelyen újperinti városrészen, csendes zsákutcában eladó egy két lakrészes összesen 230m2-es családi ház.
A tégla építésű ház egy 840m2-es telken helyezkedik el, egyik nagy előnye az, hogy nagyon csendes utcában található.
A praktikus elrendezésű ingatlan két külön bejáratú lakrészből áll.
A földszinten ami 140m2-es, három szoba, egy nappali, konyha, étkező, előtér, kamra, fürdőszoba, wc került kialakításra. A ház mellett közvetlenül egy 16m2-es garázs és egy 7m2-es tároló kapott helyet az udvaron még több tároló, melléképület is található ezek igény szerint maradhatnak.
A 93m2-es tetőtér, külön bejárattal egy nappalival, 4 szobával, konyhával, étkezővel, fürdő- wc-vel, külön wc-vel rendelkezik.
A fűtést mindkét szinten cserépkályha biztosítja, a házban padlófűtés és radiátor is van ami gázkazánról működik, de jelenleg a gáz a tulajdonosok döntése alapján ki lett köttetve a házból. Igény szerint ez bármikor visszaállítható.
Az épület 1994-ben épült, 2008-ban felújítást végeztek ekkor alakították ki a felsőrészt de az alsó szint az eredeti állapotban van.
Elrendezése praktikus, akár több generáció együtt élését is kényelmesen meg lehet oldani.Kisebb felújításokkal az új tulajdonos saját elképzelései szerint formálhatja át.
Ajánlom ezt az ingatlant mindazoknak, akik a várostól távolabb, de annak elérhető közelségében szeretnének élni.
Gyorsan birtokba vehető!
Várjuk hívását, rugalmasan tudjuk mutatni...

Térkép

Ingatlan adásvétel ügyvédi díja
404 550 Ft
a hirdetésben szereplő ár alapján
  • A vételár 0,45%-a
  • Szerződéscsomag teljeskörű képviselettel
  • Ingyenes tulajdoni lap ellenőrzés
  • Az ÁFA-t már tartalmazza
Érdekel az ajánlat →
A tájékoztatás nem teljes körű és nem minősül ajánlattételnek. Minimum díj: 150 000 Ft, maximum díj: 600 000 Ft. A díj kizárólag lakóingatlan adásvételére vonatkozik.

A hirdető elérhetősége

Mészáros Dóra e.v.

Mészáros Dóra
+36 30 929