Eladó Ház- házrész
Hirdetéskód: 9139944
Otthon Centrum - Szombathely - Rákóczi F. u.
Felújításhoz személyi kölcsönt keres? Kalkuláljon itt! →
Ez a hirdetés megfelelhet a FIX 3%-os programnak.
Tudj meg többet a részletekről itt.
90.00 m2
ALAPTERÜLET5
SZOBASZÁMnincs megadva
ÉPÍTÉSGáz (cirkó)
FŰTÉS- CSOK igénybe vehető nem
- Tetőtér beépíthető nem
- Építés éve 2026
- Fűtés Gáz (cirkó)
- Klíma nem
- Szigetelt nem
A+++
A++
A+
A
B
C
D
E
F
G
H
I
Az ingatlan leírása
Plató I. projekt
Szombathelyen új építésű ikerház eladó!
Új építésű ikerház eladó Szombathelyen, az Oladi városrészen.
Egy modern ikerház egyik felét kínálom, amelyet 2026-ban vehet birtokba.
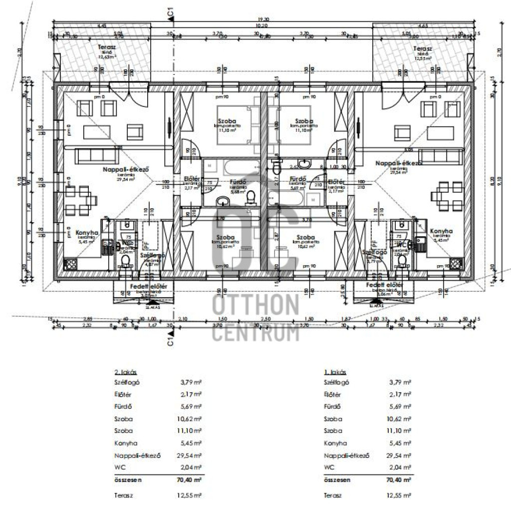
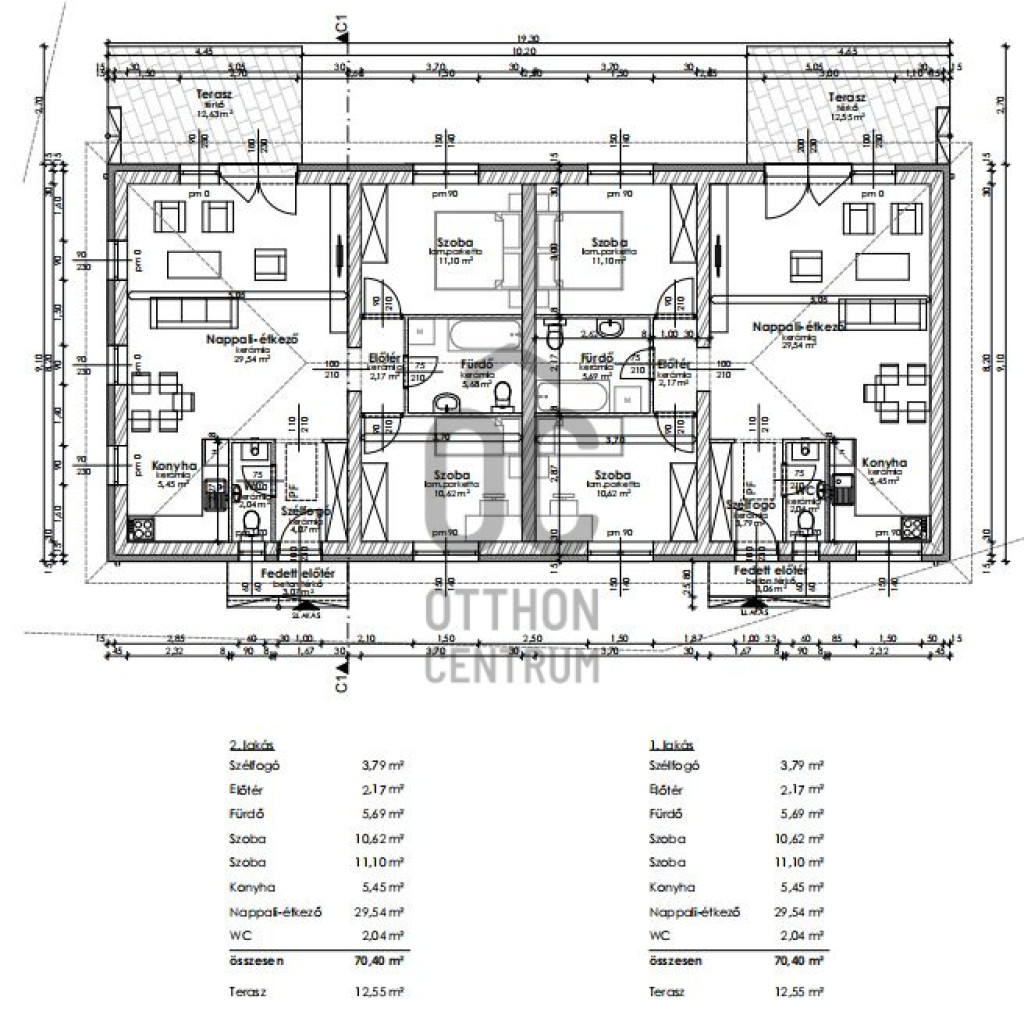
A 90,73 négyzetméteres lakótér minden részlete átgondolt: négy kényelmes hálószoba, egy tágas, világos nappali, amely egy légtérben helyezkedik el a konyha-étkezővel. Innen közvetlenül kiléphet a 12 négyzetméteres teraszra, ahol reggeli kávé, baráti beszélgetések, vagy egy csendes este is jól esik. Az ingatlanban két fürdőszoba kapott helyet.
Praktikus és otthonos megoldások.
Az ingatlan nemcsak szép, hanem magas minőségű műszaki tartalommal is épül: téglaépítésű, 15 cm-es szigeteléssel, korszerű BOSCH kombi kazánnal /padlófűtés/ és háromrétegű műanyag nyílászárókkal, amelyek kiváló hő- és hangszigetelést biztosítanak. A házba klíma is beépítésre kerül.
A hozzá tartozó 774 négyzetméteres kertet úgy alakíthatja ki, ahogy szeretné – legyen az egy veteményes, játszórész, vagy éppen egy hangulatos kerti sütögető.
Ez az otthon ideális választás lehet, ha csendes környezetre, mégis városhoz közeli, modern életstílusra vágyik. Ha úgy érzi szívesen élne itt, kérem keressen, beszéljük át a részleteket!
✅ 90,73 m²-es lakótér + 12 m² terasz
✅ 4 hálószoba, nappali-étkező-konyha egy légtérben
✅ 2 fürdőszoba
✅ közvetlen kertkapcsolat a nappaliból
✅ 774 m² saját kert – ideális családosoknak, vagy kertészkedni vágyóknak
✅ téglaépítésű, 15 cm hőszigeteléssel
✅ 3 rétegű műanyag nyílászárók
✅ BOSCH kondenzációs kazán + padlófűtés
✅ beépített klíma
✅ 2026-os átadás
Az ingatlan modern műszaki tartalommal, energiatakarékos kialakítással készül, kellemes, csendes környezetben.
TOVÁBBI LEHETŐSÉGEK!
Új építésű ikerházak eladók Szombathelyen, az Oladi városrészen:
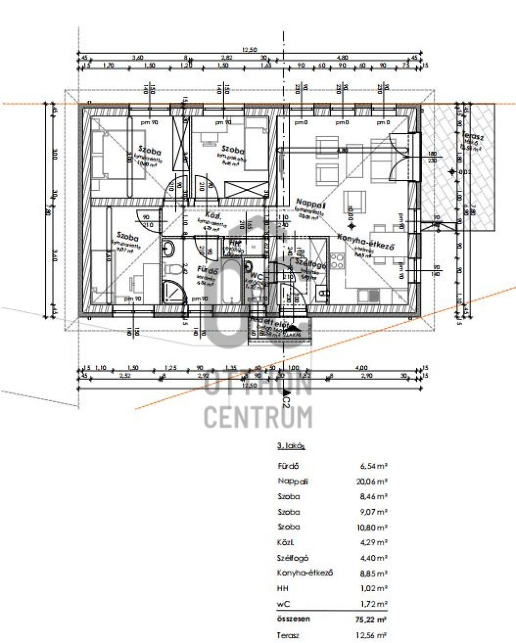
- több méretben kerülnek megépítésre: 47 nm-től akár 90 nm-ig
- telek méretek: 228 nm-től 774 nm-ig
- nappali+ 2, illetve nappali +3 szobás kivitelezéssel
Ne maradjon le , keressen bizalommal!
Hitelre van szüksége? Az Otthon Centrum az ország egyik legnagyobb és legmegbízhatóbb hitelközvetítőjeként, teljes körű és díjmentes hitel ügyintézéssel, biztosításkötéssel áll rendelkezésére! Kérje személyre szabott ajánlatunkat Kollégáinktól!
Válassza ki az Önnek legmegfelelőbbet.
Projekt bemutatása
Szombathelyen új építésű ikerházak eladók!
Új építésű ikerházak eladók Szombathelyen, az Oladi városrészen:
- több méretben kerülnek megépítésre: 47 nm-től akár 90 nm-ig
- telek méretek: 228 nm-től 774 nm-ig
- nappali+ 2, illetve nappali +3 szobás kivitelezéssel
Az ingatlanok magas minőségű műszaki tartalommal épülnek: tégla falazat, 15 cm-es homlokzati szigetelés, korszerű BOSCH kombi kazán /padlófűtés/ és háromrétegű műanyag nyílászárók, amelyek kiváló hő- és hangszigetelést biztosítanak. A házakban klíma is beépítésre kerül.
Ez az otthon ideális választás lehet, ha csendes környezetre, mégis városhoz közeli, modern életstílusra vágyik. Ha úgy érzi szívesen élne itt, kérem keressen, beszéljük át a részleteket!
✅ 47-90 m²-es lakótér + terasz
✅ 2-3 hálószoba, nappali-étkező-konyha egy légtérben
✅ fürdőszoba + külön WC
✅ közvetlen kertkapcsolat a nappaliból
✅ 228-774 m² saját kert – ideális családosoknak, vagy kertészkedni vágyóknak
✅ téglaépítésű, 15 cm hőszigeteléssel
✅ 3 rétegű műanyag nyílászárók
✅ BOSCH kondenzációs kazán + padlófűtés
✅ beépített klíma
✅ 2026-os átadás
Az ingatlanok modern műszaki tartalommal, energiatakarékos kialakítással készülnek, kellemes, csendes környezetben.
Ne maradjon le , keressen bizalommal!
Szombathelyen új építésű ikerház eladó!
Új építésű ikerház eladó Szombathelyen, az Oladi városrészen.
Egy modern ikerház egyik felét kínálom, amelyet 2026-ban vehet birtokba.
A 90,73 négyzetméteres lakótér minden részlete átgondolt: négy kényelmes hálószoba, egy tágas, világos nappali, amely egy légtérben helyezkedik el a konyha-étkezővel. Innen közvetlenül kiléphet a 12 négyzetméteres teraszra, ahol reggeli kávé, baráti beszélgetések, vagy egy csendes este is jól esik. Az ingatlanban két fürdőszoba kapott helyet.
Praktikus és otthonos megoldások.
Az ingatlan nemcsak szép, hanem magas minőségű műszaki tartalommal is épül: téglaépítésű, 15 cm-es szigeteléssel, korszerű BOSCH kombi kazánnal /padlófűtés/ és háromrétegű műanyag nyílászárókkal, amelyek kiváló hő- és hangszigetelést biztosítanak. A házba klíma is beépítésre kerül.
A hozzá tartozó 774 négyzetméteres kertet úgy alakíthatja ki, ahogy szeretné – legyen az egy veteményes, játszórész, vagy éppen egy hangulatos kerti sütögető.
Ez az otthon ideális választás lehet, ha csendes környezetre, mégis városhoz közeli, modern életstílusra vágyik. Ha úgy érzi szívesen élne itt, kérem keressen, beszéljük át a részleteket!
✅ 90,73 m²-es lakótér + 12 m² terasz
✅ 4 hálószoba, nappali-étkező-konyha egy légtérben
✅ 2 fürdőszoba
✅ közvetlen kertkapcsolat a nappaliból
✅ 774 m² saját kert – ideális családosoknak, vagy kertészkedni vágyóknak
✅ téglaépítésű, 15 cm hőszigeteléssel
✅ 3 rétegű műanyag nyílászárók
✅ BOSCH kondenzációs kazán + padlófűtés
✅ beépített klíma
✅ 2026-os átadás
Az ingatlan modern műszaki tartalommal, energiatakarékos kialakítással készül, kellemes, csendes környezetben.
TOVÁBBI LEHETŐSÉGEK!
Új építésű ikerházak eladók Szombathelyen, az Oladi városrészen:
- több méretben kerülnek megépítésre: 47 nm-től akár 90 nm-ig
- telek méretek: 228 nm-től 774 nm-ig
- nappali+ 2, illetve nappali +3 szobás kivitelezéssel
Ne maradjon le , keressen bizalommal!
Hitelre van szüksége? Az Otthon Centrum az ország egyik legnagyobb és legmegbízhatóbb hitelközvetítőjeként, teljes körű és díjmentes hitel ügyintézéssel, biztosításkötéssel áll rendelkezésére! Kérje személyre szabott ajánlatunkat Kollégáinktól!
Válassza ki az Önnek legmegfelelőbbet.
Projekt bemutatása
Szombathelyen új építésű ikerházak eladók!
Új építésű ikerházak eladók Szombathelyen, az Oladi városrészen:
- több méretben kerülnek megépítésre: 47 nm-től akár 90 nm-ig
- telek méretek: 228 nm-től 774 nm-ig
- nappali+ 2, illetve nappali +3 szobás kivitelezéssel
Az ingatlanok magas minőségű műszaki tartalommal épülnek: tégla falazat, 15 cm-es homlokzati szigetelés, korszerű BOSCH kombi kazán /padlófűtés/ és háromrétegű műanyag nyílászárók, amelyek kiváló hő- és hangszigetelést biztosítanak. A házakban klíma is beépítésre kerül.
Ez az otthon ideális választás lehet, ha csendes környezetre, mégis városhoz közeli, modern életstílusra vágyik. Ha úgy érzi szívesen élne itt, kérem keressen, beszéljük át a részleteket!
✅ 47-90 m²-es lakótér + terasz
✅ 2-3 hálószoba, nappali-étkező-konyha egy légtérben
✅ fürdőszoba + külön WC
✅ közvetlen kertkapcsolat a nappaliból
✅ 228-774 m² saját kert – ideális családosoknak, vagy kertészkedni vágyóknak
✅ téglaépítésű, 15 cm hőszigeteléssel
✅ 3 rétegű műanyag nyílászárók
✅ BOSCH kondenzációs kazán + padlófűtés
✅ beépített klíma
✅ 2026-os átadás
Az ingatlanok modern műszaki tartalommal, energiatakarékos kialakítással készülnek, kellemes, csendes környezetben.
Ne maradjon le , keressen bizalommal!