Eladó Ház- házrész
Hirdetéskód: 9246683

Született Fészekrakó Ingatlaniroda

Felújításhoz személyi kölcsönt keres? Kalkuláljon itt! →
FIX 3% Program

Ez a hirdetés megfelelhet a FIX 3%-os programnak.
Tudj meg többet a részletekről itt.

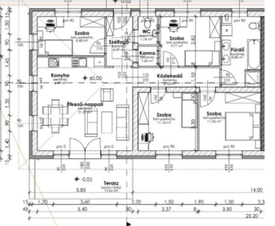
108.00 m2
ALAPTERÜLET
1
SZOBASZÁM
Tégla
ÉPÍTÉS
Gáz (cirkó)
FŰTÉS
  • CSOK igénybe vehető igen
  • Belső szintek 1
  • Tetőtér beépíthető nem
  • Kilátás Udvari
  • Parkolási lehetőség Önálló garázs
  • Építés éve 2026
  • Fűtés Gáz (cirkó)
  • Építőanyag Tégla
  • Erkély, terasz Terasz 14.00m2
  • Klíma igen
  • Szigetelt igen
  • Bútorozott nem
Energetikai besorolás: Nincs meghatározva
A+++
A++
A+
A
B
C
D
E
F
G
H
I

Az MBH Bank személyi kölcsön ajánlata

Fizetett hirdetés
1 millió Ft
6 évre
20 585 Ft/hó
THM: 14.5%
Részletek →
2 millió Ft
6 évre
41 169 Ft/hó
THM: 14.5%
Részletek →
3 millió Ft
6 évre
61 754 Ft/hó
THM: 14.5%
Részletek →

A tájékoztatás nem teljes körű és nem minősül ajánlattételnek.

Az ingatlan leírása

Kizárólag irodánk ajánlatában ez az abszolút friss projekt!

Stílusos, korszerű ikerházak Szombathely nyugati városrészén, a Dr. Pálos Károly utcában!
Eladó igényesen kialakított, újszerű otthonok a nyugati városrész újonnan épülő, családbarát lakóparkjában, közvetlenül az aszfaltos út közelében.(Márton Áron mellett)
A házak kialakítása a mai modern igényekhez igazodik:
- nagy, napfényes teraszok a kikapcsolódáshoz,
- nappali + 4 hálószoba, nettó 90m2-es, 490m2 telek
- energiatakarékos megoldások az alacsony fenntartásért,
- padlófűtés és hűtő-fűtő klíma teljes kényelemért,
- megbízható kivitelezés minőségi anyagokkal,
- 20m2-es garázs, 1 db beálló.

Referenciaházaink, folyamatban lévő építkezéseink megtekinthetők, így saját szemével is meggyőződhet a letisztult, időtálló formavilágról és a gondos kivitelezésről. Várható kezdés 2026. nyár. Ha egy elegáns, új otthonban szeretne élni Szombathely egyik legdinamikusabban fejlődő részén keressen bizalommal!

Térkép

Ingatlan adásvétel ügyvédi díja
449 550 Ft
a hirdetésben szereplő ár alapján
  • A vételár 0,45%-a
  • Szerződéscsomag teljeskörű képviselettel
  • Ingyenes tulajdoni lap ellenőrzés
  • Az ÁFA-t már tartalmazza
Érdekel az ajánlat →
A tájékoztatás nem teljes körű és nem minősül ajánlattételnek. Minimum díj: 150 000 Ft, maximum díj: 600 000 Ft. A díj kizárólag lakóingatlan adásvételére vonatkozik.

A hirdető elérhetősége

Mészáros Dóra e.v.

Mészáros Dóra
+36 30 929