Eladó Ház- házrész
Hirdetéskód: 9246672

Született Fészekrakó Ingatlaniroda

Felújításhoz személyi kölcsönt keres? Kalkuláljon itt! →
FIX 3% Program

Ez a hirdetés megfelelhet a FIX 3%-os programnak.
Tudj meg többet a részletekről itt.

67.00 m2
ALAPTERÜLET
1
SZOBASZÁM
Tégla
ÉPÍTÉS
Gáz (cirkó)
FŰTÉS
  • Belső szintek 1
  • Tetőtér beépíthető nem
  • Kilátás Udvari
  • Parkolási lehetőség Udvari beálló
  • Építés éve 2026
  • Fűtés Gáz (cirkó)
  • Építőanyag Tégla
  • Erkély, terasz Terasz 14.00m2
  • Klíma igen
  • Szigetelt igen
  • Bútorozott nem
Energetikai besorolás: Nincs meghatározva
A+++
A++
A+
A
B
C
D
E
F
G
H
I

Az MBH Bank személyi kölcsön ajánlata

Fizetett hirdetés
1 millió Ft
6 évre
20 585 Ft/hó
THM: 14.5%
Részletek →
2 millió Ft
6 évre
41 169 Ft/hó
THM: 14.5%
Részletek →
3 millió Ft
6 évre
61 754 Ft/hó
THM: 14.5%
Részletek →

A tájékoztatás nem teljes körű és nem minősül ajánlattételnek.

Az ingatlan leírása

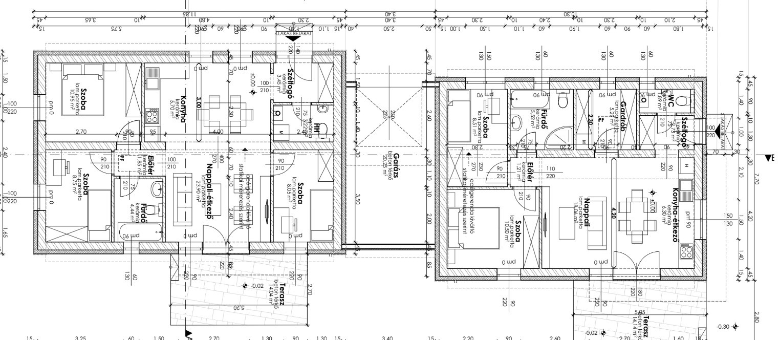
Szombathely Oladon, a Dr.Pálos Károly  utcában energiatakarékos ikerházak garázzsal összeépülve! Dinamikusan fejlődő kertvárosi lakóövezetben olyan modern stílusú otthonokat építünk, amilyet igazán szeretni fog! Ez már a jövő építészete! Élvezze, ahogy az otthona is átköltözik a 21. századba és a biztonság, kényelem szigetévé változik az egész család számára. Legnagyobb előnye,hogy igazodik az Ön életviteléhez! Modern, letisztult tervek, világos belső terek, jó térkapcsolatok jellemzik ezt a nappali+ 2 félszobás +gardrób szoba  (igény szerint bővíthető) 60m2 ikerházi lakást 361m2-es telekkel,fűtése egy kondenzációs gázkazánról padlófűtés és hűtő-fűtő klíma. Saját ízlése szerint választhatja ki a burkolatokat, szanitereket, beltéri ajtókat, otthona színeivel, hangulatával nem kell megalkudnia, hiszen mindenben követi az Ön elképzeléseit. Ideális, kedvező fekvése és a korszerű építőanyagoknak köszönhetően nagyon kedvező fenntartási költségekkel számolhat. Az egyszintes házhoz tartozik kettő gépkocsibeálló. Ideális otthont biztosít mindazoknak, akik nem akarnak kimaradni a város vérkeringéséből, de nem mondanak le a zöld, nyugodt lakókörnyezetről sem. Várható kezdés 2026. nyár. Megbízható, referenciákkal rendelkező, rugalmas vállalkozótól. Segítünk eladni jelenlegi ingatlanját is a legjobb megoldással! Megtervezzük az egész építkezés folyamatát, elkísérjük a végéig! Jöjjön el egy kávéra, és ha beköltözött új otthonába Ön hív meg egy kávéra! Bővebb információért keressen!

Térkép

Ingatlan adásvétel ügyvédi díja
296 550 Ft
a hirdetésben szereplő ár alapján
  • A vételár 0,45%-a
  • Szerződéscsomag teljeskörű képviselettel
  • Ingyenes tulajdoni lap ellenőrzés
  • Az ÁFA-t már tartalmazza
Érdekel az ajánlat →
A tájékoztatás nem teljes körű és nem minősül ajánlattételnek. Minimum díj: 150 000 Ft, maximum díj: 600 000 Ft. A díj kizárólag lakóingatlan adásvételére vonatkozik.

A hirdető elérhetősége

Mészáros Dóra e.v.

Mészáros Dóra
+36 30 929