Eladó Ház- házrész
Hirdetéskód: 9301473

Született Fészekrakó Ingatlaniroda

Felújításhoz személyi kölcsönt keres? Kalkuláljon itt! →
120.00 m2
ALAPTERÜLET
1
SZOBASZÁM
Tégla
ÉPÍTÉS
Gáz (cirkó)
FŰTÉS
  • CSOK igénybe vehető igen
  • Belső szintek 2
  • Kilátás Kertre néző
  • Parkolási lehetőség Udvari beálló
  • Építés éve 2020
  • Fűtés Gáz (cirkó)
  • Építőanyag Tégla
  • Erkély, terasz Terasz 25.00m2
  • Klíma igen
  • Szigetelt igen
  • Bútorozott igen
Energetikai besorolás: Nincs meghatározva
A+++
A++
A+
A
B
C
D
E
F
G
H
I

Az MBH Bank személyi kölcsön ajánlata

Fizetett hirdetés
1 millió Ft
6 évre
20 585 Ft/hó
THM: 14.5%
Részletek →
2 millió Ft
6 évre
41 169 Ft/hó
THM: 14.5%
Részletek →
3 millió Ft
6 évre
61 754 Ft/hó
THM: 14.5%
Részletek →

A tájékoztatás nem teljes körű és nem minősül ajánlattételnek.

Az ingatlan leírása

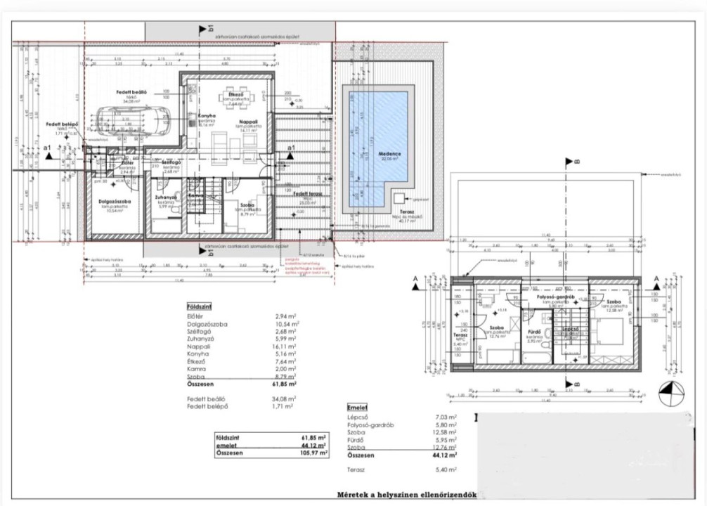
Az Arborétum közelében, nívós környezetben kínáljuk eladásra ezt a kifogástalan állapotú, exkluzív , 2020-ban épült családi házat 560m2-es telekkel, amely teljes berendezéssel, kiegészítőkkel és igényes gépészettel várja új tulajdonosát.
Ez az otthon minden részletében a minőséget képviseli – tágas terek, gondosan megtervezett kert és fűtött úszómedence teszik igazán különlegessé, modern és energiatakarékos rendkívül csendes, igényes lakókörnyezetben található, prémium minőségű beépített bútorokkal. 110m2-es, nappali+3szobás, mindkét szinten fürdőszoba-wc. A kert igényesen parkosított, hátsó részén található egy kb. 22 m²-es, sokoldalúan használható melléképület, amely akár hobbihelyiségnek, irodának vagy tárolónak is tökéletes.
Az ingatlanhoz két fedett gépkocsi-beálló és egy tágas, hangulatos fedett terasz tartozik. A kert igazi ékköve egy prémium felszereltségű, 8×4 méteres úszómedence, amely minden igényt kielégít, legyen szó sportolásról, pihenésről vagy családi kikapcsolódásról.
A medence hőszivattyús fűtéssel működik, így hosszabb szezonban használható, akár hűvösebb időben is. Beépített ellenáramoltató rendszerének köszönhetően helyben úszásra is alkalmas, így kis helyigénnyel biztosít valódi úszásélményt. A víz nem klóros, hanem sós technológiával működik, automatikus adagoló- és tisztítórendszerekkel, amelyek kényelmes és gazdaságos üzemeltetést tesznek lehetővé. A medencében led világítás található, így esti használatkor is különleges hangulatot teremt. A medence fölé egy 3 szegmenses, könnyedén eltolható medencetető került, amely védi a vizet, csökkenti a párolgást és akár rossz időben is biztosítja a használhatóságot. Ez a modern, karbantartásbarát medencerendszer nemcsak növeli az ingatlan értékét, hanem élményt is nyújt az itt élőknek.


Kiemelkedő komfort és biztonság, a ház felszereltsége a modern kényelmet helyezi középpontba:
Motoros kapu és kamerás kaputelefon
Riasztórendszer és klíma
Robotfűnyíró és automata öntözőrendszer
9 kW-os napelem rendszer, ami biztosítja az alacsony fenntartási költségeket.


Ez az ingatlan a modern családi otthonok legmagasabb szintjét képviseli: letisztult elegancia, minőségi kivitelezés és kivételes felszereltség egyetlen, gondosan megtervezett egységben – mindez az Arborétum közelében kedvelt városrészen.

Térkép

Ingatlan adásvétel ügyvédi díja
600 000 Ft
a hirdetésben szereplő ár alapján
  • A vételár 0,45%-a
  • Szerződéscsomag teljeskörű képviselettel
  • Ingyenes tulajdoni lap ellenőrzés
  • Az ÁFA-t már tartalmazza
Érdekel az ajánlat →
A tájékoztatás nem teljes körű és nem minősül ajánlattételnek. Minimum díj: 150 000 Ft, maximum díj: 600 000 Ft. A díj kizárólag lakóingatlan adásvételére vonatkozik.

A hirdető elérhetősége

Mészáros Dóra e.v.

Mészáros Dóra
+36 30 929