Eladó Ház- házrész
Hirdetéskód: 9291599

Született Fészekrakó Ingatlaniroda

Felújításhoz személyi kölcsönt keres? Kalkuláljon itt! →
210.00 m2
ALAPTERÜLET
3
SZOBASZÁM
Tégla
ÉPÍTÉS
Gáz (cirkó)
FŰTÉS
  • CSOK igénybe vehető igen
  • Belső szintek 1
  • Tetőtér beépíthető igen
  • Kilátás Kertre néző
  • Parkolási lehetőség Önálló garázs
  • Építés éve 1999
  • Fűtés Gáz (cirkó)
  • Építőanyag Tégla
  • Erkély, terasz Terasz 60.00m2
  • Klíma igen
  • Szigetelt igen
Energetikai besorolás: Nincs meghatározva
A+++
A++
A+
A
B
C
D
E
F
G
H
I

Az MBH Bank személyi kölcsön ajánlata

Fizetett hirdetés
1 millió Ft
6 évre
20 585 Ft/hó
THM: 14.5%
Részletek →
2 millió Ft
6 évre
41 169 Ft/hó
THM: 14.5%
Részletek →
3 millió Ft
6 évre
61 754 Ft/hó
THM: 14.5%
Részletek →

A tájékoztatás nem teljes körű és nem minősül ajánlattételnek.

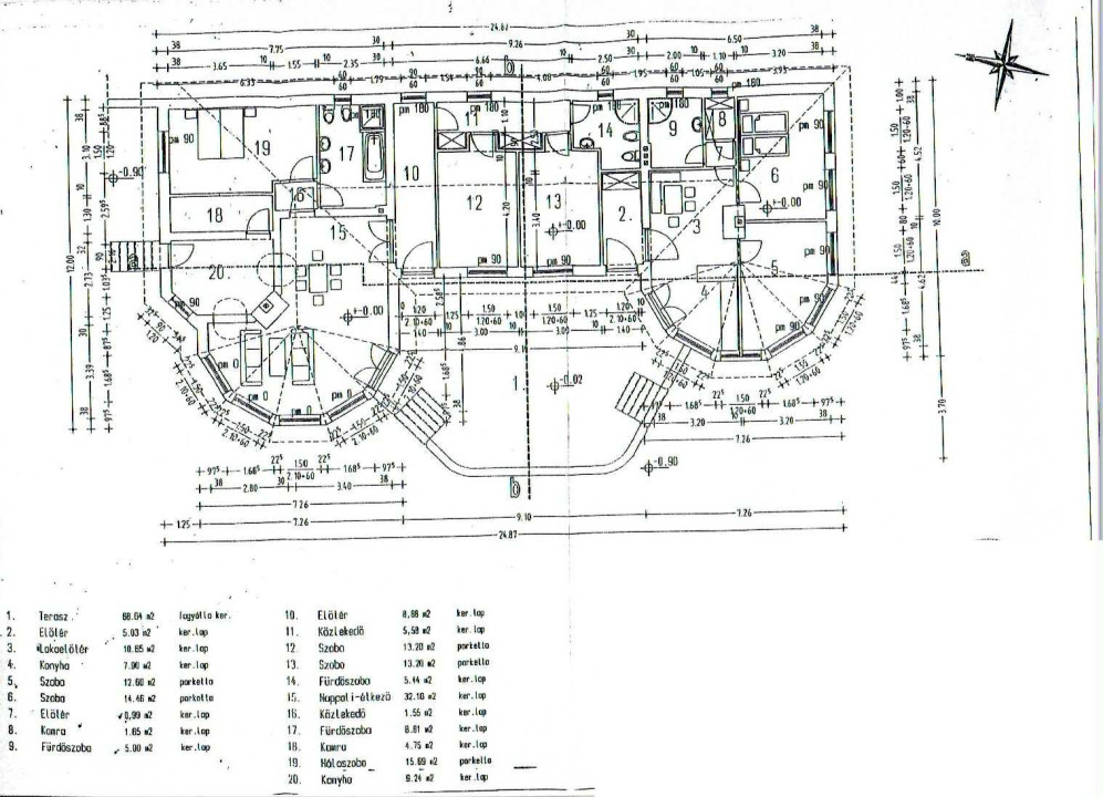
Az ingatlan leírása

Kétgenerációs, energiatakarékos családi ház eladó Szombathely egyik legkedveltebb részén!

Külön megvásárolható szomszédos telekkel!
Szombathely egyik legkeresettebb részén, a Bagolyvár közelében, csendes, nyugodt utcában kínálunk eladásra egy 210 m2-es, kétgenerációs családi házat, amely egy 791 m2-es, gondozott telken helyezkedik el.

Az ingatlan mellett található egy külön helyrajzi számon lévő további 792 m2-es telek, amely igény esetén külön megvásárolható 35 millió forintért, így a teljes terület akár 1580 m2-re bővíthető. Ideális lehet nagyobb kertre, további építkezésre vagy befektetésre.

A 1999-ben épült ház korának kimagasló műszaki tartalmával készült, minőségi kivitelezéssel, amelyet azóta is folyamatosan karbantartottak és korszerűsítettek. Az ingatlan elhelyezkedése kiváló a szomszédoktól elszeparált, így a nyugodt, privát lakókörnyezet garantált.

A gondozott kert minden igényt kielégít:

- dupla garázs
- különálló kerti ház
- kerti kemence
- fúrt kút
- automata öntözőrendszer
- robotfűnyíró
A tágas terasz tökéletes helyszíne a pihenésnek, családi vagy baráti összejövetelnek.
A ház két teljesen külön bejáratú lakrészből áll, amelyek igény esetén össze is nyithatók, így ideális választás két generáció együttélésére vagy akár befektetésre.

Első lakrész:
- új, gépesített étkező-konyha
- két hálószoba
- fürdőszoba
- gázkazán fal- és padlófűtéssel
- cserépkályha
- hűtő-fűtő klíma
Hátsó, nagyobb lakrész:
- nappali
- három hálószoba
- két fürdőszoba
- tágas konyha és kamra
- fal- és padlófűtés közös gázkazánról
- nappaliban cserépkályha
- két Daikin hűtő-fűtő klíma

A ház betonfödémes szerkezetű, korszerű, redőnnyel ellátott műanyag nyílászárókkal, amelyek világos és barátságos belső tereket biztosítanak.

Az ingatlan energiahatékonysága kiemelkedő:

- 10 kW teljesítményű napelemes rendszer (15 kW-ig bővíthető)
- 2 napkollektor a meleg víz előállításához

Ennek köszönhetően a fenntartási költség rendkívül kedvező, a gázszámla mindössze kb. 10.000 Ft/hó.

Ez az ingatlan tökéletes választás mindazok számára, akik Szombathelyen, zöldövezeti környezetben keresnek tágas, világos és energiatakarékos otthont, amely akár két generáció kényelmes együttélését is biztosítja.

Térkép

A hirdető elérhetősége

Mészáros Dóra e.v.

Várkonyné Csácsics Andrea
+36 20 979