Eladó Ház- házrész
Hirdetéskód: 9084368
Savaring Immo Kft.
81 m2
ALAPTERÜLET4
SZOBASZÁMnincs megadva
ÉPÍTÉSnincs megadva
FŰTÉS- CSOK igénybe vehető nem
- Tetőtér beépíthető nem
- Építés éve 2026
- Klíma nem
- Szigetelt nem
A+++
A++
A+
A
B
C
D
E
F
G
H
I
Az ingatlan leírása
Modern megjelenés - funkcionális, korszerű tartalom - családias, zöld környezet ! Új ikerház Szombathelyen.
A 902 m2-es telken két lakóegység kerül kialakításra egymástól elválasztva, önálló kertekkel, két-két gépkocsi beállóval házanként. Az ingatlanok várható műszaki átadása 2026 nyara. Gondos tervezés, kiemelkedő műszaki tartalom, I. osztályú minőség, és a vevők igényeire szabható belső kialakítás jellemzik az épületeket. Az ikerház a déli városrészen a horgásztavak közelében épül, a tervezésnél nagy hangsúlyt kapott az ideális tájolás,a fenntarthatóság, az intimitás és az élhető környezet.
- az A jelű ingatlan paraméterei:
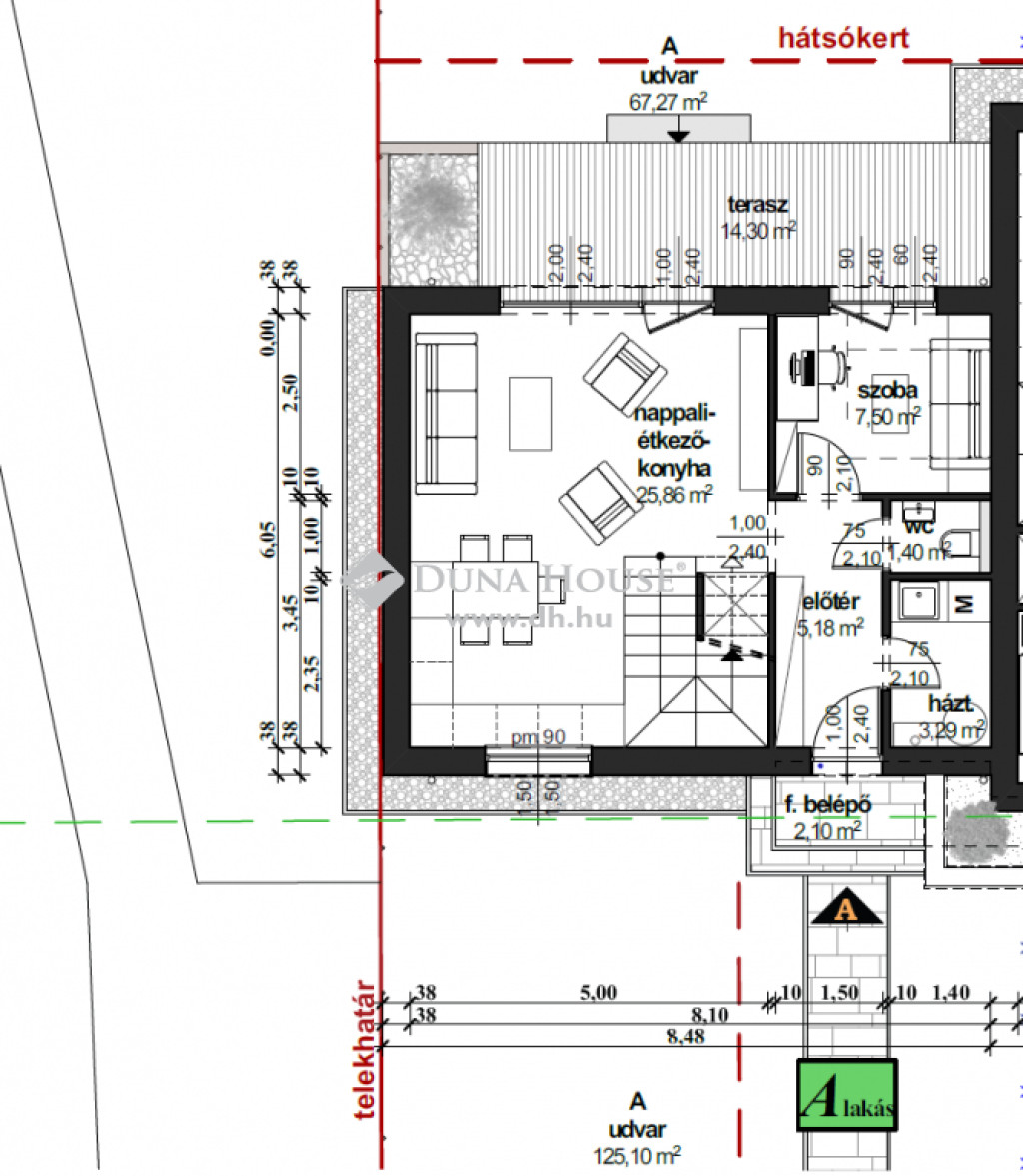
Telek: 330 m2 (ebből zöld kert: 192 m2)
Fsz.: -Előtér, wc, nappali-konyha-étkező, szoba, háztartási helyiség, fsz. összesen 43,23 m2
- fedett belépő 2,1 m2, terasz 14,3 m2, + 2 db gépkocsibeálló
Emelet: -2 hálószoba, 2 gardrób, fürdőszoba wc-vel, közlekedő, lépcsőtér, emelet összesen 45,58 m2 (nettó30,45 m2)...
Az ingatlanok a legkorszerűbb műszaki megoldásokkal készülnek, - Porotherm 30-as téglafalazat-15cm homlokzati hőszigetelés-Porotherm 10-es válaszfal-ZENIT MAX GRAFIT RESISTOR betoncserép-BOSCH levegő-víz szétválasztott hőszivattyú-Padlófűtéssel
.A vételár tartalmazza a választható szanitereket, a hideg-meleg burkolatokat, a járda térburkolatokat de még a konyhabútort is ....(részletes tájékoztatás a műszaki tartalom alapján)
Opcionálisan egyéb extra igények kivitelezésére is van lehetőség, megegyezés szerint, árajánlat alapján. Az ingatlan vételára bruttó 69.900.000.Ft
A fizetési ütemezés és a finanszírozási lehetőségek rugalmasak, vevőre szabhatóak. Igénybe vehető kedvezmények: Babaváró, CSOKplusz + támogatott hitel, illeték mentes vásárlás. (Pénzügyi szakértő kollégánknál díjmentes tájékoztatás.)
További információért és megtekintésért keressen bizalommal, és ne feledje hogy vevőinknek minden szolgáltatásunk INGYENES!
A 902 m2-es telken két lakóegység kerül kialakításra egymástól elválasztva, önálló kertekkel, két-két gépkocsi beállóval házanként. Az ingatlanok várható műszaki átadása 2026 nyara. Gondos tervezés, kiemelkedő műszaki tartalom, I. osztályú minőség, és a vevők igényeire szabható belső kialakítás jellemzik az épületeket. Az ikerház a déli városrészen a horgásztavak közelében épül, a tervezésnél nagy hangsúlyt kapott az ideális tájolás,a fenntarthatóság, az intimitás és az élhető környezet.
- az A jelű ingatlan paraméterei:
Telek: 330 m2 (ebből zöld kert: 192 m2)
Fsz.: -Előtér, wc, nappali-konyha-étkező, szoba, háztartási helyiség, fsz. összesen 43,23 m2
- fedett belépő 2,1 m2, terasz 14,3 m2, + 2 db gépkocsibeálló
Emelet: -2 hálószoba, 2 gardrób, fürdőszoba wc-vel, közlekedő, lépcsőtér, emelet összesen 45,58 m2 (nettó30,45 m2)...
Az ingatlanok a legkorszerűbb műszaki megoldásokkal készülnek, - Porotherm 30-as téglafalazat-15cm homlokzati hőszigetelés-Porotherm 10-es válaszfal-ZENIT MAX GRAFIT RESISTOR betoncserép-BOSCH levegő-víz szétválasztott hőszivattyú-Padlófűtéssel
.A vételár tartalmazza a választható szanitereket, a hideg-meleg burkolatokat, a járda térburkolatokat de még a konyhabútort is ....(részletes tájékoztatás a műszaki tartalom alapján)
Opcionálisan egyéb extra igények kivitelezésére is van lehetőség, megegyezés szerint, árajánlat alapján. Az ingatlan vételára bruttó 69.900.000.Ft
A fizetési ütemezés és a finanszírozási lehetőségek rugalmasak, vevőre szabhatóak. Igénybe vehető kedvezmények: Babaváró, CSOKplusz + támogatott hitel, illeték mentes vásárlás. (Pénzügyi szakértő kollégánknál díjmentes tájékoztatás.)
További információért és megtekintésért keressen bizalommal, és ne feledje hogy vevőinknek minden szolgáltatásunk INGYENES!