Eladó Ház- házrész
Hirdetéskód: 9228805
CasaNetWork Szolnok
Felújításhoz személyi kölcsönt keres? Kalkuláljon itt! →218.00 m2
ALAPTERÜLET5
SZOBASZÁMnincs megadva
ÉPÍTÉSnincs megadva
FŰTÉS- CSOK igénybe vehető nem
- Tetőtér beépíthető nem
- Építés éve 2019
- Klíma nem
- Szigetelt nem
A+++
A++
A+
A
B
C
D
E
F
G
H
I
Az ingatlan leírása
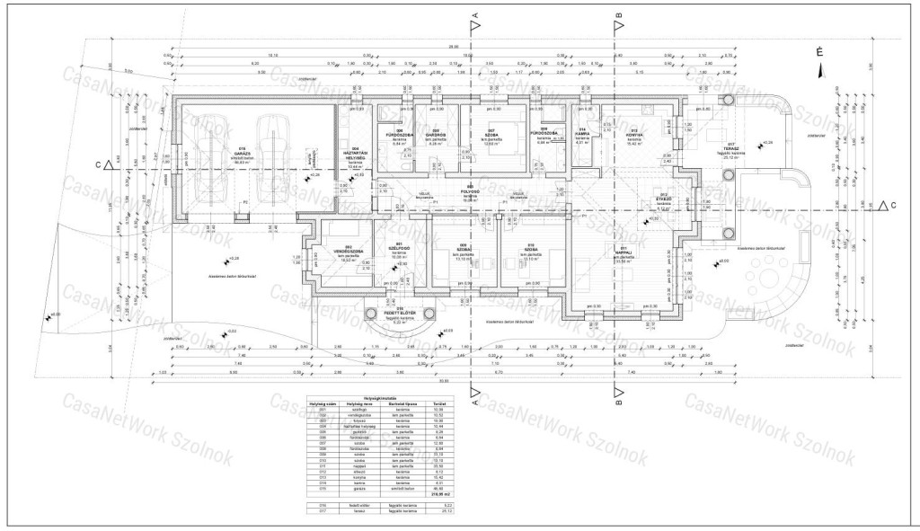
KÜLÖNLEGES AJÁNLAT a szolnoki CasaNetWork Ingatlaniroda kínálatában! Ha egy igazán
harmonikus, minden részletében átgondolt családi otthont keres
Szolnok legelőkelőbb városrészében, akkor ez a ház Önre vár. A 2019-ben, egyedi tervek alapján épült mediterrán stílusú
családi ház a Rózsadomb csendes utcájában
található, 218 m²-es lakótérrel és 1170
m²-es parkosított telekkel.Egy modern,
energiatakarékos, mégis meleg hangulatú otthon, ahol a praktikum
és az elegancia kéz a kézben jár.A tágas, napfényes
amerikai konyhás nappali és étkező a ház
központi tere: itt találkozik a család, és itt
zajlanak a közös pillanatok.
A házban négy
hálószoba, két fürdőszoba és egy
külön gardrób kapott helyet, így a kényelmes
élettér nagyobb család számára is biztosított.
A belső
terek letisztultak, klasszikus stílusban berendezettek – a
természetes anyagok és a világos színek nyugalmat és harmóniát
sugároznak.A nappaliból kilépve
a 25 m²-es fedett terasz és a gondozott,
parkosított kert vár, ahol medence, kerti sütögető
és kosárpálya teszi teljessé a családi
életet.
A 47 m²-es, duplaállásos garázs
műgyantás padlóval és elektromos autó-töltési
lehetőséggel rendelkezik.A ház műszaki
tartalma a modern kényelmet szolgálja:* hőszivattyús
fűtés-hűtés mennyezeti és padló rendszeren,
helyiségenként szabályozható hőmérséklettel* 10 kW-os
napelemrendszer szaldós elszámolással, mely az egész éves
energiafogyasztást fedezi* 20 cm
külső hőszigetelés, 40 cm ásványgyapot tetőszigetelés,
fa nyílászárók két rétegű, melegperemes üvegezéssel* automata
zsaluzia rendszer, automatikus kert- és kültéri
világítás* 2 zónás
riasztórendszer, 10 kamerás biztonsági
megfigyelés, távfelügyelettelEz az ingatlan
tökéletes választás azoknak, akik egy nyugodt,
biztonságos környezetben szeretnének élni, modern
technológiák által támogatott, energiatakarékos otthonban,
ahol a minőség, a funkcionalitás és a természetközeli nyugalom tökéletes harmóniában találkozik. Egy ház, ahol minden
részlet a család kényelmét és a gondtalan mindennapokat
szolgálja – igazi otthon a Rózsadomb szívében.Amennyiben ez az eladó szolnoki exluzív családi ház felkeltette érdeklődését, kérem hívjon bizalommal és tekintse meg, nem fog csalódni!/A hirdetésben szereplő információk a megbízótól kapott adatok alapján készültek./Irodánk teljes körű szolgáltatással áll ügyfelei rendelkezésére: hitelügyintézés, ügyvédi szolgáltatás, ingatlan értékbecslés, energetikai tanúsítvány készítése.CasaNetWork - Ingatlanban otthon vagyunk!
harmonikus, minden részletében átgondolt családi otthont keres
Szolnok legelőkelőbb városrészében, akkor ez a ház Önre vár. A 2019-ben, egyedi tervek alapján épült mediterrán stílusú
családi ház a Rózsadomb csendes utcájában
található, 218 m²-es lakótérrel és 1170
m²-es parkosított telekkel.Egy modern,
energiatakarékos, mégis meleg hangulatú otthon, ahol a praktikum
és az elegancia kéz a kézben jár.A tágas, napfényes
amerikai konyhás nappali és étkező a ház
központi tere: itt találkozik a család, és itt
zajlanak a közös pillanatok.
A házban négy
hálószoba, két fürdőszoba és egy
külön gardrób kapott helyet, így a kényelmes
élettér nagyobb család számára is biztosított.
A belső
terek letisztultak, klasszikus stílusban berendezettek – a
természetes anyagok és a világos színek nyugalmat és harmóniát
sugároznak.A nappaliból kilépve
a 25 m²-es fedett terasz és a gondozott,
parkosított kert vár, ahol medence, kerti sütögető
és kosárpálya teszi teljessé a családi
életet.
A 47 m²-es, duplaállásos garázs
műgyantás padlóval és elektromos autó-töltési
lehetőséggel rendelkezik.A ház műszaki
tartalma a modern kényelmet szolgálja:* hőszivattyús
fűtés-hűtés mennyezeti és padló rendszeren,
helyiségenként szabályozható hőmérséklettel* 10 kW-os
napelemrendszer szaldós elszámolással, mely az egész éves
energiafogyasztást fedezi* 20 cm
külső hőszigetelés, 40 cm ásványgyapot tetőszigetelés,
fa nyílászárók két rétegű, melegperemes üvegezéssel* automata
zsaluzia rendszer, automatikus kert- és kültéri
világítás* 2 zónás
riasztórendszer, 10 kamerás biztonsági
megfigyelés, távfelügyelettelEz az ingatlan
tökéletes választás azoknak, akik egy nyugodt,
biztonságos környezetben szeretnének élni, modern
technológiák által támogatott, energiatakarékos otthonban,
ahol a minőség, a funkcionalitás és a természetközeli nyugalom tökéletes harmóniában találkozik. Egy ház, ahol minden
részlet a család kényelmét és a gondtalan mindennapokat
szolgálja – igazi otthon a Rózsadomb szívében.Amennyiben ez az eladó szolnoki exluzív családi ház felkeltette érdeklődését, kérem hívjon bizalommal és tekintse meg, nem fog csalódni!/A hirdetésben szereplő információk a megbízótól kapott adatok alapján készültek./Irodánk teljes körű szolgáltatással áll ügyfelei rendelkezésére: hitelügyintézés, ügyvédi szolgáltatás, ingatlan értékbecslés, energetikai tanúsítvány készítése.CasaNetWork - Ingatlanban otthon vagyunk!