Eladó Ház- házrész
Hirdetéskód: 9293905
OTP Ingatlanpont Csongrád
Felújításhoz személyi kölcsönt keres? Kalkuláljon itt! →284.00 m2
ALAPTERÜLET6
SZOBASZÁMnincs megadva
ÉPÍTÉSGáz (cirkó)
FŰTÉS- CSOK igénybe vehető nem
- Tetőtér beépíthető nem
- Építés éve 2024
- Fűtés Gáz (cirkó)
- Klíma nem
- Szigetelt nem
A+++
A++
A+
A
B
C
D
E
F
G
H
I
Az ingatlan leírása
Eladó exkluzív vendégház Szilvásvárad központi részén, a Szalajka-völgy bejáratától mindössze 400 méterre!
Szilvásvárad legfrekventáltabb pontján, közvetlenül a főút mellett kínálunk megvételre egy mindössze két éve épült, kiemelkedően igényes, 284 m2-es, luxus komfortfokozatú családi házat, amely jelenleg is sikeresen működő vendégházként üzemel. A 1.000 m2-es, gondosan karbantartott telken elhelyezkedő ingatlan páratlan panorámával és tökéletes adottságokkal rendelkezik, így kivételes lehetőséget kínál mind befektetési, mind lakhatási célra.
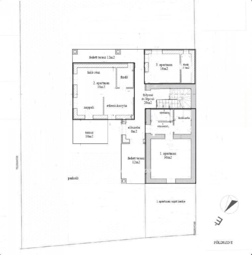
Az épületben hat, teljesen felszerelt apartman kapott helyet, mindegyik saját konyhával, fürdőszobával, valamint erkéllyel vagy terasszal kialakítva. Az apartmanok fűtése egyedileg szabályozható, ez pedig nemcsak a vendégek komfortját növeli, hanem rendkívül gazdaságossá teszi az üzemeltetést is.
A tágas udvarban 5-6 gépkocsi számára kialakított parkolóhely áll rendelkezésre, továbbá az ingatlan előtt egy aszfaltos magánparkoló is a vendégek és a tulajdonos kényelmét szolgálja. Az ingatlan építészeti minősége, elhelyezkedése és igényes kivitelezése együttesen biztosítják, hogy a vendégház magas kihasználtsággal és stabil jövedelemmel működhessen.
Ez az egyedülálló ingatlan azonnal folytatható, bejáratott vendégházként is kiváló opciónak számít Magyarország egyik legnépszerűbb turisztikai célpontján. Ugyanakkor azok számára is tökéletes választás, akik exkluzív családi rezidenciát szeretnének a Bükk hegység lenyűgöző természeti környezetében, kivételes nyugalmat és inspiráló panorámát élvezve.
Szilvásvárad legfrekventáltabb pontján, közvetlenül a főút mellett kínálunk megvételre egy mindössze két éve épült, kiemelkedően igényes, 284 m2-es, luxus komfortfokozatú családi házat, amely jelenleg is sikeresen működő vendégházként üzemel. A 1.000 m2-es, gondosan karbantartott telken elhelyezkedő ingatlan páratlan panorámával és tökéletes adottságokkal rendelkezik, így kivételes lehetőséget kínál mind befektetési, mind lakhatási célra.
Az épületben hat, teljesen felszerelt apartman kapott helyet, mindegyik saját konyhával, fürdőszobával, valamint erkéllyel vagy terasszal kialakítva. Az apartmanok fűtése egyedileg szabályozható, ez pedig nemcsak a vendégek komfortját növeli, hanem rendkívül gazdaságossá teszi az üzemeltetést is.
A tágas udvarban 5-6 gépkocsi számára kialakított parkolóhely áll rendelkezésre, továbbá az ingatlan előtt egy aszfaltos magánparkoló is a vendégek és a tulajdonos kényelmét szolgálja. Az ingatlan építészeti minősége, elhelyezkedése és igényes kivitelezése együttesen biztosítják, hogy a vendégház magas kihasználtsággal és stabil jövedelemmel működhessen.
Ez az egyedülálló ingatlan azonnal folytatható, bejáratott vendégházként is kiváló opciónak számít Magyarország egyik legnépszerűbb turisztikai célpontján. Ugyanakkor azok számára is tökéletes választás, akik exkluzív családi rezidenciát szeretnének a Bükk hegység lenyűgöző természeti környezetében, kivételes nyugalmat és inspiráló panorámát élvezve.