Eladó Ház- házrész
Hirdetéskód: 9305178
Dunaharaszti Bocskai utca 10 - OTP Ingatlanpont Iroda
Felújításhoz személyi kölcsönt keres? Kalkuláljon itt! →
Ez a hirdetés megfelelhet a FIX 3%-os programnak.
Tudj meg többet a részletekről itt.
117.00 m2
ALAPTERÜLET4
SZOBASZÁMnincs megadva
ÉPÍTÉSGáz (cirkó)
FŰTÉS- CSOK igénybe vehető nem
- Tetőtér beépíthető nem
- Építés éve 2000
- Fűtés Gáz (cirkó)
- Klíma nem
- Szigetelt nem
A+++
A++
A+
A
B
C
D
E
F
G
H
I
Az ingatlan leírása
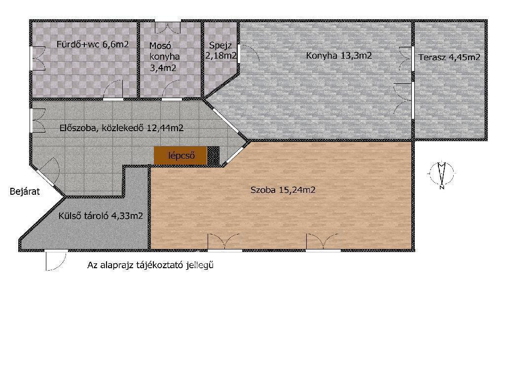
Eladó Szigetszentmiklós egyik legcsendesebb, családbarát részén egy kiváló állapotú, 115 m2-es könnyűszerkezetes ikerház, amely a 2000-es években minőségi anyagok felhasználásával épült.
Az ingatlan tervezése és kivitelezése során nagy hangsúlyt kapott a tartós és biztonságos fa tartószerkezet, a prémium nyílászárók, a minőségi burkolatok, valamint az átgondolt elektromos hálózat. Az egyedi belső elrendezésnek köszönhetően a terek maximálisan kihasználhatók, vagy szükség szerint átépíthetők. A tágas, jellemzően 10 m2 feletti szobák pedig ideálisak akár egy 4 fős család számára is.
A beépített szekrények rengeteg tárolóhelyet biztosítanak, így a mindennapi élet kényelmes és rendezett lehet. Az egyedileg gyártott, hőszigetelt üvegezésű nyílászárók tovább növelik az otthon komfortját.
A fűtésről gáz-cirkó gondoskodik, amelyet két inverteres klíma egészít ki, így a fűtési-hűtési költségek kedvezően alakulnak:
Villany: kb. 13.000 Ft Gáz átalány: kb. 20.000 Ft
A kert részét képező, kb 15 m2-es szaletli és a kerti tűzrakóhely igazi szabadtéri oázist teremtenek, ahol a jó idő beköszöntével élmény a kikapcsolódás. A kertben 4 körös automata öntözőrendszer működik, az elektromos kapu pedig kényelmes behajtást biztosít. Az épület részét képezi egy több mint 4 m2-es külső tároló, amely alkalmas a kerti eszközök vagy szezonális holmik, szerszámok elhelyezésére.
A környék kiváló infrastruktúrával rendelkezik: bevásárlóközpontok, egészségügyi intézmények, óvodák és iskolák könnyen elérhetők. Szigetszentmiklós dinamikusan fejlődő városrésze ideális választás mindazoknak, akik nyugodt környezetben, mégis mindenhez közel szeretnének élni.
Ez az ingatlan remek választás azoknak, akik egy jól megépített, gondosan karbantartott, azonnal költözhető otthont keresnek.
Az OTP Bankcsoport teljes körű ügyintézéssel áll az eladók és a vevők rendelkezésére! A kínálatunkból választott ingatlan finanszírozásához kedvezményes hitelkonstrukciókat kínálunk. Az adásvételi szerződés megkötéséhez igény szerint megbízható ügyvédi közreműködést biztosítunk és segítséget nyújtunk az adásvételhez kapcsolódó ügyek intézéséhez. Referenciaszám: M317112
Az ingatlan tervezése és kivitelezése során nagy hangsúlyt kapott a tartós és biztonságos fa tartószerkezet, a prémium nyílászárók, a minőségi burkolatok, valamint az átgondolt elektromos hálózat. Az egyedi belső elrendezésnek köszönhetően a terek maximálisan kihasználhatók, vagy szükség szerint átépíthetők. A tágas, jellemzően 10 m2 feletti szobák pedig ideálisak akár egy 4 fős család számára is.
A beépített szekrények rengeteg tárolóhelyet biztosítanak, így a mindennapi élet kényelmes és rendezett lehet. Az egyedileg gyártott, hőszigetelt üvegezésű nyílászárók tovább növelik az otthon komfortját.
A fűtésről gáz-cirkó gondoskodik, amelyet két inverteres klíma egészít ki, így a fűtési-hűtési költségek kedvezően alakulnak:
Villany: kb. 13.000 Ft Gáz átalány: kb. 20.000 Ft
A kert részét képező, kb 15 m2-es szaletli és a kerti tűzrakóhely igazi szabadtéri oázist teremtenek, ahol a jó idő beköszöntével élmény a kikapcsolódás. A kertben 4 körös automata öntözőrendszer működik, az elektromos kapu pedig kényelmes behajtást biztosít. Az épület részét képezi egy több mint 4 m2-es külső tároló, amely alkalmas a kerti eszközök vagy szezonális holmik, szerszámok elhelyezésére.
A környék kiváló infrastruktúrával rendelkezik: bevásárlóközpontok, egészségügyi intézmények, óvodák és iskolák könnyen elérhetők. Szigetszentmiklós dinamikusan fejlődő városrésze ideális választás mindazoknak, akik nyugodt környezetben, mégis mindenhez közel szeretnének élni.
Ez az ingatlan remek választás azoknak, akik egy jól megépített, gondosan karbantartott, azonnal költözhető otthont keresnek.
Az OTP Bankcsoport teljes körű ügyintézéssel áll az eladók és a vevők rendelkezésére! A kínálatunkból választott ingatlan finanszírozásához kedvezményes hitelkonstrukciókat kínálunk. Az adásvételi szerződés megkötéséhez igény szerint megbízható ügyvédi közreműködést biztosítunk és segítséget nyújtunk az adásvételhez kapcsolódó ügyek intézéséhez. Referenciaszám: M317112