Eladó Ház- házrész
Hirdetéskód: 9249802
Duna House Óbuda
137.00 m2
ALAPTERÜLET5
SZOBASZÁMnincs megadva
ÉPÍTÉSnincs megadva
FŰTÉS- CSOK igénybe vehető nem
- Tetőtér beépíthető nem
- Építés éve 2026
- Klíma nem
- Szigetelt nem
A+++
A++
A+
A
B
C
D
E
F
G
H
I
Az ingatlan leírása
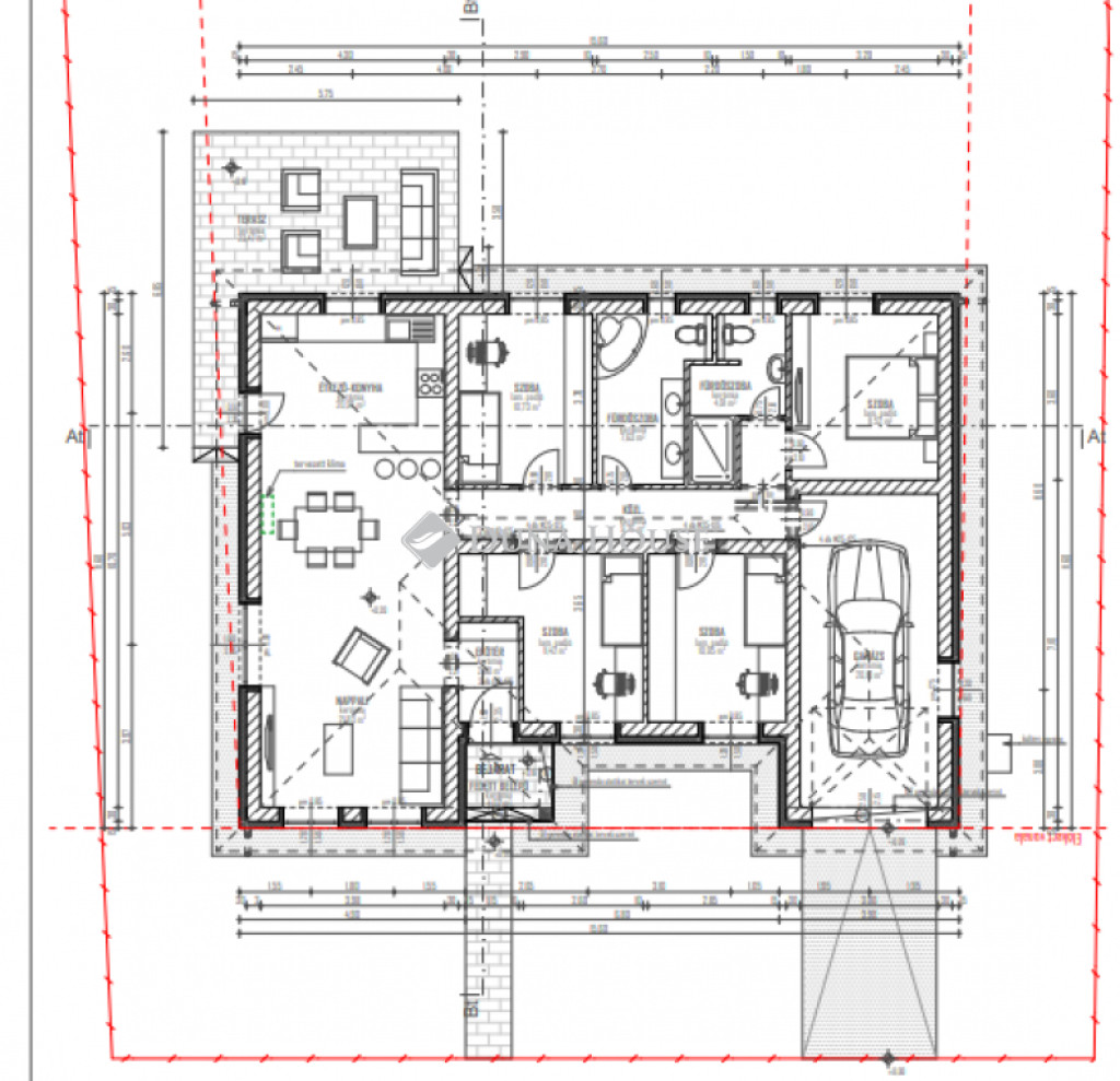
Szigetszentmiklós központi részén, csendes zsákutcában kínálunk megvételre összesen három darab új építésű családi házat. Az ingatlanok modern megjelenésűek, átgondolt elrendezéssel készülnek: négy külön nyíló szoba, amerikai konyhás nappali, valamint két fürdőszoba biztosítja a kényelmes mindennapokat. A házakhoz garázs tartozik, távirányítós kapuval.
A kiváló műszaki tartalom alacsony fenntartási költséget garantál. Háromrétegű üvegezésű műanyag nyílászárók, 15 cm-es külső hőszigetelés, 30 cm-es födémszigetelés és 10 cm-es padlószigetelés került beépítésre. A fűtést padlófűtéses rendszerrel működő, 12 kW-os hőszivattyú biztosítja, 3x16 A elektromos hálózattal. Komplett riasztórendszer, valamint távirányítós garázs- és utcai kapu is a felszereltség része. A burkolatok a vevő igényei szerint választhatók hidegburkolat 10.000 Ft/m², melegburkolat 7.000 Ft/m² értékhatárig.
Irányár: 129 millió Ft / ingatlan
Várható befejezés: 2026. Q2
A kiváló műszaki tartalom alacsony fenntartási költséget garantál. Háromrétegű üvegezésű műanyag nyílászárók, 15 cm-es külső hőszigetelés, 30 cm-es födémszigetelés és 10 cm-es padlószigetelés került beépítésre. A fűtést padlófűtéses rendszerrel működő, 12 kW-os hőszivattyú biztosítja, 3x16 A elektromos hálózattal. Komplett riasztórendszer, valamint távirányítós garázs- és utcai kapu is a felszereltség része. A burkolatok a vevő igényei szerint választhatók hidegburkolat 10.000 Ft/m², melegburkolat 7.000 Ft/m² értékhatárig.
Irányár: 129 millió Ft / ingatlan
Várható befejezés: 2026. Q2