Eladó Ház- házrész
Hirdetéskód: 9324640
OTP Ingatlanpont - Budapest IX. ker., Üllői út 21.
Felújításhoz személyi kölcsönt keres? Kalkuláljon itt! →145.00 m2
ALAPTERÜLET4
SZOBASZÁMnincs megadva
ÉPÍTÉSGáz (cirkó)
FŰTÉS- CSOK igénybe vehető nem
- Tetőtér beépíthető nem
- Építés éve 1995
- Fűtés Gáz (cirkó)
- Klíma nem
- Szigetelt nem
A+++
A++
A+
A
B
C
D
E
F
G
H
I
Az ingatlan leírása
Azonnal költözhető, kétgenerációs családi ház Szigetszentmiklóson
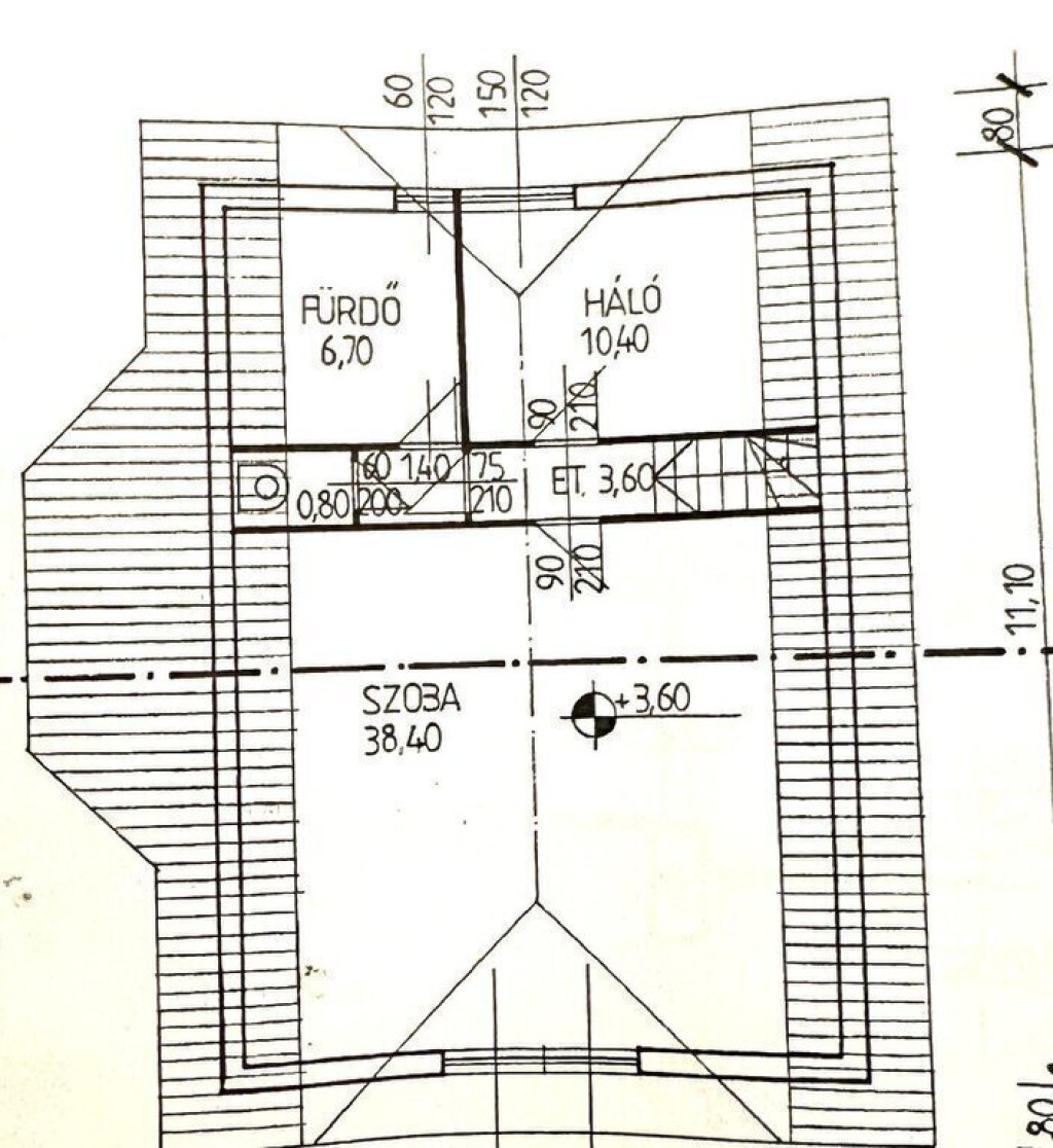
Egy igazi otthon a család minden tagjának! Az emeletes ház alsó szintjén tágas nappali és konyha, két szoba és fürdőszoba várja a családot. A felső szint jelenleg külső lépcsőn közelíthető meg, de a belső lépcső bármikor visszaállítható, így a két szint együtt vagy külön is használható.
A ház minden részlete kényelmet nyújt: műanyag nyílászárók, redőnyök, szúnyoghálók, 5 cm-es szigetelés, fűtés gázcirkó radiátoros rendszerrel, biztonságot elektromos kapu és riasztórendszer biztosítja.
A kert arborétumszerű hangulatú, tágas fedett terasz ideális pihenésre, családi összejövetelekre. Az ingatlan azonnal költözhető, a közeli boltok, iskolák és óvodák pár perc autóútra vannak.
Praktikus, rendezett, otthonos ? ahol a nyugalom és a tágas terek találkoznak. Jöjjön el és nézze meg ezt hangulatos, kellemes lakást rendkívüli adottságokkal! Várom megtisztelő hívását a hét bármely napján! Referenciaszám: M324686
Egy igazi otthon a család minden tagjának! Az emeletes ház alsó szintjén tágas nappali és konyha, két szoba és fürdőszoba várja a családot. A felső szint jelenleg külső lépcsőn közelíthető meg, de a belső lépcső bármikor visszaállítható, így a két szint együtt vagy külön is használható.
A ház minden részlete kényelmet nyújt: műanyag nyílászárók, redőnyök, szúnyoghálók, 5 cm-es szigetelés, fűtés gázcirkó radiátoros rendszerrel, biztonságot elektromos kapu és riasztórendszer biztosítja.
A kert arborétumszerű hangulatú, tágas fedett terasz ideális pihenésre, családi összejövetelekre. Az ingatlan azonnal költözhető, a közeli boltok, iskolák és óvodák pár perc autóútra vannak.
Praktikus, rendezett, otthonos ? ahol a nyugalom és a tágas terek találkoznak. Jöjjön el és nézze meg ezt hangulatos, kellemes lakást rendkívüli adottságokkal! Várom megtisztelő hívását a hét bármely napján! Referenciaszám: M324686