Eladó Ház- házrész
Hirdetéskód: 9193456

-

FIX 3% Program

Ez a hirdetés megfelelhet a FIX 3%-os programnak.
Tudj meg többet a részletekről itt.

97 m2
ALAPTERÜLET
3
SZOBASZÁM
Tégla
ÉPÍTÉS
Gáz (cirkó)
FŰTÉS
  • CSOK igénybe vehető igen
  • Ingatlan komfort Összkomfortos
  • Parkolási lehetőség Udvari beálló
  • Építés éve 2025
  • Fűtés Gáz (cirkó)
  • Építőanyag Tégla
  • Klíma igen
  • Szigetelt igen
Energetikai besorolás: Nincs meghatározva
A+++
A++
A+
A
B
C
D
E
F
G
H
I

Az ingatlan leírása

ÚJ ÉPÍTÉSŰ, CSENDES KERTVÁROSI SORHÁZI LAKÁSOK SZIGETSZENTMÁRTONBAN, A DUNA KÖZELÉBEN!
Szeretne egy modern, energiatakarékos otthont csendes, zöldövezeti környezetben? Akkor ez a szigetszentmártoni új építésű sorházi lakás tökéletes választás lehet Önnek!


Főbb jellemzők:
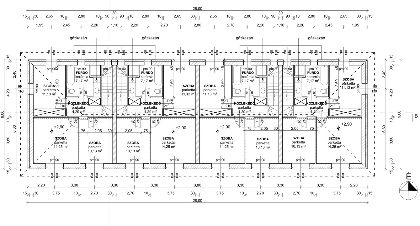
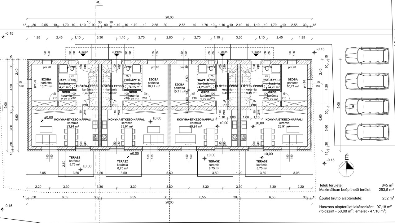
- 97 m² hasznos alapterület – Kényelmes, két szintes elrendezés
- 4 szoba – Ideális családok számára
- Kiváló minőségű építés – Téglafalazat, Silka hanggátló téglafal a lakások között (nincs áthallás!)
- Energihatékony szigetelés – 10 cm lábazati, 10 cm lépésálló aljzati, 15 cm homlokzati, 30 cm födém
- Modern fűtési rendszer – Gázkazán, padlófűtés + nagyteljesítményű hűtő-fűtő klíma
- Prémium nyílászárók – 3 rétegű üvegezésű műanyag ablakok
- telek – 293 m² vagy 122 m²-es, tökéletes kikapcsolódásra
- Térkövezett parkoló – Kényelmes és rendezett környezet



Lakások:
1. lakás: 197nm telekkel - 67,9M ft.-  ELADVA
2. lakás: 122nm telekkel - 64,9M ft.-
3. lakás: 122nm telekkel - 64,9M ft.-
4. lakás: 293nm telekkel - 72,9M ft.-


 Elhelyezkedés:
Szigetszentmárton Budapesttől mindössze 30 km-re található, könnyen elérhető HÉV-vel, Volánbusszal vagy autóval. A Duna-part közelsége páratlan lehetőséget kínál horgászatra, kirándulásra és pihenésre!


 Környék és infrastruktúra:
- Iskola, óvoda, közért, posta, gyógyszertár, orvosi rendelő, autószerviz, virágüzlet és szépségszalon a közelben
- Hajókikötő és szabadstrand a Duna-parton
- Zöldövezeti, családbarát környezet, összetartó közösség


 CSOK IGÉNYBE VEHETŐ!


Ne maradjon le erről a fantasztikus lehetőségről! Keressen bizalommal további információért és megtekintésért! 

Térkép

A hirdető elérhetősége

Ingatlan Sziget Ingatlan és Hitelközvetítő Iroda

+36 20 227