Eladó Ház- házrész
Hirdetéskód: 8560325

Fővállalkozó Balla és Balla Kft

Felújításhoz személyi kölcsönt keres? Kalkuláljon itt! →
FIX 3% Program

Ez a hirdetés megfelelhet a FIX 3%-os programnak.
Tudj meg többet a részletekről itt.

93.00 m2
ALAPTERÜLET
3
SZOBASZÁM
nincs megadva
ÉPÍTÉS
nincs megadva
FŰTÉS
  • CSOK igénybe vehető nem
  • Tetőtér beépíthető nem
  • Építés éve 2023
  • Klíma nem
  • Szigetelt nem
Energetikai besorolás: Nincs meghatározva
A+++
A++
A+
A
B
C
D
E
F
G
H
I

Az MBH Bank személyi kölcsön ajánlata

Fizetett hirdetés
1 millió Ft
6 évre
20 585 Ft/hó
THM: 14.5%
Részletek →
2 millió Ft
6 évre
41 169 Ft/hó
THM: 14.5%
Részletek →
3 millió Ft
6 évre
61 754 Ft/hó
THM: 14.5%
Részletek →

A tájékoztatás nem teljes körű és nem minősül ajánlattételnek.

Az ingatlan leírása

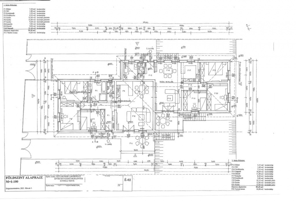
Szigetszentmártonban, Budapest déli agglomerációjában, mindössze 20 km-re a fővárostól, a Ráckeve–Soroksári Duna-parton kiváló helyen épülő ikerházakban még öt lakás leköthető. A lakások 93 és 89,45 nm hasznos alapterületűek, 14,25 és 10,58 nm nyitott terasszal, valamint 380 nm-es telekrésszel. Három szobával, tágas előtérrel, külön WC-vel, fürdőszobával, amerikai konyhás étkezővel és nagy nappalival rendelkeznek, a terasz pedig remek helyszín a szabadban való étkezésre. A házak téglából épülnek, 15 cm-es hőszigeteléssel, betoncserép tetőfedéssel. A szobák laminált parkettát, a hidegburkolatos helyiségek járólapot kapnak. A fűtést és meleg vizet gázcirkó biztosítja radiátoros és padlófűtéses rendszerrel, így energiatakarékos a fenntartás. Az átadás 2025 végére várható. A környék csendes, barátságos, a településen iskola, óvoda és jó bevásárlási lehetőségek találhatók, míg Ráckevén gimnázium, nagy üzletek, uszoda és szórakozási lehetőségek várják a lakókat. A közlekedés egyszerű a közeli HÉV- és buszmegállóval, a főváros gyorsan elérhető. A kivitelező cég megbízható, sok minőségi, reklamációmentes házat épített a környéken. Fiataloknak és családoknak ideális választás, kedvezményes hitelekkel, tapasztalt hitelügyintézői és jogi háttérrel.

Térkép

A hirdető elérhetősége

Fővállalkozó Balla és Balla Kft

Pataky Sándor
+36 70 320