Eladó Ház- házrész
Hirdetéskód: 9226922
Dunaharaszti, Dózsa György út 45. (OTPIP)
120 m2
ALAPTERÜLET5
SZOBASZÁMnincs megadva
ÉPÍTÉSElektromos
FŰTÉS- CSOK igénybe vehető nem
- Tetőtér beépíthető nem
- Építés éve 1986
- Fűtés Elektromos
- Klíma nem
- Szigetelt nem
A+++
A++
A+
A
B
C
D
E
F
G
H
I
Az ingatlan leírása
Eladó közvetlen Duna-parti ház Szigetszentmártonban. Ritka lehetőség vízparti otthonra!
Álmodott már arról, hogy reggelente a Dunára néző teraszon kávézik, miközben a napfelkeltében gyönyörködik? Most valóra válthatja!
Szigetszentmárton csendes, idilli részén, eladó egy kiváló állapotú, kétszintes, 5 szobás családi ház / nyaraló, közvetlen vízparti elhelyezkedéssel és saját stéggel!
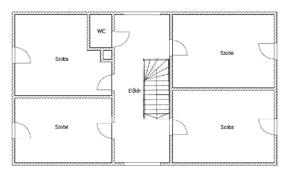
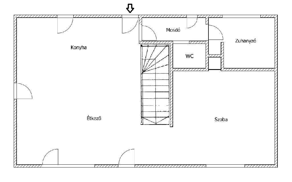
A ház jellemzői: 120 m2 hasznos alapterület, két szinten. Földszint (60 m2): tágas nappali, étkező, amerikai konyha, fürdőszoba épített zuhanyzóval, külön WC, egyedi tölgyfa lépcső. Emelet (60 m2): 4 hálószoba, WC, előtér. 60 m2-es panorámás terasz a Dunára. Saját stég, horgászat, csónakázás, pihenés közvetlenül a kert végéből. Kényelmi extrák: Fedett kocsibeálló 2 autónak, plusz 2 térkövezett parkoló a ház mellett, 20 m2-es tároló / fészer. Gondozott kert automata locsolórendszerrel. Elektromos kapu, kiépített riasztórendszer. Internet, kábel TV, heti hulladékszállítás. Műszaki állapot: A ház 9 éve teljes körű felújításon esett át (új elektromos rendszer, vízvezetékek, fűtés). Minőségi cseréptető, kelet-nyugati tájolás. 3 rétegű, fa nyílászárók szúnyoghálóval. Klíma a nappaliban és a déli fekvésű hálókban (összesen 3 db hűtő-fűtő klíma). Szabványos kémény kiépítve. IKEA konyhabútor, beépített mosogatógép, mosógép, elektromos főzőlap és sütő. Azonnal költözhető állapotban, nincs szükség felújításra vagy várakozásra! Ideális választás mindazoknak, akik egy nyugodt, természetközeli, vízparti életformára vágynak, legyen szó állandó otthonról vagy hétvégi nyaralóról. Ne hagyja ki ezt az egyedülálló lehetőséget, hívjon most és tekintse meg ezt a páratlan ingatlant személyesen!
Álmodott már arról, hogy reggelente a Dunára néző teraszon kávézik, miközben a napfelkeltében gyönyörködik? Most valóra válthatja!
Szigetszentmárton csendes, idilli részén, eladó egy kiváló állapotú, kétszintes, 5 szobás családi ház / nyaraló, közvetlen vízparti elhelyezkedéssel és saját stéggel!
A ház jellemzői: 120 m2 hasznos alapterület, két szinten. Földszint (60 m2): tágas nappali, étkező, amerikai konyha, fürdőszoba épített zuhanyzóval, külön WC, egyedi tölgyfa lépcső. Emelet (60 m2): 4 hálószoba, WC, előtér. 60 m2-es panorámás terasz a Dunára. Saját stég, horgászat, csónakázás, pihenés közvetlenül a kert végéből. Kényelmi extrák: Fedett kocsibeálló 2 autónak, plusz 2 térkövezett parkoló a ház mellett, 20 m2-es tároló / fészer. Gondozott kert automata locsolórendszerrel. Elektromos kapu, kiépített riasztórendszer. Internet, kábel TV, heti hulladékszállítás. Műszaki állapot: A ház 9 éve teljes körű felújításon esett át (új elektromos rendszer, vízvezetékek, fűtés). Minőségi cseréptető, kelet-nyugati tájolás. 3 rétegű, fa nyílászárók szúnyoghálóval. Klíma a nappaliban és a déli fekvésű hálókban (összesen 3 db hűtő-fűtő klíma). Szabványos kémény kiépítve. IKEA konyhabútor, beépített mosogatógép, mosógép, elektromos főzőlap és sütő. Azonnal költözhető állapotban, nincs szükség felújításra vagy várakozásra! Ideális választás mindazoknak, akik egy nyugodt, természetközeli, vízparti életformára vágynak, legyen szó állandó otthonról vagy hétvégi nyaralóról. Ne hagyja ki ezt az egyedülálló lehetőséget, hívjon most és tekintse meg ezt a páratlan ingatlant személyesen!