Eladó Ház- házrész
Hirdetéskód: 9036566
GDN Ingatlanhálózat - SZIGET
Ez a hirdetés megfelelhet a FIX 3%-os programnak.
Tudj meg többet a részletekről itt.
96 m2
ALAPTERÜLET4
SZOBASZÁMnincs megadva
ÉPÍTÉSGáz (cirkó)
FŰTÉS- CSOK igénybe vehető nem
- Tetőtér beépíthető nem
- Fűtés Gáz (cirkó)
- Klíma nem
- Szigetelt nem
A+++
A++
A+
A
B
C
D
E
F
G
H
I
Az ingatlan leírása
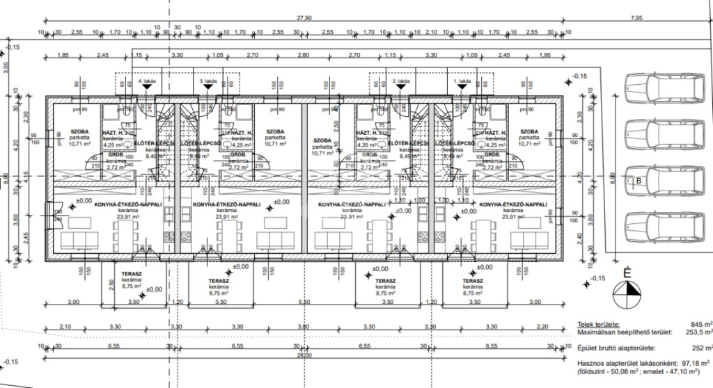
Szigetszentmárton új építésű házai szomszédságában, négylakásos sorház 3-as számú lakása eladó, 293 m2 saját használatú telekrésszel.
KIVÁLÓ KIVITELEZŐ, VERSENYKÉPES ÁRON, KIVÁLÓ OTTHONT AJÁNL ÖNNEK! CSOK +, SAJÁT KERT!
Az otthon nettó 97,90 nm, ehhez 8,75 nm terasz kapcsolódik.
Helyiségei:
Földszint 50,8 nm+8,75 nm terasz.
– konyha/étkező/nappali 23,91 nm
– szoba 10,71 nm
– háztartási helyiség zuhanyzóval, toalettel 4,25 nm
– előtér 8,49 nm
– gardrób 2,72 nm
Emelet 47,10 nm
– közlekedő 4,29 nm
– fürdőszoba 7,17 nm
– szoba 14,25 nm
– szoba 11,13 nm
– szoba 10,13 nm
MŰSZAKI TARTALOM:
-vasalt beton sáv alap
-Porotherm tégla falazat
-nyílászárói (ablakok) műanyag szerkezetűek 6 légkamrás 3 rétegű hőszigetelt üvegezéssel.
-hűtő fűtő klíma
-10 cm Dryvit szigetelés
-lábazaton 10 cm XPS
-beton cserép fedésű tető
-lakások között SILKA hanggátló tégla falazat
-kombi cirkó, padló fűtés az egész lakásban
-választható burkolatok
-saját autóbeálló
A sorházi lakások árai:
1. sz lakás 97 nm lakótér 197 nm telekrész, ára: 74.900.000 Ft ELKELT
2. sz lakás 97 nm lakótér 122 nm telekrész, ára: 64.900.000 Ft
ELKELET
3. sz lakás 97 nm lakótér 122 nm telekrész, ára: 69.900.000 Ft
4. sz lakás 97 nm lakótér 293 nm telekrész, ára: 74.900.000 Ft
Az ingatlant kiváló referenciákkal rendelkező helyi tőkeerős kivitelező építi meg, várható birtokba-adás 2025 nyara.
Szigetszentmárton a Csepel-sziget középső részén a Ráckevei-Duna és a Duna között terül el , Budapesttől 35 kilométerre . A település megközelíthető a Ráckevei HÉV-vel , gépkocsival az 5101-es számú úton ,illetve menetrend szerinti buszjárattal Csepelről. A településen igazi csendben , kellemes friss levegővel élvezheti a mindennapokat , pár méteren belül minden megtalálható , Pl : Óvoda,iskola, orvosi rendelő , buszmegálló játszótér , benzinkút, bisztró , hentes, közért, szépségipari szolgáltatások és a csodálatos Duna part , mely fürdésre,horgászatra vagy számos sportolási lehetőségre is alkalmas.
Várom megtisztelő hívását!
FINANSZÍROZÁS:
Nálunk mindent egy helyen intézhet:
- hivatalos ingatlanközvetítés;
- szakszerű jogi képviselet;
- profi CSOK-PLUSZ, és hitelügyintézés: 16 Bank, több mint 100 konstrukció;
A részletes adatvédelmi tájékoztató folyamatosan elérhető weboldalunkon. ...TOVÁBBI, TÖBBEZRES INGATLAN KÍNÁLAT: - GDN azonosító: 380105
KIVÁLÓ KIVITELEZŐ, VERSENYKÉPES ÁRON, KIVÁLÓ OTTHONT AJÁNL ÖNNEK! CSOK +, SAJÁT KERT!
Az otthon nettó 97,90 nm, ehhez 8,75 nm terasz kapcsolódik.
Helyiségei:
Földszint 50,8 nm+8,75 nm terasz.
– konyha/étkező/nappali 23,91 nm
– szoba 10,71 nm
– háztartási helyiség zuhanyzóval, toalettel 4,25 nm
– előtér 8,49 nm
– gardrób 2,72 nm
Emelet 47,10 nm
– közlekedő 4,29 nm
– fürdőszoba 7,17 nm
– szoba 14,25 nm
– szoba 11,13 nm
– szoba 10,13 nm
MŰSZAKI TARTALOM:
-vasalt beton sáv alap
-Porotherm tégla falazat
-nyílászárói (ablakok) műanyag szerkezetűek 6 légkamrás 3 rétegű hőszigetelt üvegezéssel.
-hűtő fűtő klíma
-10 cm Dryvit szigetelés
-lábazaton 10 cm XPS
-beton cserép fedésű tető
-lakások között SILKA hanggátló tégla falazat
-kombi cirkó, padló fűtés az egész lakásban
-választható burkolatok
-saját autóbeálló
A sorházi lakások árai:
1. sz lakás 97 nm lakótér 197 nm telekrész, ára: 74.900.000 Ft ELKELT
2. sz lakás 97 nm lakótér 122 nm telekrész, ára: 64.900.000 Ft
ELKELET
3. sz lakás 97 nm lakótér 122 nm telekrész, ára: 69.900.000 Ft
4. sz lakás 97 nm lakótér 293 nm telekrész, ára: 74.900.000 Ft
Az ingatlant kiváló referenciákkal rendelkező helyi tőkeerős kivitelező építi meg, várható birtokba-adás 2025 nyara.
Szigetszentmárton a Csepel-sziget középső részén a Ráckevei-Duna és a Duna között terül el , Budapesttől 35 kilométerre . A település megközelíthető a Ráckevei HÉV-vel , gépkocsival az 5101-es számú úton ,illetve menetrend szerinti buszjárattal Csepelről. A településen igazi csendben , kellemes friss levegővel élvezheti a mindennapokat , pár méteren belül minden megtalálható , Pl : Óvoda,iskola, orvosi rendelő , buszmegálló játszótér , benzinkút, bisztró , hentes, közért, szépségipari szolgáltatások és a csodálatos Duna part , mely fürdésre,horgászatra vagy számos sportolási lehetőségre is alkalmas.
Várom megtisztelő hívását!
FINANSZÍROZÁS:
Nálunk mindent egy helyen intézhet:
- hivatalos ingatlanközvetítés;
- szakszerű jogi képviselet;
- profi CSOK-PLUSZ, és hitelügyintézés: 16 Bank, több mint 100 konstrukció;
A részletes adatvédelmi tájékoztató folyamatosan elérhető weboldalunkon. ...TOVÁBBI, TÖBBEZRES INGATLAN KÍNÁLAT: - GDN azonosító: 380105