Eladó Ház- házrész
Hirdetéskód: 9310823
OTP Ingatlanpont Csongrád
Felújításhoz személyi kölcsönt keres? Kalkuláljon itt! →85.00 m2
ALAPTERÜLET2
SZOBASZÁMnincs megadva
ÉPÍTÉSGáz (héra)
FŰTÉS- CSOK igénybe vehető nem
- Tetőtér beépíthető nem
- Építés éve 1985
- Fűtés Gáz (héra)
- Klíma nem
- Szigetelt nem
A+++
A++
A+
A
B
C
D
E
F
G
H
I
Az ingatlan leírása
Eladó családi ház Szentesen, a városközpont közelében!!
Szentesen, a belvároshoz közel kínálunk megvételre egy 85 m2 hasznos alapterületű családi házat, amely 769 m2-es telken helyezkedik el.
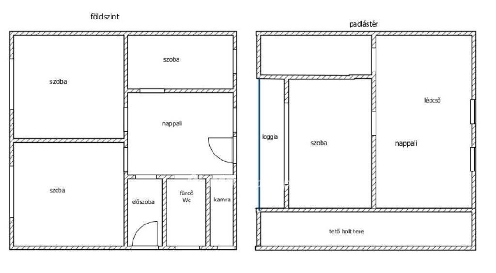
A földszinten 2,5 szoba, fürdőszoba, tágas előszoba (innen vezet feljárat a padlástérbe) található.
A padlástérben 1 szoba és egy tágas hall van, amelyből igény szerint könnyedén kialakítható még egy plusz szoba is akár.
A ház mögött egy hangulatos kis házban kapott helyet a konyha, valamint innen működik a fűtésrendszer is.
Az udvarban van autóbeállásra alkalmas féltető, ólak és melléképületek, egy kis épület, amely korábban üzlethelyiségként funkcionált.
A gondozott előkertbe ültetett növényekkel csillapították az utca zaját.
Az ingatlan tehermentes, de jelenlegi állapota miatt CSAK készpénzes vevők jelentkezését várjuk!
Az adásvételi szerződés megkötéséhez igény szerint ügyvédet biztosítunk.
Irodáink Szentes, Petőfi utca 12. (a buszmegálló felől) és Csongrád, Fő utca 54. szám alatt várja a személyes érdeklődőket.
Szentesen, a belvároshoz közel kínálunk megvételre egy 85 m2 hasznos alapterületű családi házat, amely 769 m2-es telken helyezkedik el.
A földszinten 2,5 szoba, fürdőszoba, tágas előszoba (innen vezet feljárat a padlástérbe) található.
A padlástérben 1 szoba és egy tágas hall van, amelyből igény szerint könnyedén kialakítható még egy plusz szoba is akár.
A ház mögött egy hangulatos kis házban kapott helyet a konyha, valamint innen működik a fűtésrendszer is.
Az udvarban van autóbeállásra alkalmas féltető, ólak és melléképületek, egy kis épület, amely korábban üzlethelyiségként funkcionált.
A gondozott előkertbe ültetett növényekkel csillapították az utca zaját.
Az ingatlan tehermentes, de jelenlegi állapota miatt CSAK készpénzes vevők jelentkezését várjuk!
Az adásvételi szerződés megkötéséhez igény szerint ügyvédet biztosítunk.
Irodáink Szentes, Petőfi utca 12. (a buszmegálló felől) és Csongrád, Fő utca 54. szám alatt várja a személyes érdeklődőket.