Eladó Ház- házrész
Hirdetéskód: 9329115
OTP Ingatlanpont Csongrád
Felújításhoz személyi kölcsönt keres? Kalkuláljon itt! →
Ez a hirdetés megfelelhet a FIX 3%-os programnak.
Tudj meg többet a részletekről itt.
82.00 m2
ALAPTERÜLET2
SZOBASZÁMnincs megadva
ÉPÍTÉSGáz (cirkó)
FŰTÉS- CSOK igénybe vehető nem
- Tetőtér beépíthető nem
- Építés éve 1980
- Fűtés Gáz (cirkó)
- Klíma nem
- Szigetelt nem
A+++
A++
A+
A
B
C
D
E
F
G
H
I
Az ingatlan leírása
Csak az Otp Ingatlanpontnál!!!
Eladó családi ház Szentesen - csendes, nyugodt környezetben.
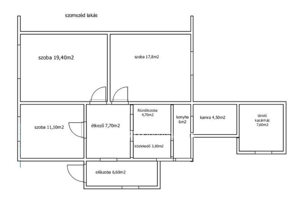
Eladásra kínálunk Csongrád-Csanád megyében, a Kiséri városrészben egy 82 m2 alapterületű, téglaépítésű felűjítandó családi házat. Az ingatlan belső portán helyezkedik el, így a forgalomtól mentes udvar biztosítja a nyugodt, csendes környezetet.
A Kádár-kocka típusú, iker jellegű ház praktikus elrendezésű: 2,5 szoba, konyha, étkező, fürdőszoba és előszoba került kialakításra.
A fűtési rendszer korszerűsítése 2 évvel ezelőtt történt: egy modern kombi gázkazán került beépítésre, emellett vegyestüzelésű kazán is rendelkezésre áll. A melegvíz ellátásról villanybojler gondoskodik.
Az épület tetőszerkezete jó állapotú, a falak szigeteltek, a ház magas lábazatra épült.
A villanyhálózat, a nyílászárók, és a fürdőszoba felújítása az új tulajdonosra vár.
A telek osztatlan közös tulajdon. A közös bejárón belül egy külön kerítéssel leválasztott, 500 m2-es udvar tartozik az ingatlanhoz, amely kiváló lehetőséget kínál kertészkedésre, pihenésre vagy akár családi kikapcsolódásra.
Ideális választás mindazok számára, akik nyugodt, barátságos környezetben keresnek otthont. Elsősorban készpénzes vevők jelentkezését várjuk, de extra fedezet bevonásával hitelezhető.
Bölcsöde, óvoda, iskola, és a városközpont kb.800 méter.
Irodáink Szentes, Petőfi utca 12. A buszmegálló felől, és Csongrád, Fő utca 54. szám alatt várja a személyes érdeklődőket. ***VÁLASSZUK KI EGYÜTT AZ ÖNNEK LEGMEGFELELŐBB AJÁNLATOT! BANKI SORBAN ÁLLÁS NÉLKÜL! ***
Az energetikai tanúsítvány készítése folyamatban van, amint rendelkezésre áll, úgy azzal a hirdetés frissítésre kerül.
Eladó családi ház Szentesen - csendes, nyugodt környezetben.
Eladásra kínálunk Csongrád-Csanád megyében, a Kiséri városrészben egy 82 m2 alapterületű, téglaépítésű felűjítandó családi házat. Az ingatlan belső portán helyezkedik el, így a forgalomtól mentes udvar biztosítja a nyugodt, csendes környezetet.
A Kádár-kocka típusú, iker jellegű ház praktikus elrendezésű: 2,5 szoba, konyha, étkező, fürdőszoba és előszoba került kialakításra.
A fűtési rendszer korszerűsítése 2 évvel ezelőtt történt: egy modern kombi gázkazán került beépítésre, emellett vegyestüzelésű kazán is rendelkezésre áll. A melegvíz ellátásról villanybojler gondoskodik.
Az épület tetőszerkezete jó állapotú, a falak szigeteltek, a ház magas lábazatra épült.
A villanyhálózat, a nyílászárók, és a fürdőszoba felújítása az új tulajdonosra vár.
A telek osztatlan közös tulajdon. A közös bejárón belül egy külön kerítéssel leválasztott, 500 m2-es udvar tartozik az ingatlanhoz, amely kiváló lehetőséget kínál kertészkedésre, pihenésre vagy akár családi kikapcsolódásra.
Ideális választás mindazok számára, akik nyugodt, barátságos környezetben keresnek otthont. Elsősorban készpénzes vevők jelentkezését várjuk, de extra fedezet bevonásával hitelezhető.
Bölcsöde, óvoda, iskola, és a városközpont kb.800 méter.
Irodáink Szentes, Petőfi utca 12. A buszmegálló felől, és Csongrád, Fő utca 54. szám alatt várja a személyes érdeklődőket. ***VÁLASSZUK KI EGYÜTT AZ ÖNNEK LEGMEGFELELŐBB AJÁNLATOT! BANKI SORBAN ÁLLÁS NÉLKÜL! ***
Az energetikai tanúsítvány készítése folyamatban van, amint rendelkezésre áll, úgy azzal a hirdetés frissítésre kerül.