Eladó Ház- házrész
Hirdetéskód: 9310821
OTP Ingatlanpont Csongrád
Felújításhoz személyi kölcsönt keres? Kalkuláljon itt! →152.00 m2
ALAPTERÜLET6
SZOBASZÁMnincs megadva
ÉPÍTÉSGáz (cirkó)
FŰTÉS- CSOK igénybe vehető nem
- Tetőtér beépíthető nem
- Építés éve 1940
- Fűtés Gáz (cirkó)
- Klíma nem
- Szigetelt nem
A+++
A++
A+
A
B
C
D
E
F
G
H
I
Az ingatlan leírása
Szentes városközpontjához közel, a Kisér elején, 2014 m2-es telken eladó egy sokoldalúan hasznosítható ipari ingatlan, amely kiváló választás telephelynek, raktárnak, műhelynek vagy lakás + vállalkozás kombinációjához. Nyilvántartás szerint lakóház, udvar megjelölésű, tehermentes.
Polgári elegancia modern kényelemmel, különleges otthon várja új tulajdonosát!
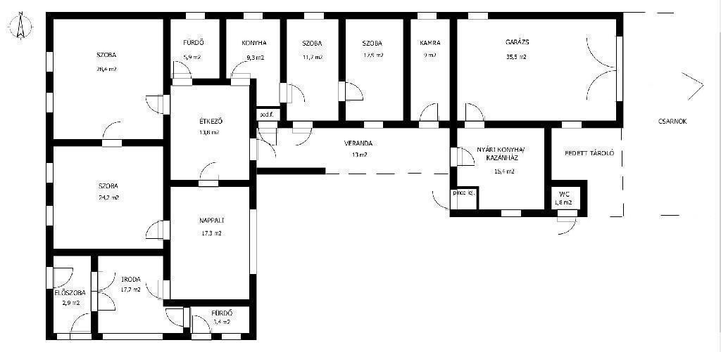
Ez a teljes körűen felújított, 152 m2-es lakóépület a klasszikus polgári építészet időtálló báját ötvözi a mai kor elvárásaival. A tágas, világos terek (4 szoba, nappali, étkező, iroda), a nagy belmagasság és az otthon melegét adó kandalló a századfordulós hangulatot idézik, míg a korszerű műszaki megoldások (hő- és vízszigetelt aljzat, teljes közműfelújítás, víz, szennyvíz, villany, 3 fázis, gáz, hőszigetelt, redőnyös nyílászárók) biztosítják a kényelmet és gazdaságos fenntarthatóságot.
A két fürdőszoba, két konyha, valamint a klíma és a választható fűtési rendszerek (gázkazán és vegyes tüzelésű kazán) tovább növelik a funkcionalitást, így ez az otthon ideális választás nagyobb családok vagy akár két generáció számára is.
A nyári konyhából keresztül jutunk a fűthető, 35 m2-es garázsba, 2,7 méteres belmagassággal és széles, üvegezett ipari ajtóval, amelyhez külön gázóra is tartozik. A műhely mögött egy 256 m2-es, fedett csarnok kapott helyet, amely ideális raktározásra, gyártási tevékenységre, géptárolásra vagy egyéb ipari felhasználásra. A csarnok előtt nagy, betonozott munkaterület található, amely megkönnyíti az árumozgatást és logisztikát.
Az udvar hátsó részében szerelőaknás 75 m2-es műhely áll, amely felett egy külön bejáratú, 72 m2-es, modern tetőtéri lakás került kialakításra. A lakás amerikai konyhás nappalival, külön hálószobával, sarokkádas fürdőszobával és saját gázkazánnal rendelkezik, így kiváló lehetőség szolgálati lakásnak, irodának vagy vendéglakásnak.
Az utcafronton nagy teherbírású, térköves parkoló került kialakításra, így az ingatlan ipari és üzleti célú hasznosítása már meglévő infrastruktúrával biztosított.
Ez a sokoldalú ingatlan ideális választás lehet mindazoknak, akik saját vállalkozásuknak keresnek telephelyet, műhelyt vagy raktárt, és szeretnék mindezt lakhatási lehetőséggel egy helyen megoldani. Az ipari adottságok, a rendezett környezet és a kiváló megközelíthetőség ritka kombinációt kínálnak Szentes egyik legjobb elhelyezkedésű részén.
Az OTP Ingatlanpont kedvezményes pénzügyi konstrukciókkal áll ügyfelei rendelkezésére! VIP-szolgáltatást nyújtunk az OTP-hiteltermékek ügyintézésében. Jogi és pénzügyi segítséget nyújtanak szakértőink, hogy az adásvétel folyamata gördülékeny legyen. Amennyiben a vételár a kérdés, és úgy gondolja még nincs meg az összeg a leendő új otthonra? Lehet, hogy még is rendelkezésére áll a vételár csak még Ön nem is tudja? Tisztában van valóban az anyagi lehetőségeivel? Az áthidaló megoldásokkal? Esetleg csak az az akadály, hogy nem adta el még a saját ingatlanját? Nem gond, a tulajdonosaink, eladóink szívesen megvárják Önt, segítünk a gyors értékesítésben is. Ne maradjon le a vételről, ha már megtalálta a megfelelő új otthont! Szolgáltatásunk ingyenes, kizárólag sikeres értékesítés esetén van megbízási díj fizetési kötelezettség. A vevők is nálunk vannak és lehet az Ön ingatlanjára várnak?! Tudjon meg többet, hívjon bizalommal!
Eladó ingatlanja van? Nincs vevője? Hívjon segítek az értékesítésben!
Kedvező hitelajánlatokkal (Otthon Start Program, Babaváró hitel, CSOK, piaci hitel, és szabadfelhasználású hitel) várjuk jelentkezését. Számos konstrukció közül választhatnak. Irodáink Szentes, Petőfi utca 12. (a buszmegálló felől) és Csongrád, Fő utca 54. szám alatt várja a személyes érdeklődőket. ***VÁLASSZUK KI EGYÜTT AZ ÖNNEK LEGMEGFELELŐBB AJÁNLATOT! BANKI SORBAN ÁLLÁS NÉLKÜL! ***
Polgári elegancia modern kényelemmel, különleges otthon várja új tulajdonosát!
Ez a teljes körűen felújított, 152 m2-es lakóépület a klasszikus polgári építészet időtálló báját ötvözi a mai kor elvárásaival. A tágas, világos terek (4 szoba, nappali, étkező, iroda), a nagy belmagasság és az otthon melegét adó kandalló a századfordulós hangulatot idézik, míg a korszerű műszaki megoldások (hő- és vízszigetelt aljzat, teljes közműfelújítás, víz, szennyvíz, villany, 3 fázis, gáz, hőszigetelt, redőnyös nyílászárók) biztosítják a kényelmet és gazdaságos fenntarthatóságot.
A két fürdőszoba, két konyha, valamint a klíma és a választható fűtési rendszerek (gázkazán és vegyes tüzelésű kazán) tovább növelik a funkcionalitást, így ez az otthon ideális választás nagyobb családok vagy akár két generáció számára is.
A nyári konyhából keresztül jutunk a fűthető, 35 m2-es garázsba, 2,7 méteres belmagassággal és széles, üvegezett ipari ajtóval, amelyhez külön gázóra is tartozik. A műhely mögött egy 256 m2-es, fedett csarnok kapott helyet, amely ideális raktározásra, gyártási tevékenységre, géptárolásra vagy egyéb ipari felhasználásra. A csarnok előtt nagy, betonozott munkaterület található, amely megkönnyíti az árumozgatást és logisztikát.
Az udvar hátsó részében szerelőaknás 75 m2-es műhely áll, amely felett egy külön bejáratú, 72 m2-es, modern tetőtéri lakás került kialakításra. A lakás amerikai konyhás nappalival, külön hálószobával, sarokkádas fürdőszobával és saját gázkazánnal rendelkezik, így kiváló lehetőség szolgálati lakásnak, irodának vagy vendéglakásnak.
Az utcafronton nagy teherbírású, térköves parkoló került kialakításra, így az ingatlan ipari és üzleti célú hasznosítása már meglévő infrastruktúrával biztosított.
Ez a sokoldalú ingatlan ideális választás lehet mindazoknak, akik saját vállalkozásuknak keresnek telephelyet, műhelyt vagy raktárt, és szeretnék mindezt lakhatási lehetőséggel egy helyen megoldani. Az ipari adottságok, a rendezett környezet és a kiváló megközelíthetőség ritka kombinációt kínálnak Szentes egyik legjobb elhelyezkedésű részén.
Az OTP Ingatlanpont kedvezményes pénzügyi konstrukciókkal áll ügyfelei rendelkezésére! VIP-szolgáltatást nyújtunk az OTP-hiteltermékek ügyintézésében. Jogi és pénzügyi segítséget nyújtanak szakértőink, hogy az adásvétel folyamata gördülékeny legyen. Amennyiben a vételár a kérdés, és úgy gondolja még nincs meg az összeg a leendő új otthonra? Lehet, hogy még is rendelkezésére áll a vételár csak még Ön nem is tudja? Tisztában van valóban az anyagi lehetőségeivel? Az áthidaló megoldásokkal? Esetleg csak az az akadály, hogy nem adta el még a saját ingatlanját? Nem gond, a tulajdonosaink, eladóink szívesen megvárják Önt, segítünk a gyors értékesítésben is. Ne maradjon le a vételről, ha már megtalálta a megfelelő új otthont! Szolgáltatásunk ingyenes, kizárólag sikeres értékesítés esetén van megbízási díj fizetési kötelezettség. A vevők is nálunk vannak és lehet az Ön ingatlanjára várnak?! Tudjon meg többet, hívjon bizalommal!
Eladó ingatlanja van? Nincs vevője? Hívjon segítek az értékesítésben!
Kedvező hitelajánlatokkal (Otthon Start Program, Babaváró hitel, CSOK, piaci hitel, és szabadfelhasználású hitel) várjuk jelentkezését. Számos konstrukció közül választhatnak. Irodáink Szentes, Petőfi utca 12. (a buszmegálló felől) és Csongrád, Fő utca 54. szám alatt várja a személyes érdeklődőket. ***VÁLASSZUK KI EGYÜTT AZ ÖNNEK LEGMEGFELELŐBB AJÁNLATOT! BANKI SORBAN ÁLLÁS NÉLKÜL! ***