Eladó Ház- házrész
Hirdetéskód: 9247687
OTP Ingatlanpont Csongrád
152.00 m2
ALAPTERÜLET6
SZOBASZÁMnincs megadva
ÉPÍTÉSnincs megadva
FŰTÉS- CSOK igénybe vehető nem
- Tetőtér beépíthető nem
- Építés éve 1940
- Klíma nem
- Szigetelt nem
A+++
A++
A+
A
B
C
D
E
F
G
H
I
Az ingatlan leírása
Szentes városközpontjához közel, a Kisér elején, 2014 m2-es telken eladó egy sokoldalúan hasznosítható ipari ingatlan, amely kiváló választás telephelynek, raktárnak, műhelynek vagy lakás + vállalkozás kombinációjához. Nyilvántartás szerint lakóház, udvar megjelölésű, tehermentes.
Polgári elegancia modern kényelemmel, különleges otthon várja új tulajdonosát!
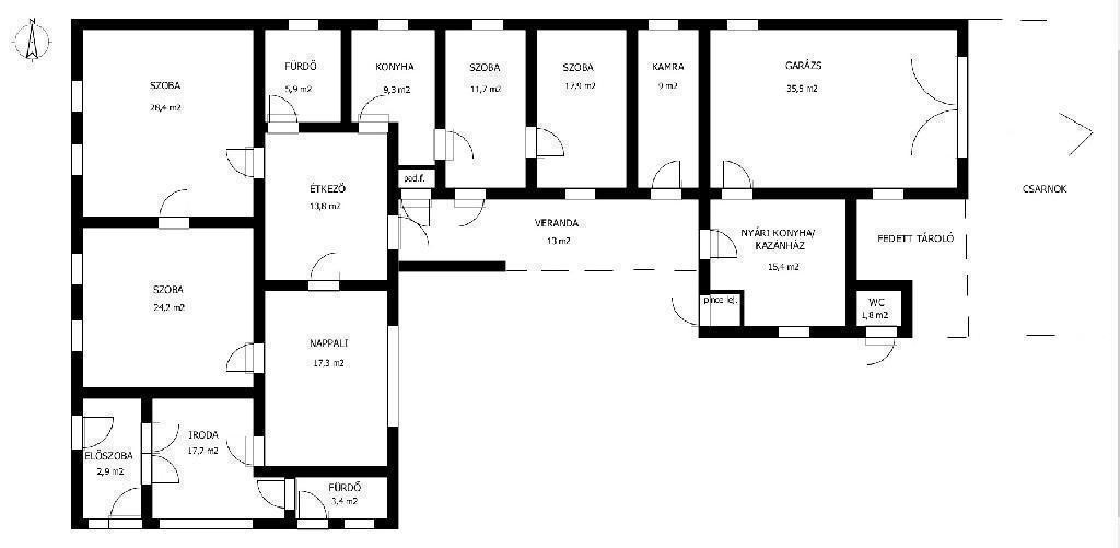
Ez a teljes körűen felújított, 152 m2-es lakóépület a klasszikus polgári építészet időtálló báját ötvözi a mai kor elvárásaival. A tágas, világos terek (4 szoba, nappali, étkező, iroda), a nagy belmagasság és az otthon melegét adó kandalló a századfordulós hangulatot idézik, míg a korszerű műszaki megoldások (hő- és vízszigetelt aljzat, teljes közműfelújítás, víz, szennyvíz, villany, 3 fázis, gáz, hőszigetelt, redőnyös nyílászárók) biztosítják a kényelmet és gazdaságos fenntarthatóságot.
A két fürdőszoba, két konyha, valamint a klíma és a választható fűtési rendszerek (gázkazán és vegyes tüzelésű kazán) tovább növelik a funkcionalitást, így ez az otthon ideális választás nagyobb családok vagy akár két generáció számára is.
A nyári konyhából keresztül jutunk a fűthető, 35 m2-es garázsba, 2,7 méteres belmagassággal és széles, üvegezett ipari ajtóval, amelyhez külön gázóra is tartozik. A műhely mögött egy 256 m2-es, fedett csarnok kapott helyet, amely ideális raktározásra, gyártási tevékenységre, géptárolásra vagy egyéb ipari felhasználásra. A csarnok előtt nagy, betonozott munkaterület található, amely megkönnyíti az árumozgatást és logisztikát.
Az udvar hátsó részében szerelőaknás 75 m2-es műhely áll, amely felett egy külön bejáratú, 72 m2-es, modern tetőtéri lakás került kialakításra. A lakás amerikai konyhás nappalival, külön hálószobával, sarokkádas fürdőszobával és saját gázkazánnal rendelkezik, így kiváló lehetőség szolgálati lakásnak, irodának vagy vendéglakásnak.
Az utcafronton nagy teherbírású, térköves parkoló került kialakításra, így az ingatlan ipari és üzleti célú hasznosítása már meglévő infrastruktúrával biztosított.
Ez a sokoldalú ingatlan ideális választás lehet mindazoknak, akik saját vállalkozásuknak keresnek telephelyet, műhelyt vagy raktárt, és szeretnék mindezt lakhatási lehetőséggel egy helyen megoldani. Az ipari adottságok, a rendezett környezet és a kiváló megközelíthetőség ritka kombinációt kínálnak Szentes egyik legjobb elhelyezkedésű részén.
Polgári elegancia modern kényelemmel, különleges otthon várja új tulajdonosát!
Ez a teljes körűen felújított, 152 m2-es lakóépület a klasszikus polgári építészet időtálló báját ötvözi a mai kor elvárásaival. A tágas, világos terek (4 szoba, nappali, étkező, iroda), a nagy belmagasság és az otthon melegét adó kandalló a századfordulós hangulatot idézik, míg a korszerű műszaki megoldások (hő- és vízszigetelt aljzat, teljes közműfelújítás, víz, szennyvíz, villany, 3 fázis, gáz, hőszigetelt, redőnyös nyílászárók) biztosítják a kényelmet és gazdaságos fenntarthatóságot.
A két fürdőszoba, két konyha, valamint a klíma és a választható fűtési rendszerek (gázkazán és vegyes tüzelésű kazán) tovább növelik a funkcionalitást, így ez az otthon ideális választás nagyobb családok vagy akár két generáció számára is.
A nyári konyhából keresztül jutunk a fűthető, 35 m2-es garázsba, 2,7 méteres belmagassággal és széles, üvegezett ipari ajtóval, amelyhez külön gázóra is tartozik. A műhely mögött egy 256 m2-es, fedett csarnok kapott helyet, amely ideális raktározásra, gyártási tevékenységre, géptárolásra vagy egyéb ipari felhasználásra. A csarnok előtt nagy, betonozott munkaterület található, amely megkönnyíti az árumozgatást és logisztikát.
Az udvar hátsó részében szerelőaknás 75 m2-es műhely áll, amely felett egy külön bejáratú, 72 m2-es, modern tetőtéri lakás került kialakításra. A lakás amerikai konyhás nappalival, külön hálószobával, sarokkádas fürdőszobával és saját gázkazánnal rendelkezik, így kiváló lehetőség szolgálati lakásnak, irodának vagy vendéglakásnak.
Az utcafronton nagy teherbírású, térköves parkoló került kialakításra, így az ingatlan ipari és üzleti célú hasznosítása már meglévő infrastruktúrával biztosított.
Ez a sokoldalú ingatlan ideális választás lehet mindazoknak, akik saját vállalkozásuknak keresnek telephelyet, műhelyt vagy raktárt, és szeretnék mindezt lakhatási lehetőséggel egy helyen megoldani. Az ipari adottságok, a rendezett környezet és a kiváló megközelíthetőség ritka kombinációt kínálnak Szentes egyik legjobb elhelyezkedésű részén.