Eladó Ház- házrész
Hirdetéskód: 9197613

OTP Ingatlanpont Csongrád

FIX 3% Program

Ez a hirdetés megfelelhet a FIX 3%-os programnak.
Tudj meg többet a részletekről itt.

180 m2
ALAPTERÜLET
4
SZOBASZÁM
nincs megadva
ÉPÍTÉS
nincs megadva
FŰTÉS
  • CSOK igénybe vehető nem
  • Tetőtér beépíthető nem
  • Építés éve 1920
  • Klíma nem
  • Szigetelt nem
Energetikai besorolás: Nincs meghatározva
A+++
A++
A+
A
B
C
D
E
F
G
H
I

Az ingatlan leírása

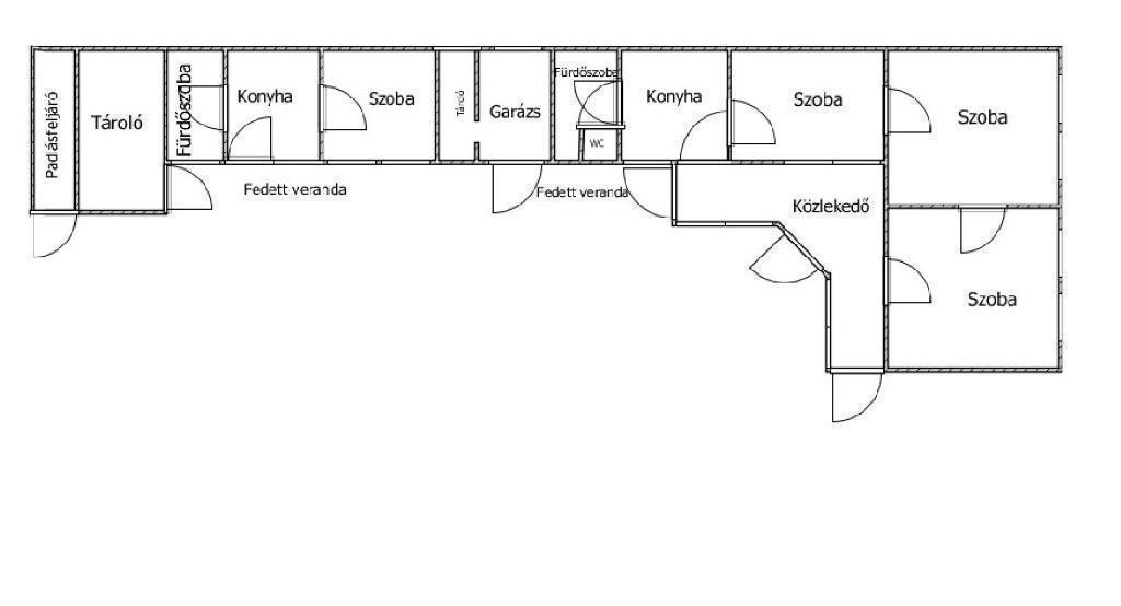
*** Nagy polgári ház eladó Csongrád-Csanád vármegyében, Szentesen. A jó állapotú, vegyes falazatú kertes családi ház, a városközpontban, egy 823 nm-es telken helyezkedik el. A 220 nm-es lakóház 2 család részére is kényelmes otthont biztosíthat, mivel 2 külön bejáratú lakórészre van osztva, melyek külön közüzemi mérőórákkal rendelkeznek. A 122 nm-es lakórészben 3 nagy szoba, konyha, fürdőszoba, WC és közlekedő, valamint egy tároló és egy garázs tartozik. Itt a fűtésről gázkazán, a meleg vízről villanybojler gondoskodik. A másik, az egy szoba + konyha + fürdőszoba helyiségekből álló 37 nm-es lakrész, melyhez egy 21 nm-es tároló is tartozik, ami alkalmas lenne egy újabb szoba kialakítására a még nagyobb kényelemért. Ebben a kisebb lakrészben a fűtést konvektorok, a meleg vizet szintén villanybojler biztosítja. Az udvar végében, a kisebb lakrész előtt egy lemez garázs kapott helyet. Az ingatlant nagycsaládosoknak ajánlom, de akár több generáció együttélésére is kiválóan alkalmas lehet, csakúgy, mint vállalkozás működtetésére, lakhat és dolgozhat egy helyen, ráadásul mindez a város kellős közepén egy csendes, nyugodt helyen. Amennyiben az OTP Ingatlanpont kínálatából választ, számíthat szakmai támogatásunkra a teljes vételi folyamat során az adásvételi szerződés megkötésétől a hitel-ügyintézésen át az ingatlan átadásáig. Az OTP Ingatlanpont kedvezményes pénzügyi konstrukciókkal áll ügyfelei rendelkezésére, és VIP-szolgáltatást nyújt az OTP-hiteltermékek, valamint CSOK-ügyintézésben. Kedvező hitelajánlatokkal (BABAVÁRÓ hitel, piaci hitel, és szabadfelhasználású hitel) várjuk jelentkezését. Számos konstrukció közül választhatnak. ***VÁLASSZUK KI EGYÜTT AZ ÖNNEK LEGMEGFELELŐBB AJÁNLATOT! BANKI SORBAN ÁLLÁS NÉLKÜL! ***Amennyiben az OTP Ingatlanpont kínálatából választ, számíthat szakmai támogatásunkra a teljes vételi folyamat során az adásvételi szerződés megkötésétől a hitel-ügyintézésen át az ingatlan átadásáig. Az OTP Ingatlanpont kedvezményes pénzügyi konstrukciókkal áll ügyfelei rendelkezésére, és VIP-szolgáltatást nyújt az OTP-hiteltermékek, valamint CSOK-ügyintézésben. Kedvező hitelajánlatokkal (BABAVÁRÓ hitel, piaci hitel, és szabadfelhasználású hitel) várjuk jelentkezését. Számos konstrukció közül választhatnak. ***VÁLASSZUK KI EGYÜTT AZ ÖNNEK LEGMEGFELELŐBB AJÁNLATOT! BANKI SORBAN ÁLLÁS NÉLKÜL!***

Térkép

A hirdető elérhetősége

OTP Ingatlanpont Csongrád

Fábrik-Csendes Zsuzsanna
+36 30 656