Eladó Ház- házrész
Hirdetéskód: 9247503
OTP Ingatlanpont Csongrád
65.00 m2
ALAPTERÜLET3
SZOBASZÁMnincs megadva
ÉPÍTÉSnincs megadva
FŰTÉS- CSOK igénybe vehető nem
- Tetőtér beépíthető nem
- Építés éve 1940
- Klíma nem
- Szigetelt nem
A+++
A++
A+
A
B
C
D
E
F
G
H
I
Az ingatlan leírása
***Kizárólag az OTP Ingatlanpontnál!!***
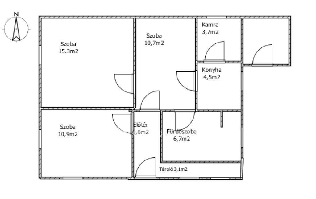
Eladásra kínálom Csongrád-Csanád Vármegyében Szentes Berekhát városrészen egy 65 négyzetméteres házat. Csendes utcában, 720 m2 telek, 3 szobás, összkomfortos ingatlan. A meleget vegyes tüzelésű kazán , melegvizet villanybojler biztosítja. Vastagon alábetonozott mindenhol. Nyílászárói fából vannak. Tartozik hozzá nyári konyha és sok tároló helység. Udvara rendezett.
Ne feledjétek, az OTP Ingatlanpont kedvezményes pénzügyi konstrukciókkal áll rendelkezésére! VIP-szolgáltatást nyújtunk az OTP-hiteltermékek ügyintézésében. Otthon Start Hitelprogram. Jogi és pénzügyi segítséget nyújtanak szakértőink, hogy az adásvétel folyamata gördülékeny legyen. Amennyiben a vételár a kérdés, és azt hiszed még nincs meg az összeg a leendő új otthonodra, lehet hogy még is rendelkezésére áll a vételár csak még nem is tudod? Tisztában vagy valóban az anyagi lehetőségeiddel? Az áthidaló megoldásokkal? Esetleg csak az az akadály, hogy nem adtad el még a saját ingatlanod? Nem gond, a tulajdonosaink, eladóink szívesen megvárnak, segítünk a gyors értékesítésben is. Ne maradj le a vételről, ha már megtaláltad a megfelelő új otthont! A vevők is nálunk vannak és lehet az Te ingatlanodra várnak?! Tudj meg többet, hívj bizalommal!
Eladó ingatlanod van? Nincs vevőd? Hívj és segítek az eladásban is.
Eladásra kínálom Csongrád-Csanád Vármegyében Szentes Berekhát városrészen egy 65 négyzetméteres házat. Csendes utcában, 720 m2 telek, 3 szobás, összkomfortos ingatlan. A meleget vegyes tüzelésű kazán , melegvizet villanybojler biztosítja. Vastagon alábetonozott mindenhol. Nyílászárói fából vannak. Tartozik hozzá nyári konyha és sok tároló helység. Udvara rendezett.
Ne feledjétek, az OTP Ingatlanpont kedvezményes pénzügyi konstrukciókkal áll rendelkezésére! VIP-szolgáltatást nyújtunk az OTP-hiteltermékek ügyintézésében. Otthon Start Hitelprogram. Jogi és pénzügyi segítséget nyújtanak szakértőink, hogy az adásvétel folyamata gördülékeny legyen. Amennyiben a vételár a kérdés, és azt hiszed még nincs meg az összeg a leendő új otthonodra, lehet hogy még is rendelkezésére áll a vételár csak még nem is tudod? Tisztában vagy valóban az anyagi lehetőségeiddel? Az áthidaló megoldásokkal? Esetleg csak az az akadály, hogy nem adtad el még a saját ingatlanod? Nem gond, a tulajdonosaink, eladóink szívesen megvárnak, segítünk a gyors értékesítésben is. Ne maradj le a vételről, ha már megtaláltad a megfelelő új otthont! A vevők is nálunk vannak és lehet az Te ingatlanodra várnak?! Tudj meg többet, hívj bizalommal!
Eladó ingatlanod van? Nincs vevőd? Hívj és segítek az eladásban is.