Eladó Ház- házrész
Hirdetéskód: 9179195

OTP Ingatlanpont Csongrád

539 m2
ALAPTERÜLET
3
SZOBASZÁM
nincs megadva
ÉPÍTÉS
nincs megadva
FŰTÉS
  • CSOK igénybe vehető nem
  • Tetőtér beépíthető nem
  • Építés éve 1997
  • Klíma nem
  • Szigetelt nem
Energetikai besorolás: Nincs meghatározva
A+++
A++
A+
A
B
C
D
E
F
G
H
I

Az ingatlan leírása

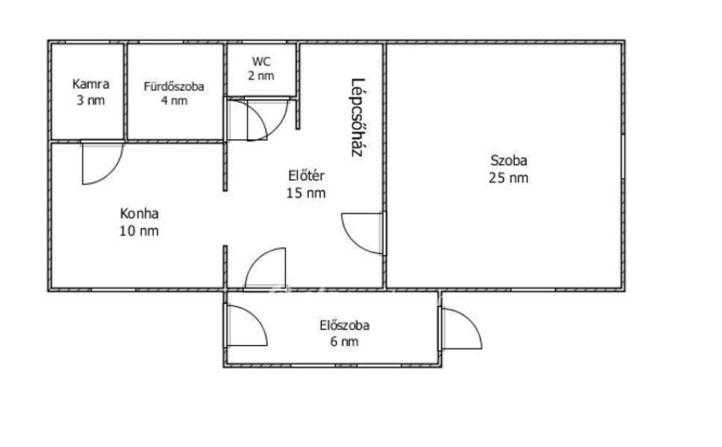
Kétszintes családi ház eladó Szentesen. A 117 nm-es, nappali + 3 szobával és 2 fürdőszobával rendelkező tégla építésű ház kertvárosi környezetben helyezkedik el egy 539 nm-es telken. Az előszobán keresztül a nagy előtéren áthaladva jutunk a hatalmas, világos nappaliba. A földszinten van a konyha, a kamra és egy fürdőszoba, valamint egy WC helyiség. A hűtő-fűtő klímát az előtérben helyezték el. Az emeleten további 3 külön bejáratú szoba és egy fürdőszoba kapott helyet. A jó állapotú ház fűtését gázkazán, a meleg vizet gázbojler biztosítja, ablakai 3 rétegű műanyag nyílászárók. A ház szigetelése 5 cm-es nikecell, rajta nemesvakolat. A szobák padlóburkolata laminált padló, a többi helyiség hidegburkolattal fedett. A melléképületben van egy fűtött konyha meleg víz ellátással, egy félkész fürdőszoba és a garázs. A nagy garázsban a parkoló autó mellett még nagy mennyiségű holmi tárolására is van lehetőség. A melléképület felett beépíthető tetőtér van. Az udvaron még további 2 autó számára van fedett kocsibeálló. Az ingatlan tehermentes, hitelezhető! Amennyiben az OTP Ingatlanpont kínálatából választ, számíthat szakmai támogatásunkra a teljes vételi folyamat során az adásvételi szerződés megkötésétől a hitel-ügyintézésen át az ingatlan átadásáig. Az OTP Ingatlanpont kedvezményes pénzügyi konstrukciókkal áll ügyfelei rendelkezésére, és VIP-szolgáltatást nyújt az OTP-hiteltermékek , valamint CSOK+-ügyintézésben. Kedvező hitelajánlatokkal (BABAVÁRÓ hitel, piaci hitel, és szabadfelhasználású hitel) várjuk jelentkezését. Számos konstrukció közül választhatnak. Irodáink Szentes, Petőfi utca 12. A buszmegálló felől, és Csongrád, Fő utca 54. szám alatt várja a személyes érdeklődőket. ***VÁLASSZUK KI EGYÜTT AZ ÖNNEK LEGMEGFELELŐBB AJÁNLATOT! BANKI SORBAN ÁLLÁS NÉLKÜL! ***

Térkép

A hirdető elérhetősége

OTP Ingatlanpont Csongrád

Vas Edit
+36 70 402